Commercial Building in Središće
Autorica: Valentina BenčićMentori: Aleksandar Homadovski, Zlatko Karač, Zrinka Barišić Marenić, Ivan Cetinić, Berislav Medić, Marino Šneler, Tihomir Rengel
Katedra za arhitektonsko projektiranjeKabinet za javne zgradeStudio 4 - Arhitektura
The task of the final work is to simulate the entire process of architectural design which students will have to face within a competitive architectural business environment in the future. The focus of this paper is the art of managing within the planning and design process and the regulatory environment, with full knowledge of all the production segments of the project. A theoretical and philosophical implementation of the project settings is preferable, but optional for the initial level of education.
Relying on an urban approach, with an analytical examination of all relevant plans and documents for the given area, results are presented on the level of situational solutions and supporting documentation for urban planning permission. Simultaneously, through architectural deliberations and processes, the student confirms his ability to conceive and design spatial organisation and its materialisation through education processes by seeking out the constructive logic of the emerging architectural corpus. The student demonstrates mastery of the principles for the installation of networks and devices systems. In the final stage of the incidence of the project, which determines the readability of the transferral of architectural significance, the building needs to be reinvented with its basic architectural details, definitions of key materials and processing, descriptions, graphic supplements and estimate provisions measures.
The final work is the joint venture of three educational departments: urban planning, design and architectural design.
The architectural motto is the primordial A = C, that is, the inseparability of architecture and construction.
Cordemoy 1706 - Construction is the essence of architecture, architecture is the essence of construction.
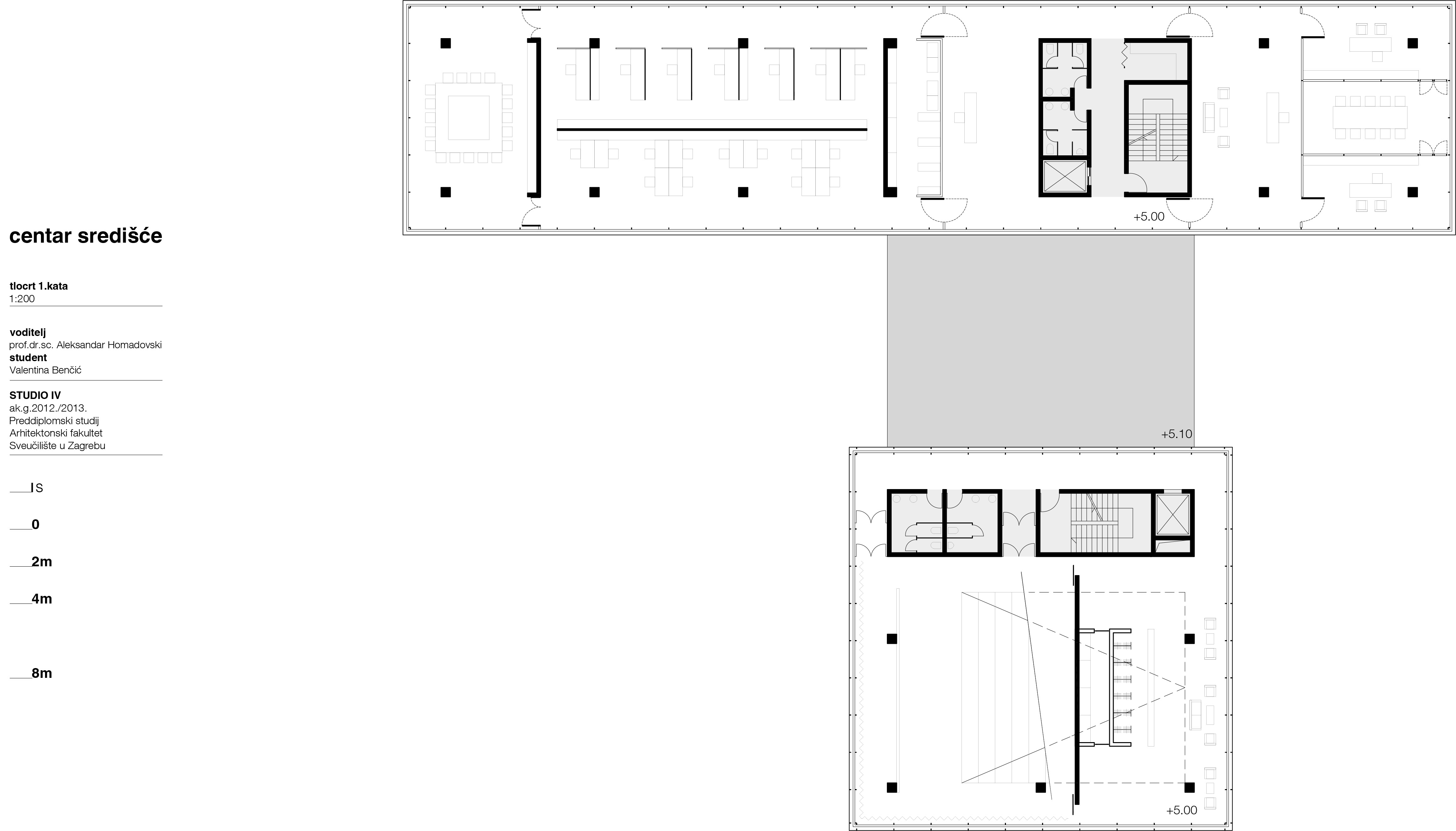
The task is to design a multifunctional commercial building at the Središće site within select insulae, which are part of the undeveloped urban fabric.
The broader urban task is situated within a larger scope - insulae of undeveloped urban fabric at Središće. To the north, east and south this site is limited by the newly formed thoroughfare corridor, and to the west there is an area planned as a public city park.
The architectural task is the site on the eastern part of the aforementioned insula, an area approx. 6350 m2, which can be divided into two parcels (a north and a south parcel). The project is a multifunctional commercial building with complementary public facilities.
Relying on an urban approach, with an analytical examination of all relevant plans and documents for the given area, results are presented on the level of situational solutions and supporting documentation for urban planning permission. Simultaneously, through architectural deliberations and processes, the student confirms his ability to conceive and design spatial organisation and its materialisation through education processes by seeking out the constructive logic of the emerging architectural corpus. The student demonstrates mastery of the principles for the installation of networks and devices systems. In the final stage of the incidence of the project, which determines the readability of the transferral of architectural significance, the building needs to be reinvented with its basic architectural details, definitions of key materials and processing, descriptions, graphic supplements and estimate provisions measures.
The final work is the joint venture of three educational departments: urban planning, design and architectural design.
The architectural motto is the primordial A = C, that is, the inseparability of architecture and construction.
Cordemoy 1706 - Construction is the essence of architecture, architecture is the essence of construction.
The task is to design a multifunctional commercial building at the Središće site within select insulae, which are part of the undeveloped urban fabric.
The broader urban task is situated within a larger scope - insulae of undeveloped urban fabric at Središće. To the north, east and south this site is limited by the newly formed thoroughfare corridor, and to the west there is an area planned as a public city park.
The architectural task is the site on the eastern part of the aforementioned insula, an area approx. 6350 m2, which can be divided into two parcels (a north and a south parcel). The project is a multifunctional commercial building with complementary public facilities.
