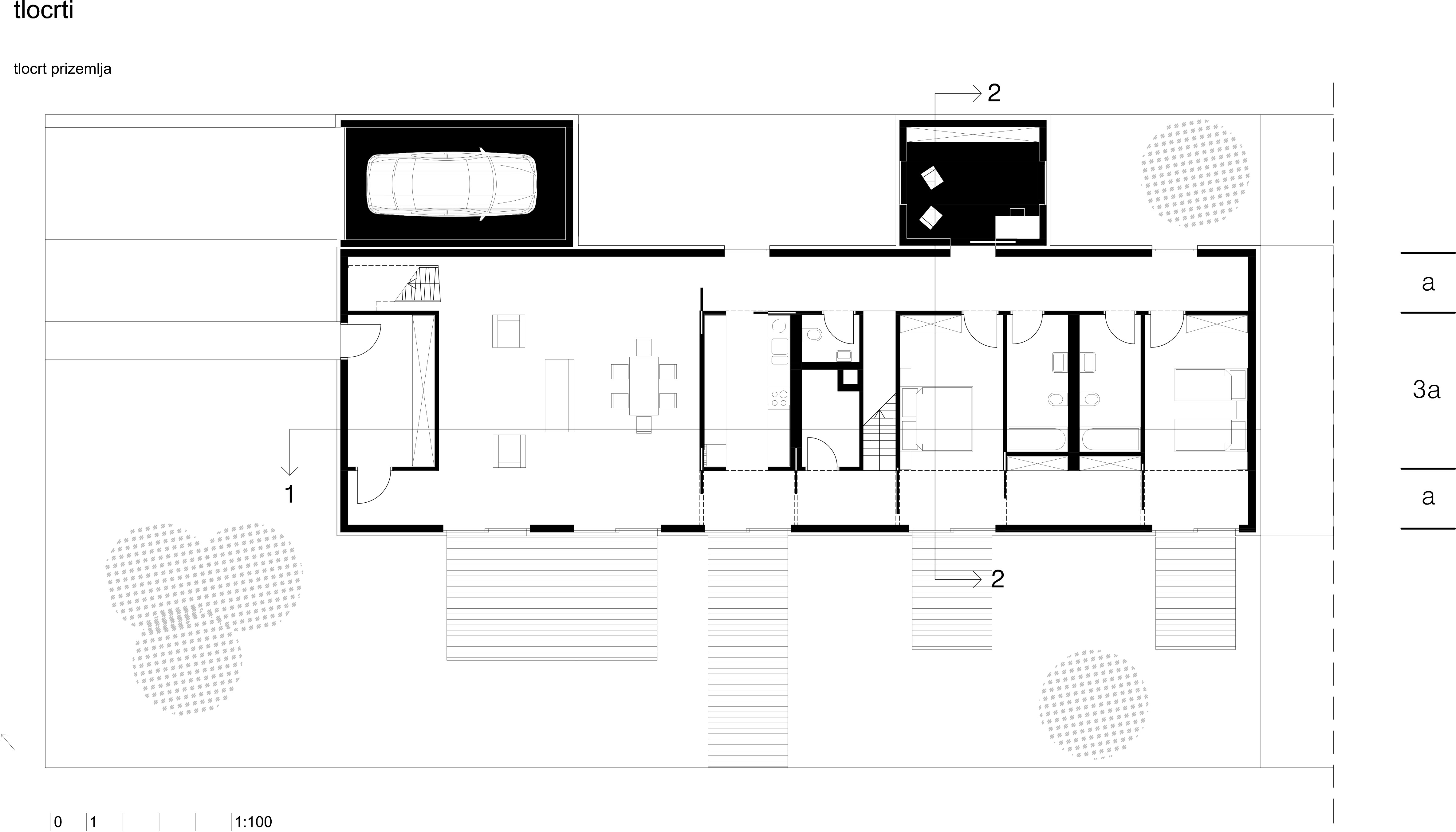
Familiy Home and Residental Development at Gornju Bukovac, Zagreb
Autorica: Mirna MezulićMentori: Jesenko Horvat, Mladen Jošić, Mateo Biluš, Luka Korlaet, Ivan Cetinić, Stanka Ostojić, Tihomir Rengel, Ana Mrđa
Katedra za arhitektonsko projektiranjeKabinet za stambene zgradeStudio 1 - Arhitektura
Studio I is an integrated course organised through three simultaneous sections: urban, architectural and section architectural structures. The topic is individual housing which is studied through layered tasks and different scales. Thus, at the urban section the general characteristics of individual housing typologies is investigated, and the aim is to produce a solution for a low-rise, low density housing estate project. The Architectural section is the fundament of the course and is focused on the scale of the house. The functionalist approach to the designing of housing architecture, absolved at earlier courses, is supplemented by questioning contextual, typological, morphological and
physical characteristics that affect the quality of housing/living. The result is the creation of an author's project of a family house. Conceptual design is additionally supplemented through a series of technical aspects within the framework of the section of architectural structures, such as the load-bearing structure of the house, the use of materials, the elaboration of specific details, solution for installations, etc. The final results of the course are validated through final presentations at the level of the section. All works are displayed through various media: illustrations, final models / model and a screening as part of the reading of the paper and discussions with mentors and guest critics. Selected papers are additionally presented at a public exhibition, and Prof emeritus Nikola Filipović DSc traditionally awards a prize for the most successful project.
physical characteristics that affect the quality of housing/living. The result is the creation of an author's project of a family house. Conceptual design is additionally supplemented through a series of technical aspects within the framework of the section of architectural structures, such as the load-bearing structure of the house, the use of materials, the elaboration of specific details, solution for installations, etc. The final results of the course are validated through final presentations at the level of the section. All works are displayed through various media: illustrations, final models / model and a screening as part of the reading of the paper and discussions with mentors and guest critics. Selected papers are additionally presented at a public exhibition, and Prof emeritus Nikola Filipović DSc traditionally awards a prize for the most successful project.
