Primary School in Knežija
Autor: Bojan PeponikMentor: Petar Mišković
Katedra za arhitektonsko projektiranjeKabinet za zgrade društvenog standardaStudio 3 - Arhitektura
Knežija is a typical new settlement in the largest city quarter Trešnjevka. It was built mainly in the 1970s and completed at the beginning of this century in the space between the River Sava and Zagrebačka Avenija.
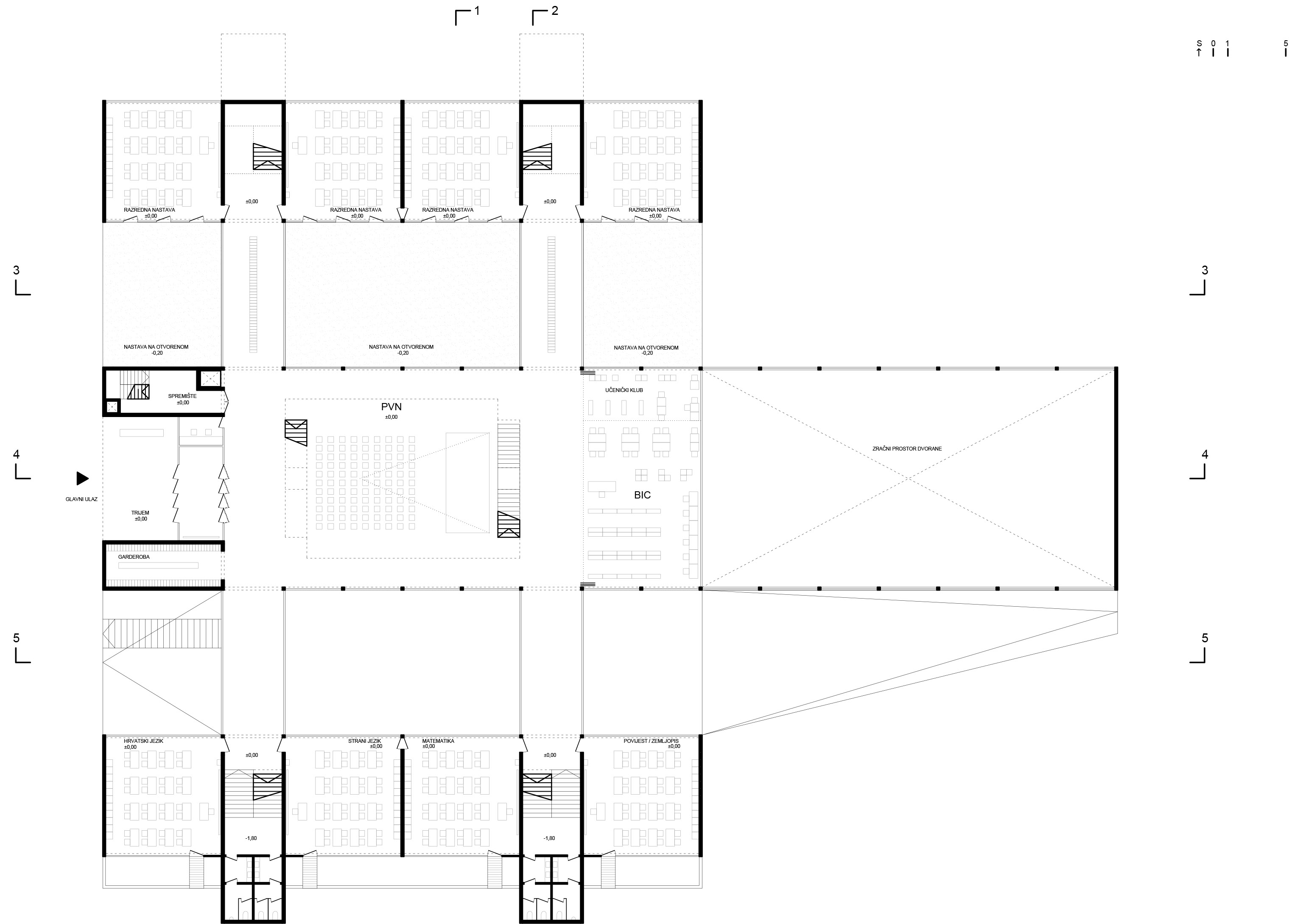
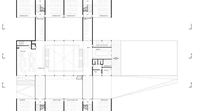
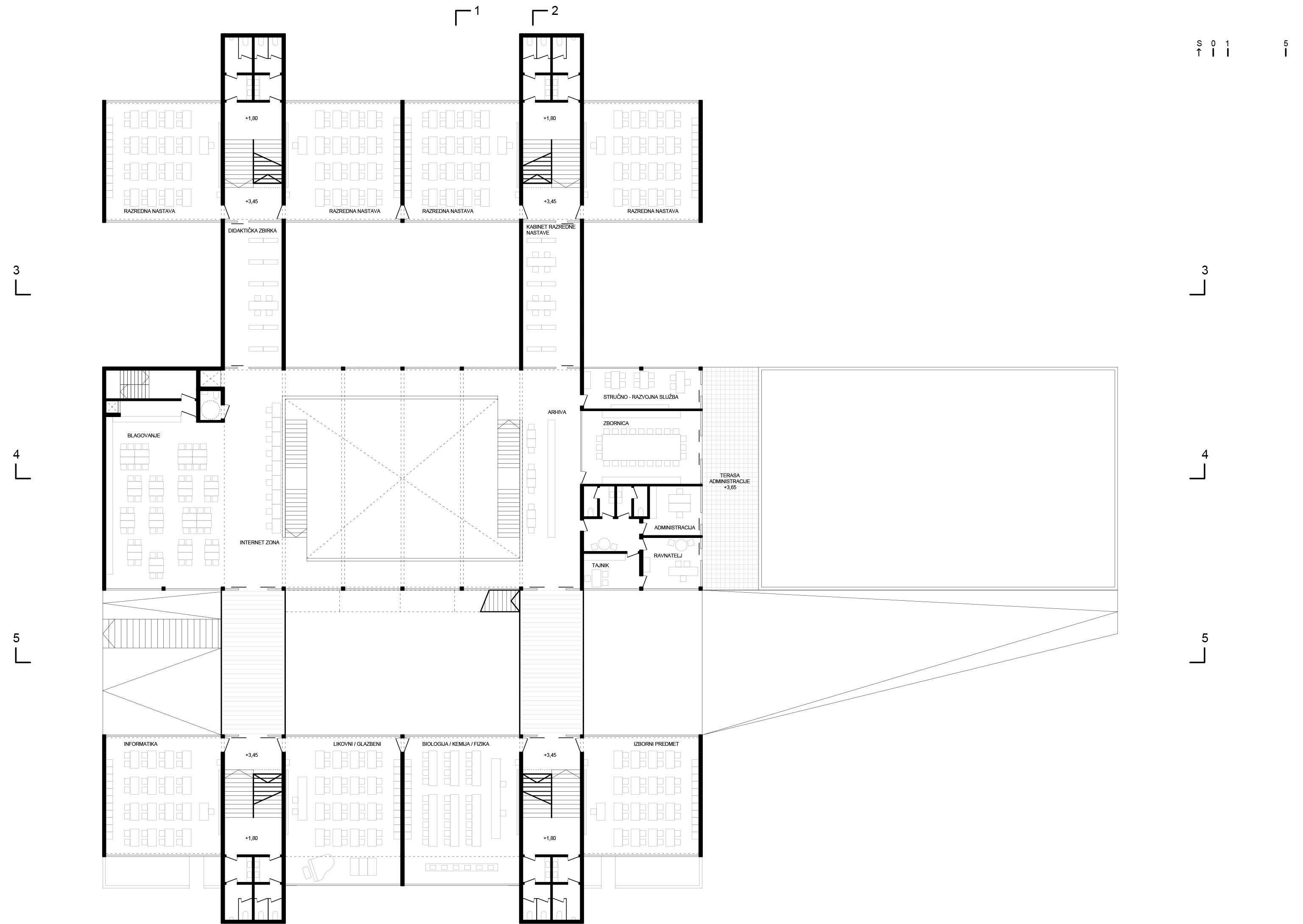
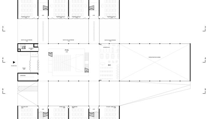
The location was intended for an elementary school with 480 students, with one gym and outdoor play areas. It is surrounded on all four sides by streets, bounded and defined through a heterogeneous fabric of various urban typologies, from a segmented area of individual family houses to multi-storey blocks built within the last fifty years.
The task is to explore how to define and articulate spaces that can simultaneously be rational and unconventional, ordinary and exciting, cost-effective and stimulating within clear functional requirements and regulations. In this way, we go beyond one-dimensional and rigid functional regimes. The project investigated the effects of the specific character of the context, the spatial and sociological aspect, the possible choice of architectural typologies, as well as the articulation of space and facilities that the school can offer to the local community. It is important to examine the impact of the school in the redefining and balancing of the current urban context.
The location was intended for an elementary school with 480 students, with one gym and outdoor play areas. It is surrounded on all four sides by streets, bounded and defined through a heterogeneous fabric of various urban typologies, from a segmented area of individual family houses to multi-storey blocks built within the last fifty years.
The task is to explore how to define and articulate spaces that can simultaneously be rational and unconventional, ordinary and exciting, cost-effective and stimulating within clear functional requirements and regulations. In this way, we go beyond one-dimensional and rigid functional regimes. The project investigated the effects of the specific character of the context, the spatial and sociological aspect, the possible choice of architectural typologies, as well as the articulation of space and facilities that the school can offer to the local community. It is important to examine the impact of the school in the redefining and balancing of the current urban context.
