Povećaj font
Smanji font
Promijeni kontrast
Sivi tonovi
Promijeni vrstu slova
Istakni poveznice
Vrati izvorno
baccaratsites.kr
jilibet
totosite2025.com
helpslotwin
8k8
casibom
O fakultetu
Kontekst
Fakultet danas
Misija i vizija
Kronika Arhitektonskog fakulteta
AF Newsletter
Osiguranje kvalitete
Indeks zaposlenika
Kontakt
Telefonski imenik AF
Statut
Uprava
Ustroj
Studentski zbor Arhitektonskog fakulteta
Udruge
Alumni
USAUH - Udruga studija arhitekture i urbanizma Hrvatske
SUAF - Sportska udruga studenata Arhitektonskog fakulteta.
Programsko financiranje AF
Nastava
Upisi
Studij arhitekture i urbanizma
Preddiplomski studij
Diplomski studij
Poslijediplomski studiji
Doktorski studij
Specijalistički studij
Studij dizajna
Ljetne škole i izvannastavne radionice
Međunarodna suradnja
Stručno usavršavanje
Informacije za buduće studente
Istraživanje
Istraživački projekti
Nakladništvo
Časopis Prostor
Skupovi
Istraživački radovi
CroRIS
Studijski arhiv
Radovi
Studentski radovi
Stručni radovi
Izložbe
Predavanja
Nagrade i priznanja
Intranet
HR
/
EN
Opcije prikaza
Izgrađeno
Neizgrađeno
Istraživački rad
©
OpenStreetMap
contributors
O fakultetu
Ustroj
Katedra za arhitektonske konstrukcije i zgradarstvo
Kabinet za arhitektonske konstrukcije, fiziku zgrade, materijale i tehnologiju građenja
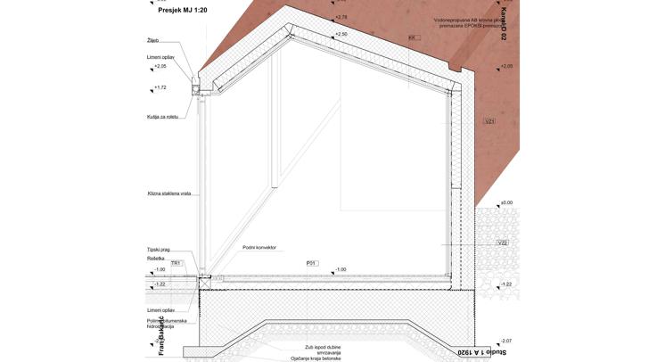
Studio 1 - Konstrukcije
II
Godina
III
Semestar
preddiplomski studij
ISVU:186686
0
Predavanja
30
Vježbe
0
Seminari
2
.
ECTS
Koordinatorica
Iva Muraj
Izvođači
Neda Mrinjek Kliska
Marin Binički
Dunja Mandić
Stanka Ostojić
Željko Pavlović
Marino Šneler
Vedran Duplančić
Tajana Jaklenec
Darko Užarević
Izvođači NK
Davor Andrić
Josip Galić
Lucija Stepinac
Berislav Medić
Nenad Turčić
Hrvoje Vukić
Izvođači IZ
Damir Prodan-Abramović
Tihomir Rengel
Ivana Abrashi