Povećaj font
Smanji font
Promijeni kontrast
Sivi tonovi
Promijeni vrstu slova
Istakni poveznice
Vrati izvorno
baccaratsites.kr
jilibet
totosite2025.com
helpslotwin
8k8
casibom
O fakultetu
Kontekst
Fakultet danas
Misija i vizija
Kronika Arhitektonskog fakulteta
AF Newsletter
Osiguranje kvalitete
Indeks zaposlenika
Kontakt
Telefonski imenik AF
Statut
Uprava
Ustroj
Studentski zbor Arhitektonskog fakulteta
Udruge
Alumni
USAUH - Udruga studija arhitekture i urbanizma Hrvatske
SUAF - Sportska udruga studenata Arhitektonskog fakulteta.
Programsko financiranje AF
Nastava
Upisi
Studij arhitekture i urbanizma
Preddiplomski studij
Diplomski studij
Poslijediplomski studiji
Doktorski studij
Specijalistički studij
Studij dizajna
Ljetne škole i izvannastavne radionice
Međunarodna suradnja
Stručno usavršavanje
Informacije za buduće studente
Istraživanje
Istraživački projekti
Nakladništvo
Časopis Prostor
Skupovi
Istraživački radovi
CroRIS
Studijski arhiv
Radovi
Studentski radovi
Stručni radovi
Izložbe
Predavanja
Nagrade i priznanja
Intranet
HR
/
EN
Radovi
Stručni radovi
Stručni rad
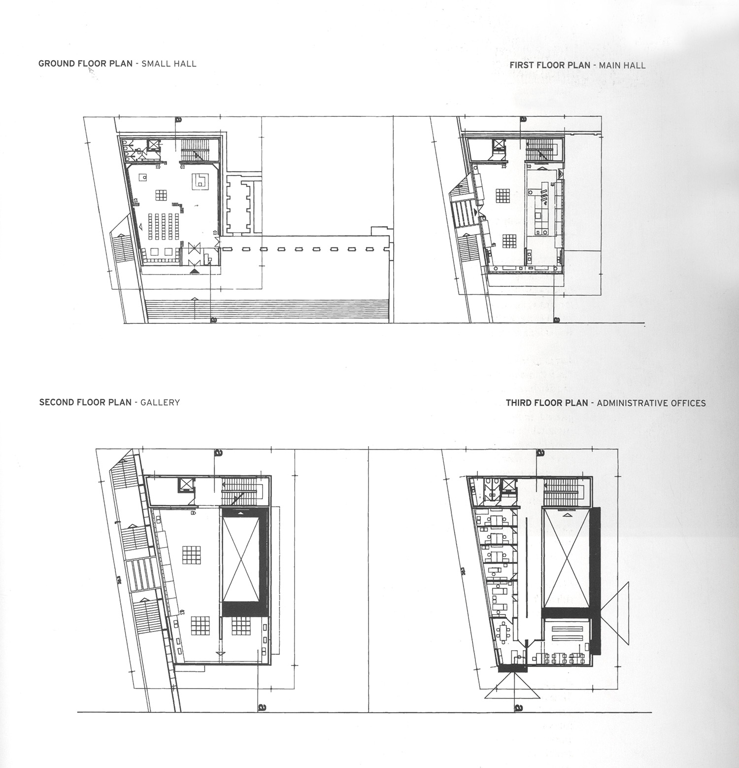
Muzej narodne revolucije
Autor:
Neven Šegvić
Status: izvedeno
Izvedeno: 1976
Šegvićev Mediteran: studentski putopis
Omnibus: Neven Šegvić
Omnibus: Neven Šegvić
O hrvatskoj arhitekturi. Napisi, eseji, polemike, studije
Ostali radovi autora
Radovi / Stručni Rad
Poslovno-stambena zgrada na Peristilu
Radovi / Publikacija
O hrvatskoj arhitekturi. Napisi, eseji, polemike, studije
Izložba Omnibus: Neven Šegvić
Kombinirano plivalište Sušak
Drago Galić
Neven Šegvić
Vladimir Turina
Poslovno-stambena zgrada na Peristilu
Opcije prikaza
Izgrađeno
Neizgrađeno
Istraživački rad
©
OpenStreetMap
contributors