Obiteljska kuća i stambeno naselje na Gornjem Bukovcu, Zagreb
Autor: Neven VlahovićMentori: Ivana Ergić, Tihomir Jukić, Miljenko Haiman, Ivica Plavec, Ivan Cetinić, Zorana Protić, Tihomir Rengel
Katedra za arhitektonsko projektiranjeKabinet za stambene zgradeStudio 1 - Arhitektura
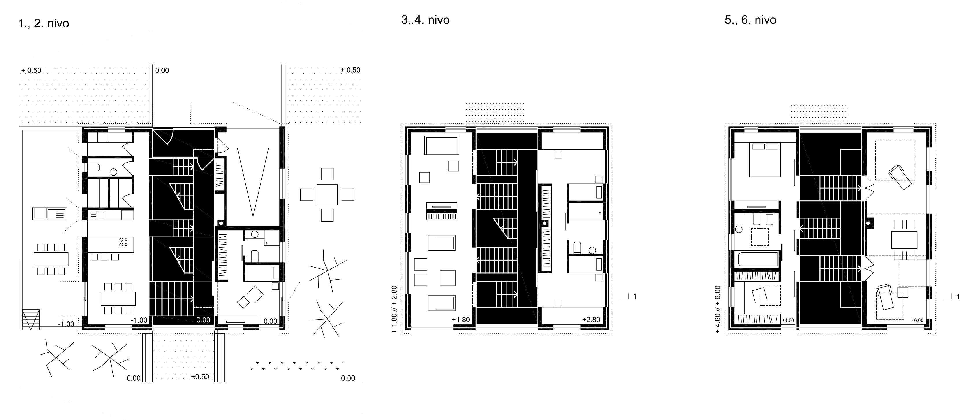
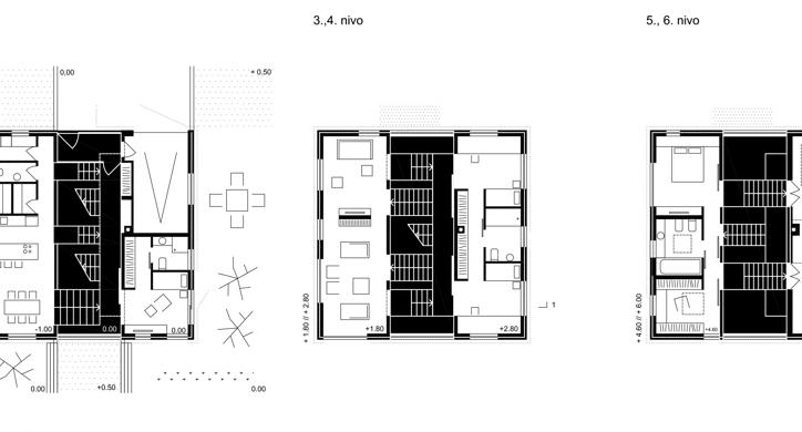
Studio I je integralni kolegij organiziran kroz tri simultane dionice: urbanističku, arhitektonsku i dionicu arhitektonskih konstrukcija. Tema je individualno stanovanje koje se proučava kroz slojevite zadatke i različita mjerila. Tako se na urbanističkoj dionici istražuju općenite karakteristike tipologija individualnog stanovanja, a cilj je izrada rješenja stambenog naselja niske izgradnje i male gustoće. Arhitektonska dionica je okosnica kolegija i fokusirana je na mjerilo kuće. Funkcionalistički pristup u projektiranju arhitekture stanovanja, apsolviran na ranijim kolegijima, nadograđuje se kroz propitivanja kontekstualnih, tipoloških, morfoloških i prostornih karakteristika koje utječu na kvalitetu stanovanja/življenja. Rezultat je izrada autorskog
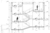
projekta obiteljske kuće. Idejno rješenje upotpunjuje se kroz slijed tehničkih aspekata u sklopu dionice arhitektonskih konstrukcija, a to su nosiva struktura kuće, uporaba materijala, razrada specifičnih detalja, rješenje instalacija itd. Konačni rezultati kolegija provjeravaju se kroz završne prezentacije na razini svih dionica. Svi radovi prikazuju se kroz različite medije: grafičke priloge, završne modele/makete te projekciju u vidu obrane i diskusije s mentorima i gostima kritičarima. Odabrani radovi dodatno se predstavljaju na javnoj izložbi, a prof. emer. dr. sc. Nikola Filipović tradicionalno dodjeljuje nagradu za najuspješniji projekt.
projekta obiteljske kuće. Idejno rješenje upotpunjuje se kroz slijed tehničkih aspekata u sklopu dionice arhitektonskih konstrukcija, a to su nosiva struktura kuće, uporaba materijala, razrada specifičnih detalja, rješenje instalacija itd. Konačni rezultati kolegija provjeravaju se kroz završne prezentacije na razini svih dionica. Svi radovi prikazuju se kroz različite medije: grafičke priloge, završne modele/makete te projekciju u vidu obrane i diskusije s mentorima i gostima kritičarima. Odabrani radovi dodatno se predstavljaju na javnoj izložbi, a prof. emer. dr. sc. Nikola Filipović tradicionalno dodjeljuje nagradu za najuspješniji projekt.
