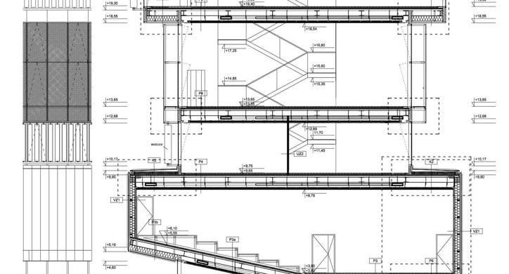
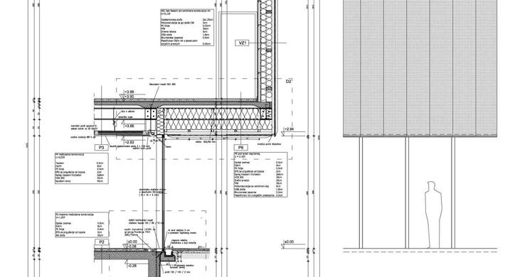
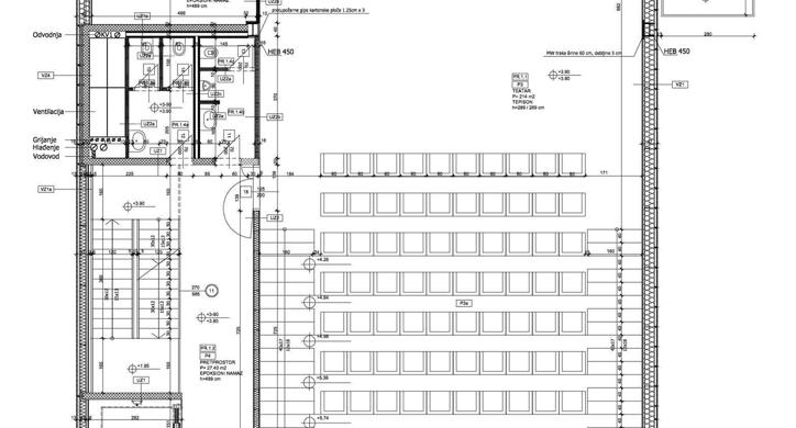
Polivalentni paviljon u novozagrebačkom naselju Travno
Autori: Helena Ferkula, Marko Gusić, Mario Grgurev, Ivan HaimanMentori: Mateo Biluš, Josip Galić, Zorana Protić, Tajana JaklenecAkademska godina: 2011.
