Multipurpose Pavilion Špansko
Autori: Luka Ursić, Iva Trutina, Korina Kožarić, Zita Marula PrižmićMentori: Iva Muraj, Tajana Jaklenec, Tihomir Rengel, Davor AndrićAkademska godina: 2025.
Katedra za arhitektonske konstrukcije i zgradarstvoKabinet za arhitektonske konstrukcije, fiziku zgrade, materijale i tehnologiju građenjaStudio 4 - Konstrukcije
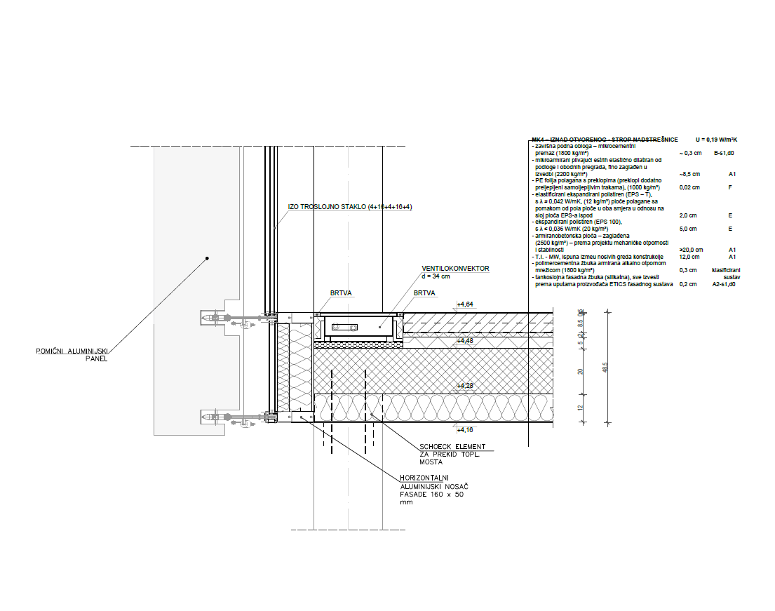
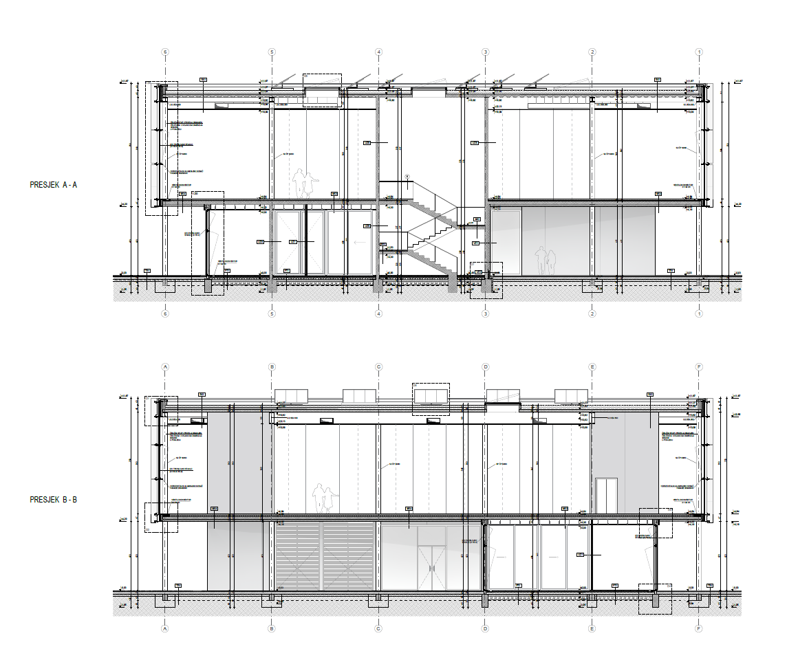
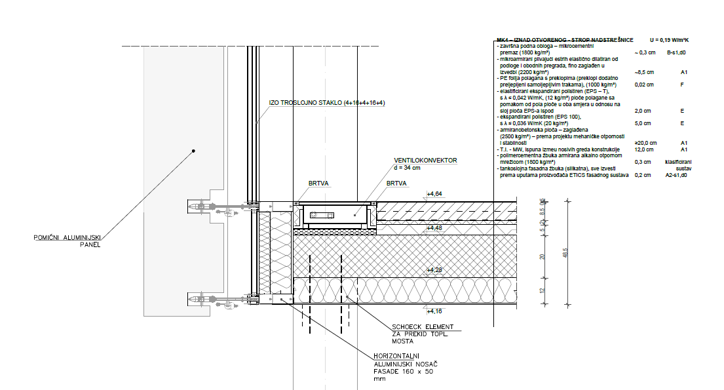
The Multipurpose Pavilion Špansko is conceived around the concept of modularity – within a defined, regular grid of structural modules, a flexible floor plan has been developed that enables a variety of spatial scenarios through the use of movable panels. The upper floor, housing a multipurpose hall, is constructed in a lightweight steel structure and is both materially and volumetrically distinct from the reinforced concrete ground floor, which accommodates technical and service areas. The recessed ground floor further accentuates the impression of a transparent volume floating above a solid base. The modular approach is reflected not only in the spatial organization but also in the architectural expression of the building.
