Arheološki park Principij
Autor: Nenad FabijanićSuradnici: Željko Pavlović, Davor Pavlović, Vesna Šoić, Bruno Krunić
Status: izvedeno, natječajni radNamjena: javni prostorProjektirano: 2008Izvedeno: 2014
Arheološki park Principij, Stari grad, Rijeka predstavlja jedinstven spomenik kasne antike u samom povijesnom središtu Rijeke. Riječ je o principiju – vojnom zapovjedništvu rimske Tarsatike. Godine 2007. u Starom gradu, na Trgu Julija Klovića, provedena su prva sistematska istraživanja principija. Istraživanja su bila povjerena Hrvatskom restauratorskom zavodu iz Zagreba.
Tarsatički principij, sagrađen vjerojatno u drugoj polovini 3. stoljeća, srušen je i napušten najvjerojatnije na početku 5. stoljeća. Nakon duljeg vremenskog razdoblja, od 15. stoljeća nadalje, na ruševinama principija gradile su se brojne manje stambene kuće, koje su se ovdje održale do 1960-ih godina. Izgrađene su na dobro sačuvanim perimetralnim zidovima principija, ali i na njegovom nekad otvorenom dijelu. Antička arhitektura oštećena je uglavnom kasnijim ukopavanjem crnih jama i kanala.
Građevinski kompleks smješten u središnjem dijelu antičke Tarsatike, određen monumentalnim rimskim lukom, ali i drugim arhitektonskim elementima, svojim položajem i pojedinostima već dugo privlači pažnju znanstvenika.
I prije arheoloških istraživanja 2007., otkriveno je mnoštvo građevinskih elemenata koji su pripadali principiju. To se najprije tiče dobro sačuvanog rimskog luka na ulazu u kompleks, u ulici Stara vrata, koji je zadržao prvobitni izgled. Izgrađen je od djelomično obrađenog kamenja, bez veziva, visok je 4 i po metra, promjer mu je 2 metra i 75 centimetara.
Prilikom najnovijeg istraživanja otvorena je četvrtina sklopa. Iskopan je velik dio kamenom popločanog dvorišta, dio bočnog dvorišta sa stubištem, četiri bočne prostorije s kamenim pragovima te monumentalno kameno lice središnje građevine sa stubištem, vjerojatno ostatak bazilike. Ti nalazi odlično se uklapaju u vidljive ostatke: glavna vrata s velikim kamenim lukom, zapadni i sjeverni perimetralni zid sklopa.
Iz dosad navedenog, preostalo je oblikovati i prezentirati neposredni okoliš i posebno, rubne zone arheološkog nalazišta. Regulacijom jasnog komunikacijskog usmjeravanja, eliminacijom svih efemernih detalja i intervencija, čitanjem prostornih autoriteta, željelo se potencirati glavnu temu i arheološko žarište.
U analitičkom istraživanju otkrivene su lokacije i novooblikovane projektne teme:
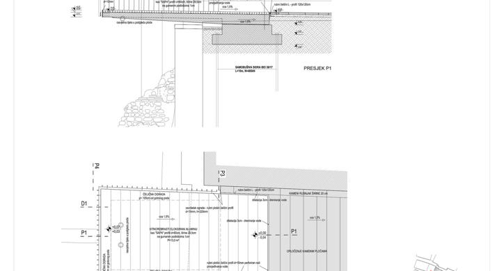
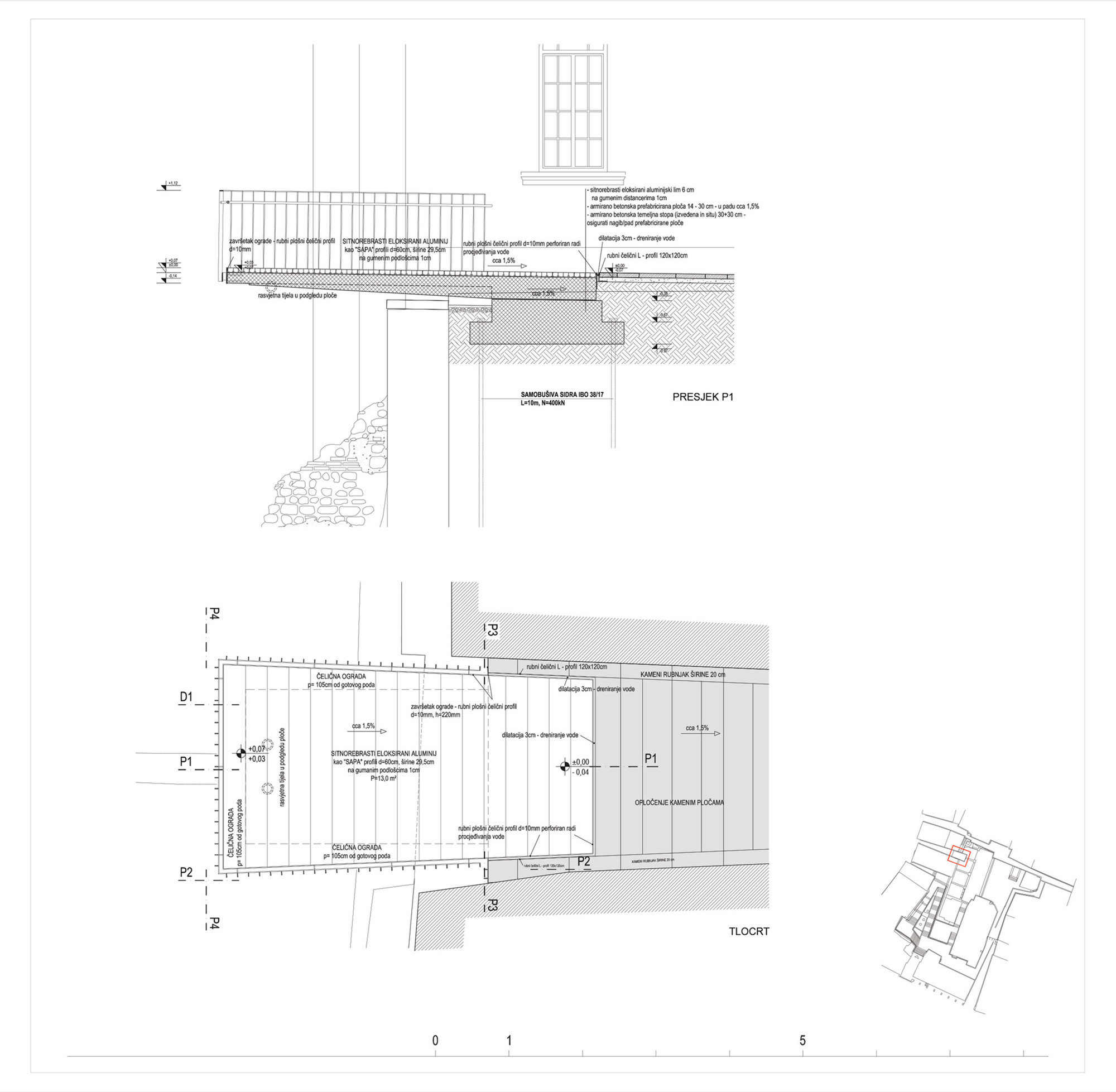
A) Rubna zona (granica) J-Z ugla principija dilatirana je ritmiziranim nizom vertikalnih lamela (bijeli beton) od okolnog ambijenta terasa, rampi, stubišta i fontane.
B) Crkva sv. Sebastijana podignuta je prema predaji 1291. kao zavjet u vrijeme kuge.
Postavom balkona uz istočno zabatno pročelje crkve sv. Sebastijana, omogućen je atraktivan novi doživljaj i vizura na arheološki trg. Balkonom se aktivira nova scenska mogućnost i pozicija rasvjete.
C) Lokacija ruševne, nekad stambene kuće Colazio. Kuća je očito pripadala nizu stambenih objekata, a danas, svojim punim zabatom orijentirana na prazni prostor arheološkog parka, u prostornoj je disfunkciji.
Upotreba materijala ovisna je o mjestu, a tehnologija, struktura i tekstura o karakteru i značaju. Na prezentiranom arheološkom nalazu svi upotrebljeni materijali i njihova svojstva (kamen, žbuka, teraco, mozaik) ugrađeni su preko provjerenih uzoraka i u suglasju s izvornim fragmentima.
Često spominjana crvena boja (žbuke, keramika, zidni crteži) prisutna je ovdje i sada na rubnim područjima (štokani „crveni“ beton potpornih zidova) kao kontrast svijetlom kamenu.
Intencija je potaknuti u prolaznika i posjetitelja, domaćih i stranih, slojeve ili snopove asocijacija i osjećaja na daleku, tajnovitu prošlost od koje su tu prezentni tek oskudni materijalni ostaci. Locus time dobiva nešto metafizičko i duhovno.
Urbana dimenzija Rijeke, njezina veličanstvena arhitektura, napose planovi za reurbanizaciju industrijskih zona, koji obećavaju novi urbani identitet, podnose, i čak zahtijevaju snažniju artističku gestu koja je ponuđena ovim prijedlogom.
Tarsatički principij, sagrađen vjerojatno u drugoj polovini 3. stoljeća, srušen je i napušten najvjerojatnije na početku 5. stoljeća. Nakon duljeg vremenskog razdoblja, od 15. stoljeća nadalje, na ruševinama principija gradile su se brojne manje stambene kuće, koje su se ovdje održale do 1960-ih godina. Izgrađene su na dobro sačuvanim perimetralnim zidovima principija, ali i na njegovom nekad otvorenom dijelu. Antička arhitektura oštećena je uglavnom kasnijim ukopavanjem crnih jama i kanala.
Građevinski kompleks smješten u središnjem dijelu antičke Tarsatike, određen monumentalnim rimskim lukom, ali i drugim arhitektonskim elementima, svojim položajem i pojedinostima već dugo privlači pažnju znanstvenika.
I prije arheoloških istraživanja 2007., otkriveno je mnoštvo građevinskih elemenata koji su pripadali principiju. To se najprije tiče dobro sačuvanog rimskog luka na ulazu u kompleks, u ulici Stara vrata, koji je zadržao prvobitni izgled. Izgrađen je od djelomično obrađenog kamenja, bez veziva, visok je 4 i po metra, promjer mu je 2 metra i 75 centimetara.
Prilikom najnovijeg istraživanja otvorena je četvrtina sklopa. Iskopan je velik dio kamenom popločanog dvorišta, dio bočnog dvorišta sa stubištem, četiri bočne prostorije s kamenim pragovima te monumentalno kameno lice središnje građevine sa stubištem, vjerojatno ostatak bazilike. Ti nalazi odlično se uklapaju u vidljive ostatke: glavna vrata s velikim kamenim lukom, zapadni i sjeverni perimetralni zid sklopa.
Iz dosad navedenog, preostalo je oblikovati i prezentirati neposredni okoliš i posebno, rubne zone arheološkog nalazišta. Regulacijom jasnog komunikacijskog usmjeravanja, eliminacijom svih efemernih detalja i intervencija, čitanjem prostornih autoriteta, željelo se potencirati glavnu temu i arheološko žarište.
U analitičkom istraživanju otkrivene su lokacije i novooblikovane projektne teme:
A) Rubna zona (granica) J-Z ugla principija dilatirana je ritmiziranim nizom vertikalnih lamela (bijeli beton) od okolnog ambijenta terasa, rampi, stubišta i fontane.
B) Crkva sv. Sebastijana podignuta je prema predaji 1291. kao zavjet u vrijeme kuge.
Postavom balkona uz istočno zabatno pročelje crkve sv. Sebastijana, omogućen je atraktivan novi doživljaj i vizura na arheološki trg. Balkonom se aktivira nova scenska mogućnost i pozicija rasvjete.
C) Lokacija ruševne, nekad stambene kuće Colazio. Kuća je očito pripadala nizu stambenih objekata, a danas, svojim punim zabatom orijentirana na prazni prostor arheološkog parka, u prostornoj je disfunkciji.
Upotreba materijala ovisna je o mjestu, a tehnologija, struktura i tekstura o karakteru i značaju. Na prezentiranom arheološkom nalazu svi upotrebljeni materijali i njihova svojstva (kamen, žbuka, teraco, mozaik) ugrađeni su preko provjerenih uzoraka i u suglasju s izvornim fragmentima.
Često spominjana crvena boja (žbuke, keramika, zidni crteži) prisutna je ovdje i sada na rubnim područjima (štokani „crveni“ beton potpornih zidova) kao kontrast svijetlom kamenu.
Intencija je potaknuti u prolaznika i posjetitelja, domaćih i stranih, slojeve ili snopove asocijacija i osjećaja na daleku, tajnovitu prošlost od koje su tu prezentni tek oskudni materijalni ostaci. Locus time dobiva nešto metafizičko i duhovno.
Urbana dimenzija Rijeke, njezina veličanstvena arhitektura, napose planovi za reurbanizaciju industrijskih zona, koji obećavaju novi urbani identitet, podnose, i čak zahtijevaju snažniju artističku gestu koja je ponuđena ovim prijedlogom.
