Exportdrvo, Rijeka
Autor: Filip PračićMentorica: Zrinka Barišić MarenićAkademska godina: 2020.
Katedra za teoriju i povijest arhitektureKabinet za modernu i suvremenu arhitekturuIndustrijska arheologija
Novi ekstremi urbanizacije ne zahtijevaju samo nove pristupe projektiranju zgrada, već i nove načine korištenja, modele promišljanja i financijskog menadžmenta, koji uključuju adaptivnu ponovnu uporabu te razrađene modele očuvanja povijesnih i zatečenih građevina. U kontekstu industrijske baštine, ova tvrdnja u lokalnom kontekstu naročito se odnosi na grad Rijeku. Pomnim angažmanom i ulaganjem u zgradu Exportdrva – kao relevantnim primjerkom riječke industrijske arhitekture – otvaraju se perspektive jedne svjetlije budućnosti njenog zatečenog post-industrijskog stanja. Umjesto ruine, upravo zgrada Exportdrva može predstavljati posebnost i potencijale ovog post-tranzicijskog lučkog grada.
Primjeri efemernog studentskog okupljanja RE:EASA-e 2018. godine, kao i izložba „Fiume Fantastika: Fenomeni grada“ (uz popratne programe i sadržaje Europske Prijestolnice Kulture) predstavljaju vrijedne studije reprogramiranja hale Exportdrva, koje potvrđuju njegovu fleksibilnost otvorenog tlocrta, prostranih etaža i izdašnih visina stropova. Kroz prezentirane primjere inovativnih programa, rad argumentira da je Rijeci nužan razrađeni plan oporabe i rekonstrukcije njenih brojnih napuštenih industrijskih prostora. Zgrada Exportdrva – svojim presudnim položajem u odnosu na centar grada i izuzetnim arhitektonskim karakteristikama – referentni je primjer ove tvrdnje, koji dokazuje da se čak i s relativno skromnim sredstvima može postići značajan učinak.
Izvori fotografija:
Fotodokumentacija RE:EASA eventa, Alexandra Kononchenko photography
Askonometrijski prikaz RE:EASA-e na Delti, Digitalni arhiv udruge EASA Croatia
Tehnički nacrti: Enia Kukoč: Rekonstrukcija i revitalizacija zone skladišta Exportdrvo u Rijeci, diplomski rad @AfZg, mentor: Idis Turato, veljača 2017.
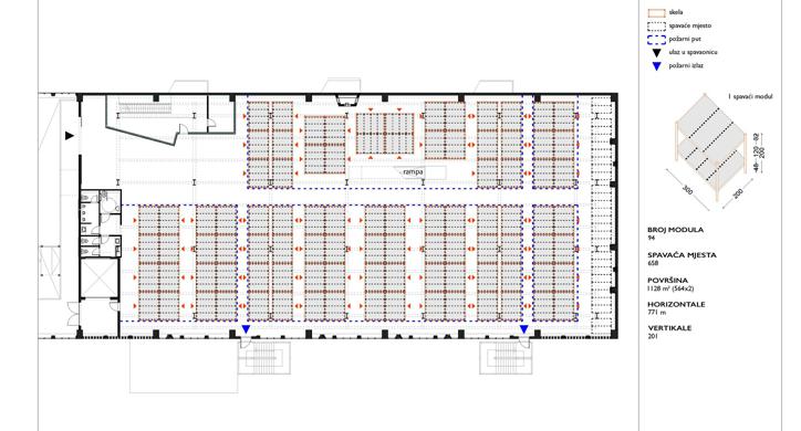
Nacrt prenamjene prizemlja Exportdrva u efemernu spavaonicu, Digitalni arhiv udruge EASA Croatia
Primjeri efemernog studentskog okupljanja RE:EASA-e 2018. godine, kao i izložba „Fiume Fantastika: Fenomeni grada“ (uz popratne programe i sadržaje Europske Prijestolnice Kulture) predstavljaju vrijedne studije reprogramiranja hale Exportdrva, koje potvrđuju njegovu fleksibilnost otvorenog tlocrta, prostranih etaža i izdašnih visina stropova. Kroz prezentirane primjere inovativnih programa, rad argumentira da je Rijeci nužan razrađeni plan oporabe i rekonstrukcije njenih brojnih napuštenih industrijskih prostora. Zgrada Exportdrva – svojim presudnim položajem u odnosu na centar grada i izuzetnim arhitektonskim karakteristikama – referentni je primjer ove tvrdnje, koji dokazuje da se čak i s relativno skromnim sredstvima može postići značajan učinak.
Izvori fotografija:
Fotodokumentacija RE:EASA eventa, Alexandra Kononchenko photography
Askonometrijski prikaz RE:EASA-e na Delti, Digitalni arhiv udruge EASA Croatia
Tehnički nacrti: Enia Kukoč: Rekonstrukcija i revitalizacija zone skladišta Exportdrvo u Rijeci, diplomski rad @AfZg, mentor: Idis Turato, veljača 2017.
Nacrt prenamjene prizemlja Exportdrva u efemernu spavaonicu, Digitalni arhiv udruge EASA Croatia
