Mirisni perivoj
Mentor: Mladen Obad ŠćitarociAutor: Lucija Belinić
Obuhvat projekta se u 19. Stoljeću nalazio se na periferiji grada Zagreba. Južnim dijelom obuhvata prolazio je potok Medveščak, a cjelokupna površina današnjeg bloka bila je prekrivena livadama i
pašnjacima. Uz istočnu granicu obuhvata u 19. st. nalazili su se Biskupski perivoji, čiji se tragovi danas vide uz Vlašku ulicu.
Zagreb se u 20. st. širi. Dolazi do razvoja urbane matrice istočnog dijela grada te započinje formacija sustava donjogradskih blokova među kojima se formira i blok čiju unutrašnjost projektiramo. Na prostoru Biskupskih perivoja nastaju novi stambeni blokovi.
Koncept mirisnog perivoja obuhvaća:
- novi jedinstveni sadržaj u gradu Zagrebu
- dugu i zanimljivu povijest mirisa
- raznovrsno i mnogobrojno mirisno bilje i njegove moguće uporabe
- afirmaciju osjetila mirisa koje je često zanemareno
- terapeutski učinak mirisnog bilja.
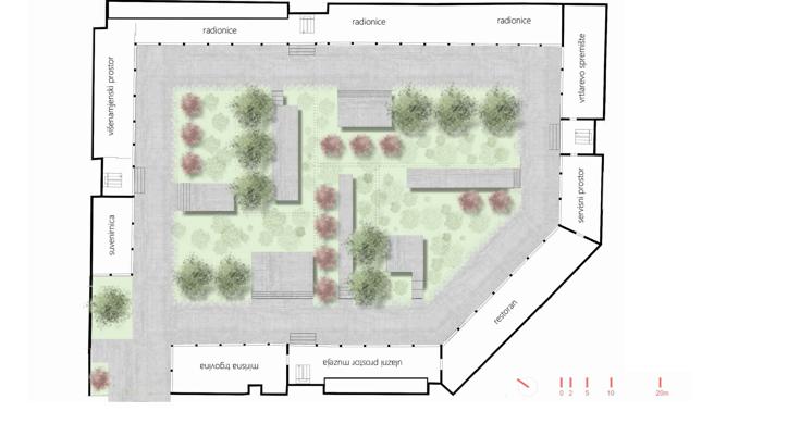
Parter je u potpunosti ozelenjen i ispunjen mirisnim biljem. Teren je neprohodan, a komunikacija je smještena uz rub izgradnje u obliku obodnog platoa. U samom perivoju mjesto boravka i odmora je na platoima lagano odignutima od terena.
Vertikale u postojećoj izgradnji su zadržane.U prizemlju se nalazi muzejski prostor, a na katu otvoreni trijem. Trijem je prostor boravka na otvorenom, zaštićen od padalina. Sadržaji u unutrašnjem bloku dostupni su cijelu godinu.
Programski sadržaj
Unutrašnja izgradnja preuzeti će ulogu muzejskog prostora i kojemu će biti predstavljena tematika mirisa, njegova povijest, razvoj, upotreba, raznovrsnost i slično.
Edukacijsku i kulturnu ulogu pripadajućeg muzeja upotpunit će mirisni perivoj u središtu bloka. Svojom povoljnom lokacijom i jednostavnošću, perivoj će privući stanovnike i posjetitelje. Pružit će mogućnost dužeg ili kraćeg boravka i odmora os svakidašnje užurbanosti i vreve grada uz terapeutsko djelovanje biljaka.
pašnjacima. Uz istočnu granicu obuhvata u 19. st. nalazili su se Biskupski perivoji, čiji se tragovi danas vide uz Vlašku ulicu.
Zagreb se u 20. st. širi. Dolazi do razvoja urbane matrice istočnog dijela grada te započinje formacija sustava donjogradskih blokova među kojima se formira i blok čiju unutrašnjost projektiramo. Na prostoru Biskupskih perivoja nastaju novi stambeni blokovi.
Koncept mirisnog perivoja obuhvaća:
- novi jedinstveni sadržaj u gradu Zagrebu
- dugu i zanimljivu povijest mirisa
- raznovrsno i mnogobrojno mirisno bilje i njegove moguće uporabe
- afirmaciju osjetila mirisa koje je često zanemareno
- terapeutski učinak mirisnog bilja.
Parter je u potpunosti ozelenjen i ispunjen mirisnim biljem. Teren je neprohodan, a komunikacija je smještena uz rub izgradnje u obliku obodnog platoa. U samom perivoju mjesto boravka i odmora je na platoima lagano odignutima od terena.
Vertikale u postojećoj izgradnji su zadržane.U prizemlju se nalazi muzejski prostor, a na katu otvoreni trijem. Trijem je prostor boravka na otvorenom, zaštićen od padalina. Sadržaji u unutrašnjem bloku dostupni su cijelu godinu.
Programski sadržaj
Unutrašnja izgradnja preuzeti će ulogu muzejskog prostora i kojemu će biti predstavljena tematika mirisa, njegova povijest, razvoj, upotreba, raznovrsnost i slično.
Edukacijsku i kulturnu ulogu pripadajućeg muzeja upotpunit će mirisni perivoj u središtu bloka. Svojom povoljnom lokacijom i jednostavnošću, perivoj će privući stanovnike i posjetitelje. Pružit će mogućnost dužeg ili kraćeg boravka i odmora os svakidašnje užurbanosti i vreve grada uz terapeutsko djelovanje biljaka.
