Astronomski observatorij /rektorova nagrada/
Autorica: Vedrana MoslavacMentori: Sonja Tadej, Krunoslav IvanišinAkademska godina: 2019.
Katedra za arhitektonsko projektiranjeKabinet za javne zgradeRadionica arhitektonskog projektiranja 3
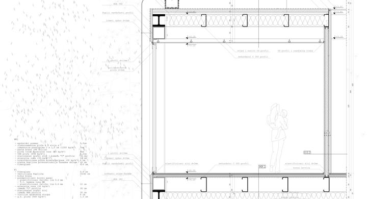
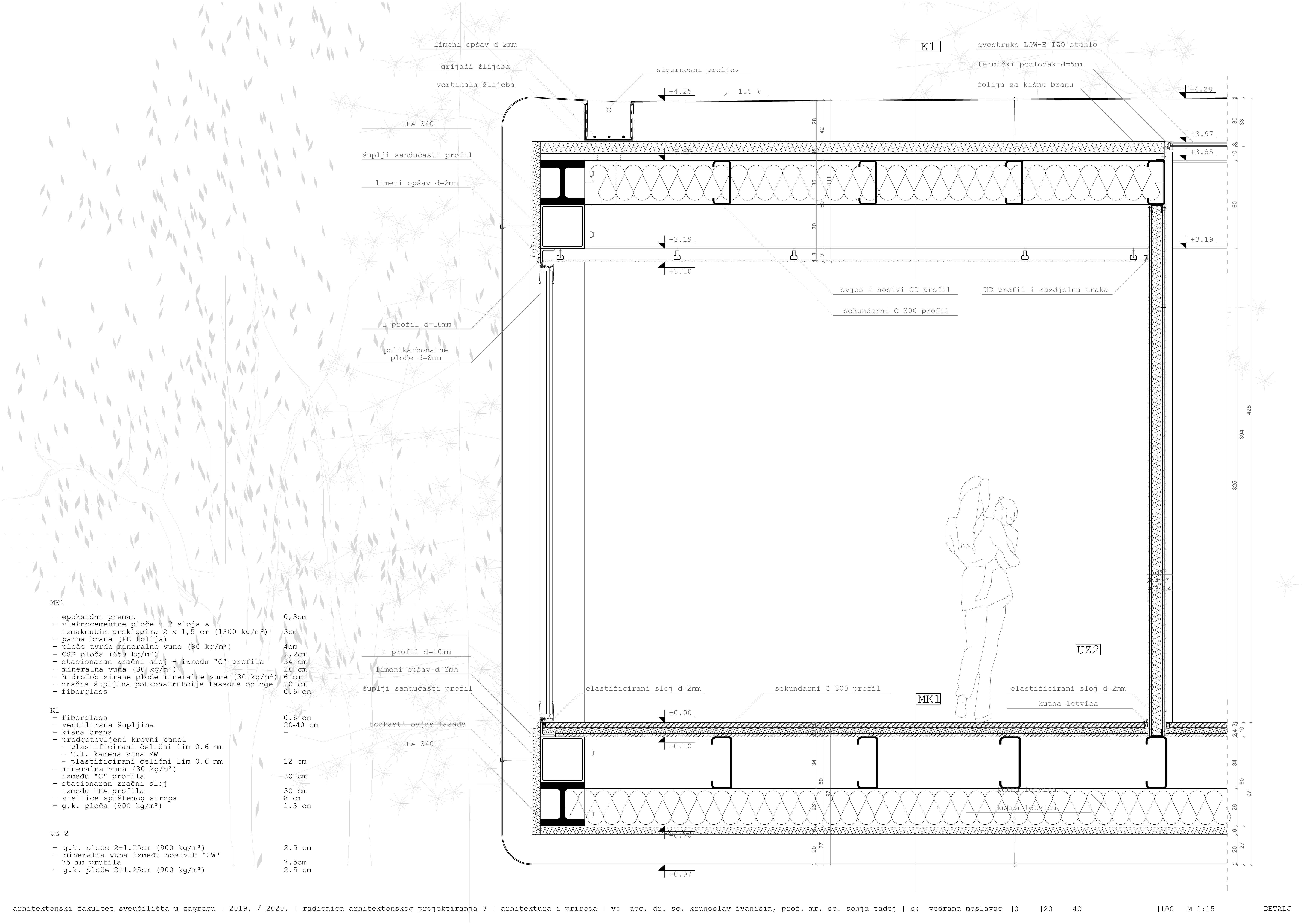
Unutar dominantne prirode, arhitektura nije mimikrija, nego sredstvo pojačavanja prirodnih svojstava i duha mjesta. Sublimno nasuprot romantičnom. Kuća je „alien object“ u savršenoj prirodi, arhitektura u potpunom kontrastu. Izduljenim oblikom njeno oplošje postaje maksimalna opna u dodiru s intenzivnim krajolikom, od kojega nas na prvi pogled izolira, ali zapravo usmjeruje prema bitnom. Stroj, pragmatična rešetkasta konstrukcija razapeta je između dvije točke, austrougarske kule i nekadašnjeg opservatorija na najvišoj točki brda te vidikovca nad planinskim usjekom. Osim te simbolične poveznice neba i zemlje, rešetku nose i kroz nju prodiru monoliti koji usmjeruju čovjekov pogled prema gore - kružne sobe kao pojačivači neba, prozori u svemir.
