Zdravstvena i socijalna skrb u gradu
Autor: Božidar ŠušnjarMentori: Gordana Žaja, Dražen Juračić
Katedra za arhitektonsko projektiranjeKabinet za javne zgradeRadionica arhitektonskog projektiranja 3
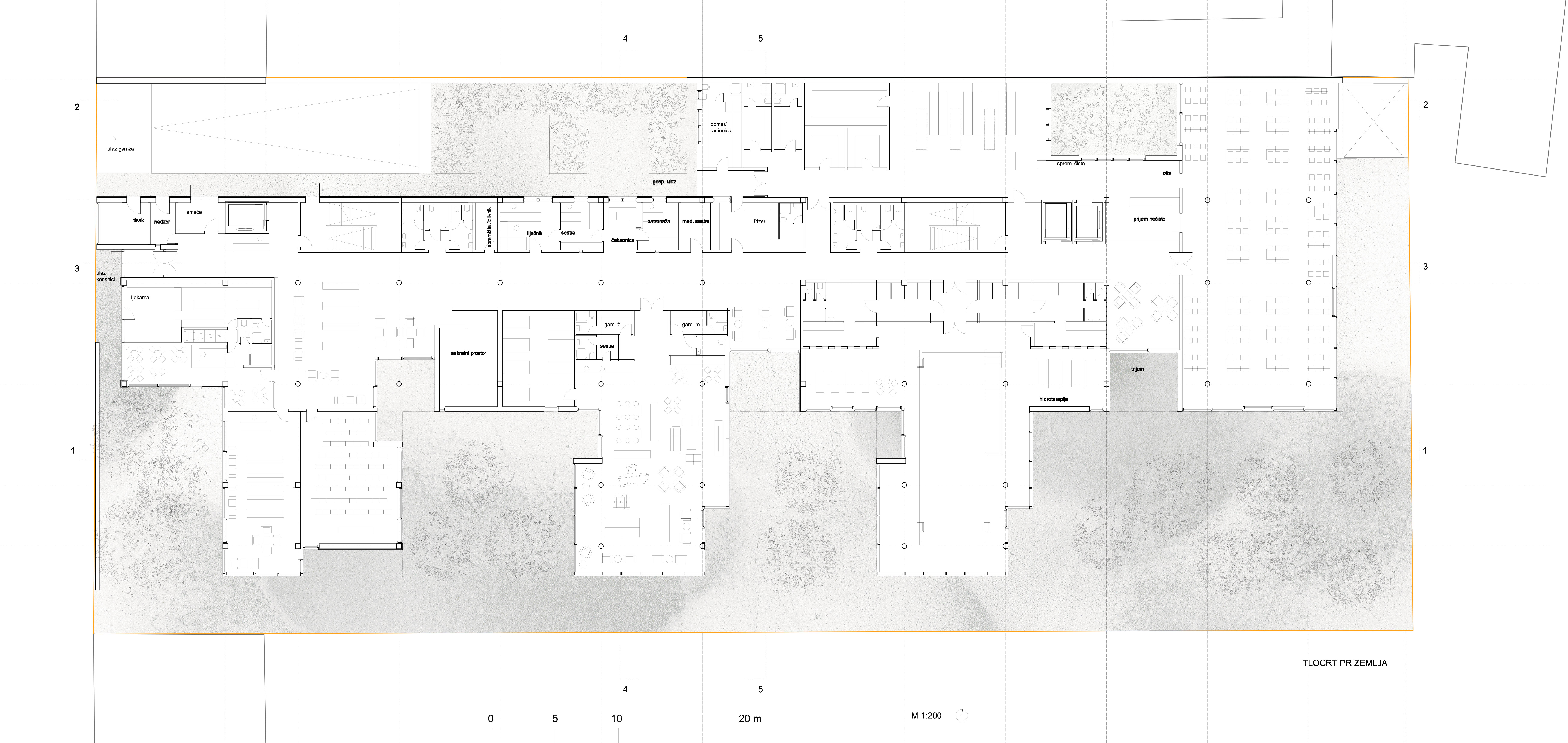
Tema zadatka jest idejno rješenje socijalne ili zdravstvene ustanove u formiranom gradskom tkivu na području Zagreba. Student bira zadatak jednu od dviju ponuđenih tematskih cjelina te lokaciju. Tematske cjeline čine socijalna namjena (domovi za starije osobe koji pružaju različite vrste skrbi za stare i nemoćne, centri za privremeni smještaj kronično bolesne djece) i zdravstvena namjena (individualne i grupne prakse, zdravstveni centi i poliklinike). Ustanove za skrb o starijim građanima obuhvaćaju od dnevnih bolnica do hospicija. Takvih zgrada kronično nedostaje u gradskim centrima, iako su za većinu oblika skrbi centralne lokacije vrlo poželjne jer omogućuju stalni kontakt obitelji i štićenika/pacijenata, poznati okoliš, itd. Najveće liste čekanja u staračkim domovima upravo su u centru (Klaićeva, Iblerov trg). Posebno je povećana potreba za hospicijskom skrbi zbog redukcije bolničkog liječenja, koje više ne obuhvaća kronično i terminalno bolesne. Tema ove radionice jest projektantski zadatak dvostruke kompleksnosti: ne samo da se radi o projektiranju sadržajno, značenjski i tehnološki složene zgrade nego je ona i smještena u izgrađenom, urbanistički i kulturno-povijesno slojevitom gradskom kontekstu. Uistinu se radi o simulaciji stvarne prakse: planirani sadržaji su društveno potrebni i komercijalno isplativi; projektni program je zahtjevan, a lokacije imaju i ograničenja i inspirativne aspekte.
