Meteorološki laboratorij Smetovi
Mentori: Sonja Tadej, Krunoslav IvanišinAkademska godina: 2019.
Katedra za arhitektonsko projektiranjeKabinet za javne zgradeRadionica arhitektonskog projektiranja 3
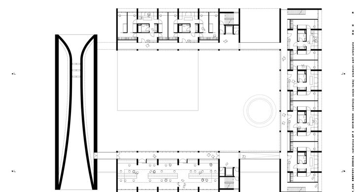
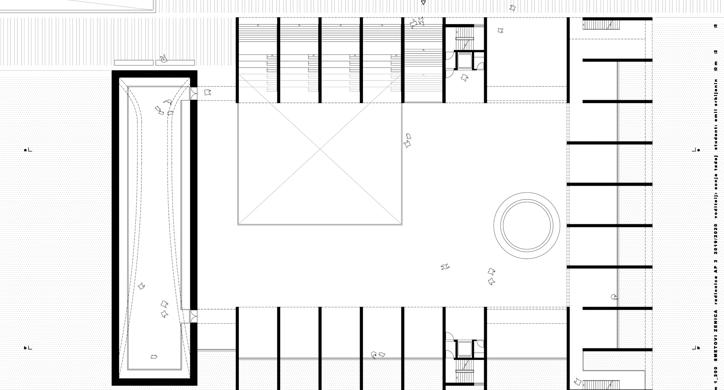
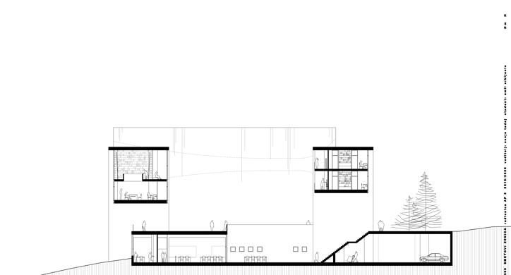
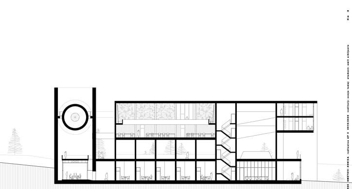
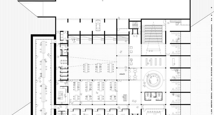
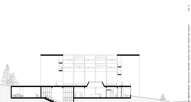
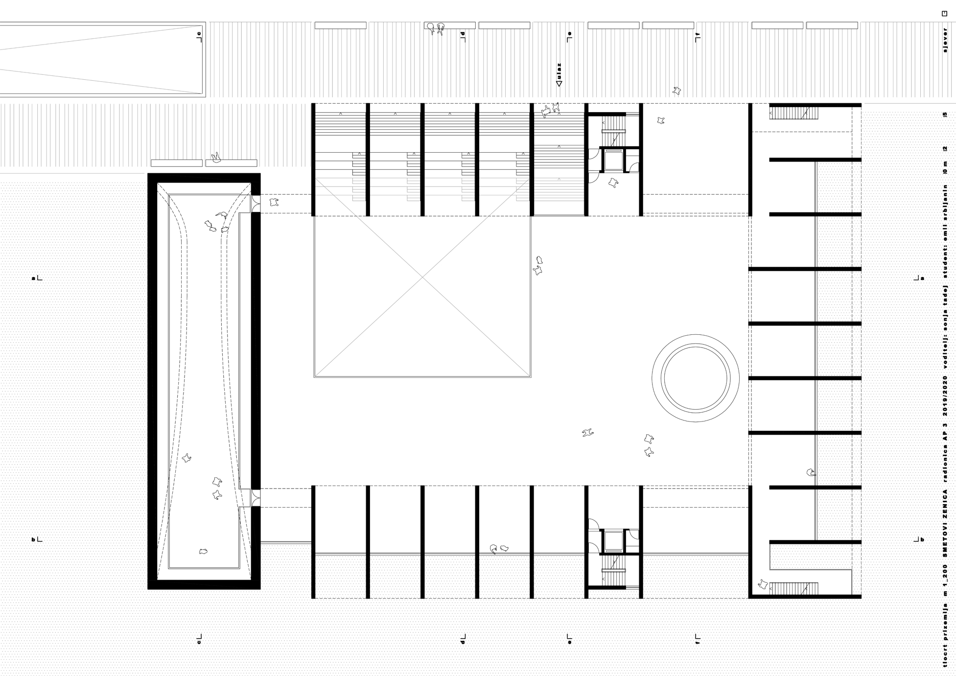
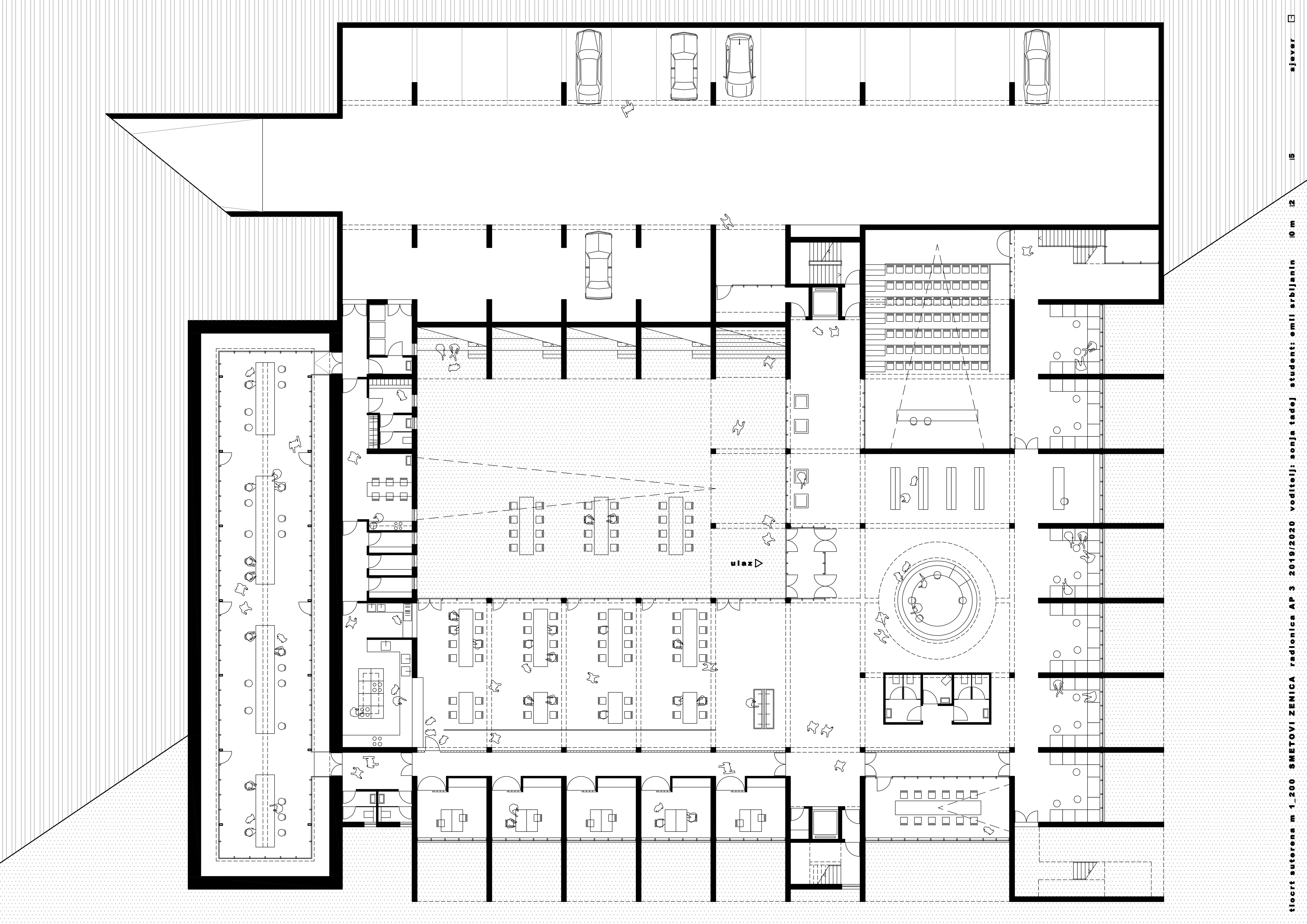
Dominantni krajolik ostavlja arhitekturu izloženu grubim prirodnim uvjetima. Brojne srednjovjekovne tvrđave i fortifikacije, točkasto razasute krajobrazom, sastavni su činioci prostora. Smješten na uzvisini u zaleđu Zenice, grada obilježenog teškom metalurškom industrijom, nalazi se meteorološki laboratorij. Industrijski karakter grada i grubi prirodni uvjeti, nalažu arhitekturu koja štiti, ali i utilizira samu lokaciju i njene datosti. U maniri industrijskog grada koji živi svoje resurse, vjetrovi postaju sirovina. Monolitni volumen vjetroturbine suprotstavlja se netaknutom krajoliku, materijalizacija nadmetanja prirode i čovjeka. Zujanje turbina i vibracije prolaska vjetra činitelji su tog „industrijskog hrama“. Laboratorij snažnom zatvorenom formom štiti unutrašnjost od nepovoljnih uvjeta. Nizovi izdignutih soba stacionara povezani su dnevnim boravcima, reinterpretacijom doksata. Orijentacijom zidova te igrom punina i praznina kadrirane su vizure, a dijelovi kuće ostaju izloženi krajoliku - pojačivači prirode, mjesta spoznaje.
