Osnovna škola Kušlanova, Zagreb / pohvala kolegija
Autor: Matija CepanecMentor: Vanja RisterAkademska godina: 2018.
Katedra za arhitektonsko projektiranjeKabinet za zgrade društvenog standardaStudio 3 - Arhitektura
Osnovna škola Dragutina Kušlana nalazi se na novoformiranoj građevnoj parceli koja nastaje rušenjem postojećih građevina, a smještena je u naselju Stara Peščenica u Zagrebu. Područje šireg obuhvata obuhvaća prostor III. Gimnazije Egona Steinmana s kojom škola dijeli vanjske sportske terene.
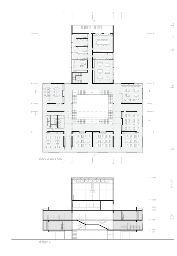
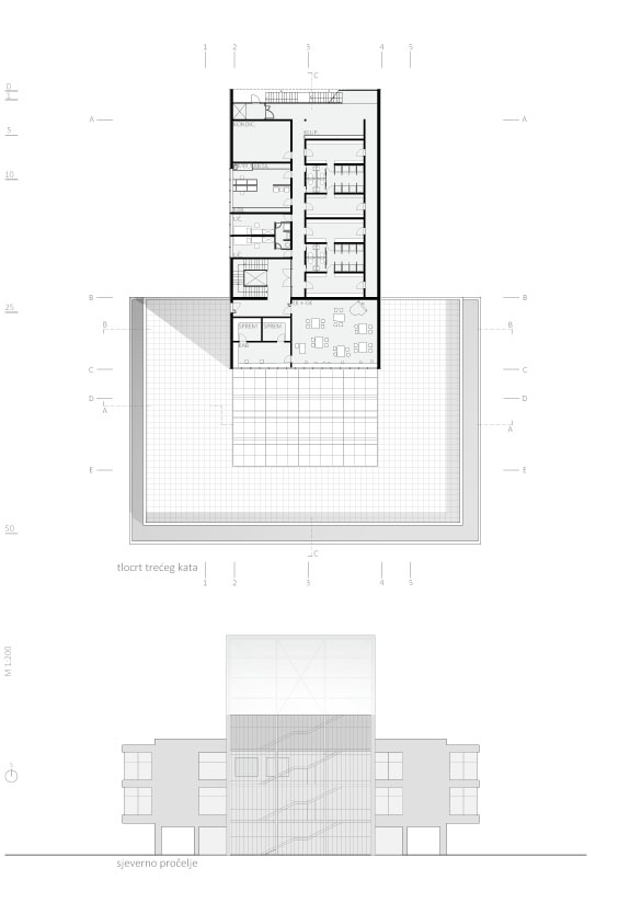
Prostorna zamisao pretpostavlja kompoziciju dva volumena karakterističnih namjena i proporcija. U horizontalnom izdignutom volumenu učionice se nižu oko pravokutnog šupljine zajedničkih prostora jasno formirajući središte škole integrirano sa parterom dubokim trijemom. Specijalizirani, prateći prostori i školska dvorana oblikuju se u vertikalni volumen koji uspostavlja dijalog sa novijom, gušćom i višom izgradnjom višestambenih zgrada naselja u transformaciji.
Glavni pješački pristup na parcelu je sa zapadne strane s novo planirane prometnice koja je produžetak Šulekove ulice. Na zapadnoj strani nalazi se i kolni ulaz u gospodarsko dvorište smješteno na sjeverozapadu parcele. Ulaz za vanjske korisnike dvorane smješten je na sjevernom dijelu vezan uz par susjednog stambenog tornja i riješen je u obliku pješačke staze koja se provlači čitavom širinom parcele.
Nosivu konstrukciju sjevernog volumena čine armirano betonski zidovi, a južnog armiranobetonski zidni nosači na stupovima. Oni se međusobno razlikuju u vanjskom oblikovanju. Završna obloga vertikalnog volumena je neutralna betonska obloga dok se na vrhu ističe translucentna membrana koja obavija dvoranu. Pročelja horizontalnog volumena su ostakljena, kao elementi oblikovanja ističu se trake međukatne konstrukcije i parapeta obložene profiliranim limom, te naglašeni okviri kliznih stijena.
U rasteru stupova u prizemlju se ističu krakovi stubišta koji pozivaju korisnika i najavljuju prostore na etažama iznad. Unutarnji prostor je organiziran u obliku galerija koje okružuju PVN koji se svojom visinom proteže kroz cijeli volumen zgrade. Galerije zadiru u pravilan raster učionica smještenih po obodu tlocrta, stvarajući tako podjelu prostora na javni, polu-javni i privatni. Fleksibilnost u korištenju prostora postignuta je granulacijom, tj. organizacijom prostorija prema veličini i namjeni. Tako nastaju potezi učionica na jugu i istoku, sjeverne jedinice sadržavaju učenički klub i biblioteku koja je na dvije etaže dijagonalno povezana stubištem te prostore specijaliziranih učionica čijim povezivanjem nastaje veliki radno tehnički prostor Na posljednjoj etaži smještena je dvorana, a etažu ispod njezini popratni sadržaji. Dvorana je smještena na vrh kako bi se očuvala čistoća organizacije prostora u nižim etažama. To je iskorišteno u oblikovnom smislu jer se postavljanjem dvorane na vrh, škola visinom približava susjednom soliteru i na taj način uklapa u urbanistički kontekst, a oblikovanjem fasade, daje se akcent koji stvara ravnotežu između dva vertikalna elemeta i stvara se novi reper tog mikro prostora.
Prostorna zamisao pretpostavlja kompoziciju dva volumena karakterističnih namjena i proporcija. U horizontalnom izdignutom volumenu učionice se nižu oko pravokutnog šupljine zajedničkih prostora jasno formirajući središte škole integrirano sa parterom dubokim trijemom. Specijalizirani, prateći prostori i školska dvorana oblikuju se u vertikalni volumen koji uspostavlja dijalog sa novijom, gušćom i višom izgradnjom višestambenih zgrada naselja u transformaciji.
Glavni pješački pristup na parcelu je sa zapadne strane s novo planirane prometnice koja je produžetak Šulekove ulice. Na zapadnoj strani nalazi se i kolni ulaz u gospodarsko dvorište smješteno na sjeverozapadu parcele. Ulaz za vanjske korisnike dvorane smješten je na sjevernom dijelu vezan uz par susjednog stambenog tornja i riješen je u obliku pješačke staze koja se provlači čitavom širinom parcele.
Nosivu konstrukciju sjevernog volumena čine armirano betonski zidovi, a južnog armiranobetonski zidni nosači na stupovima. Oni se međusobno razlikuju u vanjskom oblikovanju. Završna obloga vertikalnog volumena je neutralna betonska obloga dok se na vrhu ističe translucentna membrana koja obavija dvoranu. Pročelja horizontalnog volumena su ostakljena, kao elementi oblikovanja ističu se trake međukatne konstrukcije i parapeta obložene profiliranim limom, te naglašeni okviri kliznih stijena.
U rasteru stupova u prizemlju se ističu krakovi stubišta koji pozivaju korisnika i najavljuju prostore na etažama iznad. Unutarnji prostor je organiziran u obliku galerija koje okružuju PVN koji se svojom visinom proteže kroz cijeli volumen zgrade. Galerije zadiru u pravilan raster učionica smještenih po obodu tlocrta, stvarajući tako podjelu prostora na javni, polu-javni i privatni. Fleksibilnost u korištenju prostora postignuta je granulacijom, tj. organizacijom prostorija prema veličini i namjeni. Tako nastaju potezi učionica na jugu i istoku, sjeverne jedinice sadržavaju učenički klub i biblioteku koja je na dvije etaže dijagonalno povezana stubištem te prostore specijaliziranih učionica čijim povezivanjem nastaje veliki radno tehnički prostor Na posljednjoj etaži smještena je dvorana, a etažu ispod njezini popratni sadržaji. Dvorana je smještena na vrh kako bi se očuvala čistoća organizacije prostora u nižim etažama. To je iskorišteno u oblikovnom smislu jer se postavljanjem dvorane na vrh, škola visinom približava susjednom soliteru i na taj način uklapa u urbanistički kontekst, a oblikovanjem fasade, daje se akcent koji stvara ravnotežu između dva vertikalna elemeta i stvara se novi reper tog mikro prostora.
