Osnovna škola Jastrebarsko / pohvala kolegija
Autorica: Katarina MustaćMentor: Tonči ŽarnićAkademska godina: 2016.
Katedra za arhitektonsko projektiranjeKabinet za zgrade društvenog standardaStudio 3 - Arhitektura
Novoplanirana osnovna škola nalazi se u gradu Jastrebarsko, na parceli smještenoj na sjeveroistočnom ulazu u grad, s vizurama prema Žumberačkom gorju na sjeveru.
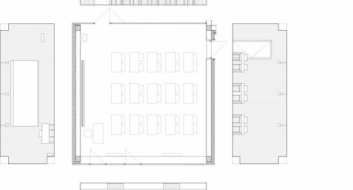
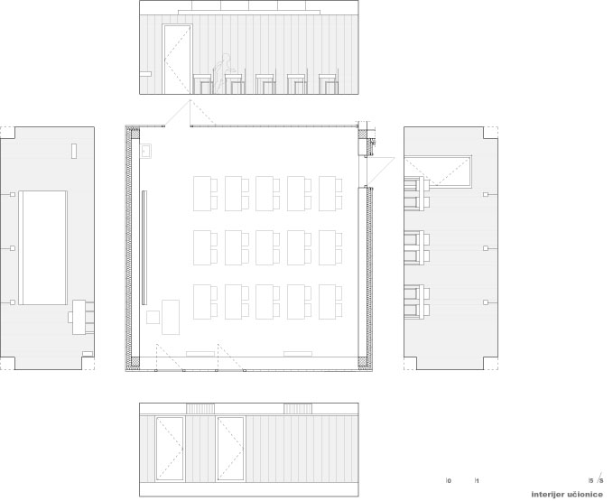
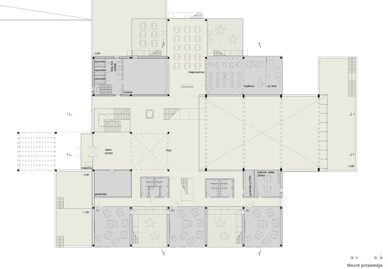
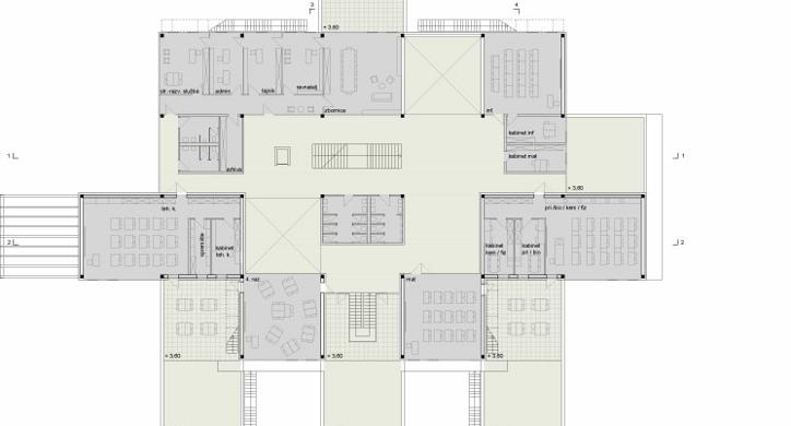
Prostori školske zgrade projektirani su u modularnom rasteru od 8 x 8 m, a jedan modul odgovara veličini jedne učionice. Veće učionice i veći prostori nastaju povezivanjem više modula, dok se manji prostori poput sanitarija i kabineta grupiraju unutar modula uz neki veći prostor ili funkcioniraju kao manje samostalne jedinice unutar modula.
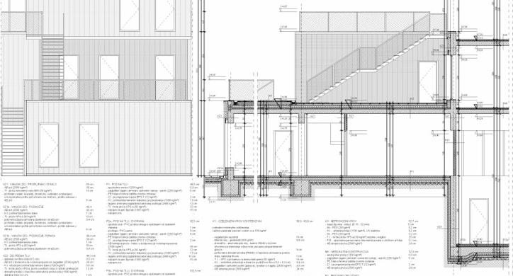
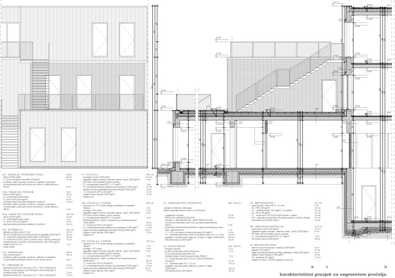
Nosiva konstrukcija škole sastoji se od armiranobetonskih stupova i greda koji zajedno tvore sustav okvira. Sustav okvira dodatno se stabilizira armiranobetonskim dijagonalama na pročelju te u interijeru škole.
Pročelje školske zgrade dominantno je određeno profiliranim staklom, koje se postavlja na mjestima gdje se nalazi i ne nalazi ploha zida. isti materijal je osim na pročelju, postavljen u interijeru na većem broju učionica kao predgrada prema komunikaciji. Plohe prema terasama na južnom pročelju, te nekoliko ploha sjevernog, istočnog i zapadnog pročelja su ostakljene te omogućuju vizualni kontakt s vanjskim prostorom. Kako u eksterijeru, tako se i u interijeru izmjenjuju plohe profiliranog i prozirnog stakla.
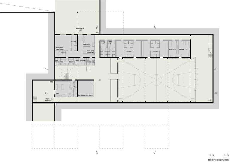
Osnovna namjera je ostvarenje veze parcele i škole te škole sa šumom i gorjem. Veza se ostvaruje kroz terasasti presjek koji omogućava iskorištavanje južne orijentacije i vizura prema sjeveru. Elementi punog - volumeni učionica i praznog - prostori terasa i vrtova izmjenjuju se te postupno uvlače u dubinu tlocrta na svakoj sljedećoj etaži. Broj učionica, terasa i vrtova je na južnom pročelju dominantan, dok se na ostalim pročeljima smanjuje. Društveni sadržaji i nekoliko učionica, nalaze se na sjeveru. Struktura vanjskog volumena i nizanje planova dijelom su prisutni i u interijeru. Servisni prostori i kabineti učionica formirani su unutar manjih jedinica koje s pojedinim sadržajima otvorenijeg karaktera i manjim brojem dvoetažnih prostora stvaraju ritam punog i praznog, providnost, nizanje planova te sugeriraju različita kretanja kroz prostor.
Prostori školske zgrade projektirani su u modularnom rasteru od 8 x 8 m, a jedan modul odgovara veličini jedne učionice. Veće učionice i veći prostori nastaju povezivanjem više modula, dok se manji prostori poput sanitarija i kabineta grupiraju unutar modula uz neki veći prostor ili funkcioniraju kao manje samostalne jedinice unutar modula.
Nosiva konstrukcija škole sastoji se od armiranobetonskih stupova i greda koji zajedno tvore sustav okvira. Sustav okvira dodatno se stabilizira armiranobetonskim dijagonalama na pročelju te u interijeru škole.
Pročelje školske zgrade dominantno je određeno profiliranim staklom, koje se postavlja na mjestima gdje se nalazi i ne nalazi ploha zida. isti materijal je osim na pročelju, postavljen u interijeru na većem broju učionica kao predgrada prema komunikaciji. Plohe prema terasama na južnom pročelju, te nekoliko ploha sjevernog, istočnog i zapadnog pročelja su ostakljene te omogućuju vizualni kontakt s vanjskim prostorom. Kako u eksterijeru, tako se i u interijeru izmjenjuju plohe profiliranog i prozirnog stakla.
Osnovna namjera je ostvarenje veze parcele i škole te škole sa šumom i gorjem. Veza se ostvaruje kroz terasasti presjek koji omogućava iskorištavanje južne orijentacije i vizura prema sjeveru. Elementi punog - volumeni učionica i praznog - prostori terasa i vrtova izmjenjuju se te postupno uvlače u dubinu tlocrta na svakoj sljedećoj etaži. Broj učionica, terasa i vrtova je na južnom pročelju dominantan, dok se na ostalim pročeljima smanjuje. Društveni sadržaji i nekoliko učionica, nalaze se na sjeveru. Struktura vanjskog volumena i nizanje planova dijelom su prisutni i u interijeru. Servisni prostori i kabineti učionica formirani su unutar manjih jedinica koje s pojedinim sadržajima otvorenijeg karaktera i manjim brojem dvoetažnih prostora stvaraju ritam punog i praznog, providnost, nizanje planova te sugeriraju različita kretanja kroz prostor.
