Osnovna škola Ivanja Reka / pohvala kolegija
Autorica: Dora LončarićMentor: Tonči ŽarnićAkademska godina: 2011.
Katedra za arhitektonsko projektiranjeKabinet za zgrade društvenog standardaStudio 3 - Arhitektura
školska zgrada se nalazi na rubu zagreba, u zoni naplavljivanja. od poplava školu štiti nasip, odnosno umjetno brdo. školski objekt tone u nasip, a ukopana dvorišta osiguravaju dovoljnu količinu svjetlosti te pristup terenu.
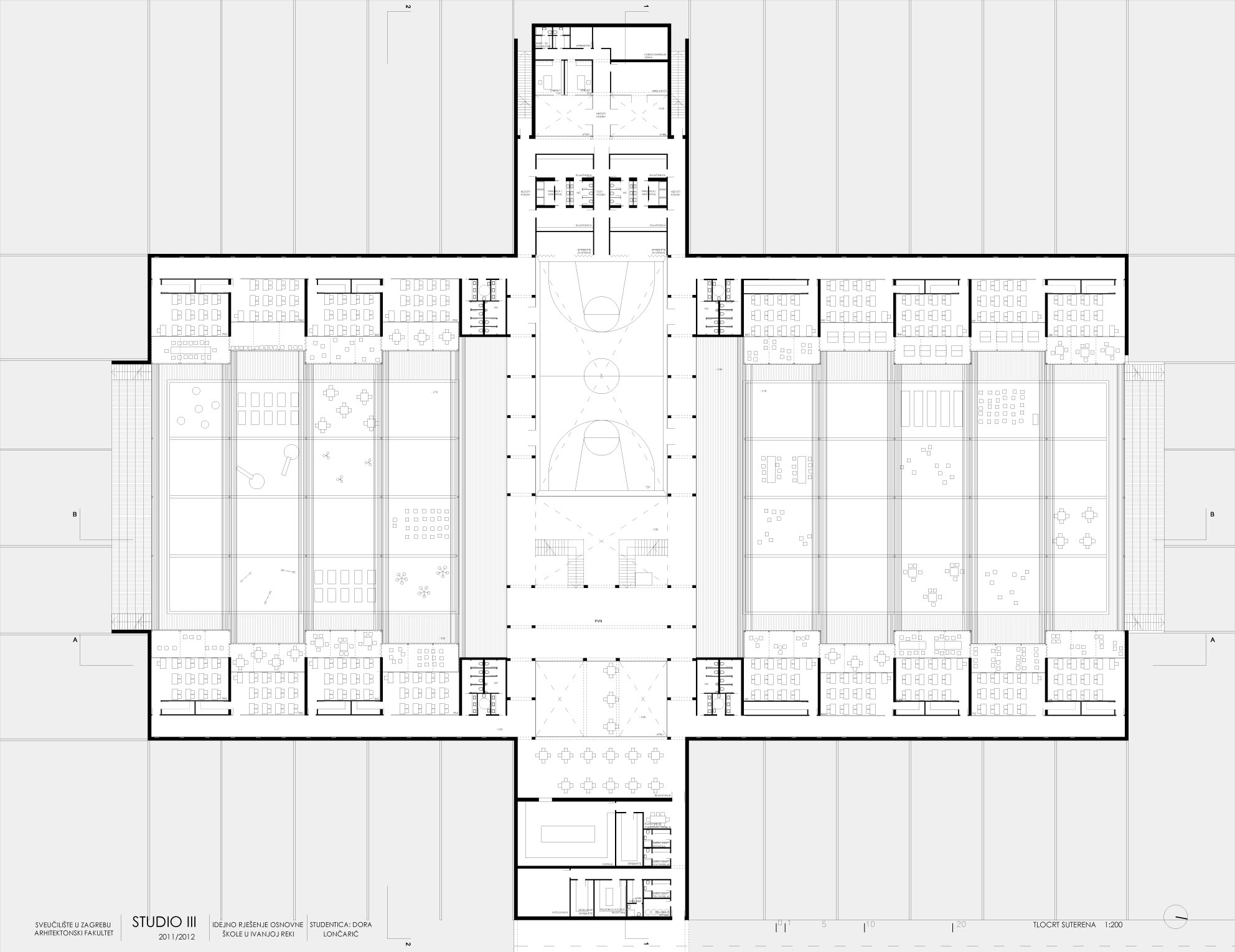
tri su glavna elementa škole: središnji dio sa društvenim sadržajima i prostorima koji se koriste izvan radnog vremena škole, dio s učionicama i velika ukopana dvorišta.
učionički trakt se dijeli na tri zone: zona hodnika, zona učionica i zona proširenja prostora učionica - staklenika. klasična nastava odvija se u učionicama, a prošireni prostor učionica (staklenik) omogućava grupni rad, igru, individualni rad itd. dva dijela učionice su odvojena staklenom kliznom stijenom pa je moguće stvaranje jedinstvenog većeg prostora. staklenici su povezani s mogućnošću odvajanja.
ukopana dvorišta su interni vanjski prostori škole u kojima se može odvijati nastava na otvorenome. prostor je natkriven tendama poput onih koje se koriste za zaštitu nasada pa se time stvora zaštićeni vanjski prostor.
volumen zemlje potreban za izgradnju nasipa premašuje volumen zemlje dobiven iskopavanjem tijekom izgradnje škole pa je izgradnja nasipa predviđena u etapama. nasip je podijeljen na segmente koje definiraju drveni graničnici (kao na deponijima pijeska, šljunka i ostalih agregata). segmenti su u početku prazni - džepići u kojima se događaju sadržaji (s zapadne strane više vezani za naselje, a s istočne strane za školu) ili zelenilo. neki se segmenti nasipavaju na početku, tijekom izgradnje škole s iskopanom zemljom s parcele, a neki će se nasipati kasnije kada se pojavi nepotrebna zemlja na nekom od okolnih gradilišta.
tri su glavna elementa škole: središnji dio sa društvenim sadržajima i prostorima koji se koriste izvan radnog vremena škole, dio s učionicama i velika ukopana dvorišta.
učionički trakt se dijeli na tri zone: zona hodnika, zona učionica i zona proširenja prostora učionica - staklenika. klasična nastava odvija se u učionicama, a prošireni prostor učionica (staklenik) omogućava grupni rad, igru, individualni rad itd. dva dijela učionice su odvojena staklenom kliznom stijenom pa je moguće stvaranje jedinstvenog većeg prostora. staklenici su povezani s mogućnošću odvajanja.
ukopana dvorišta su interni vanjski prostori škole u kojima se može odvijati nastava na otvorenome. prostor je natkriven tendama poput onih koje se koriste za zaštitu nasada pa se time stvora zaštićeni vanjski prostor.
volumen zemlje potreban za izgradnju nasipa premašuje volumen zemlje dobiven iskopavanjem tijekom izgradnje škole pa je izgradnja nasipa predviđena u etapama. nasip je podijeljen na segmente koje definiraju drveni graničnici (kao na deponijima pijeska, šljunka i ostalih agregata). segmenti su u početku prazni - džepići u kojima se događaju sadržaji (s zapadne strane više vezani za naselje, a s istočne strane za školu) ili zelenilo. neki se segmenti nasipavaju na početku, tijekom izgradnje škole s iskopanom zemljom s parcele, a neki će se nasipati kasnije kada se pojavi nepotrebna zemlja na nekom od okolnih gradilišta.
