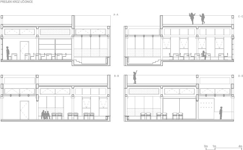
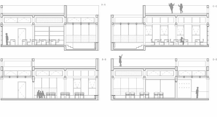
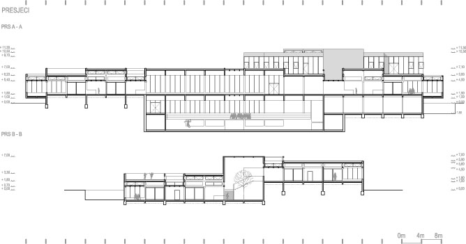
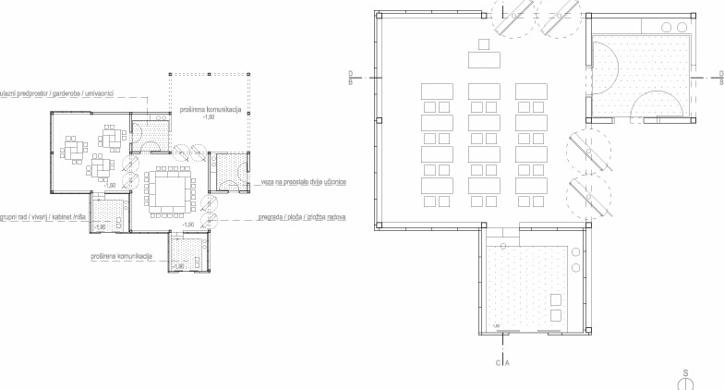
Osnovna škola Horvati / pohvala kolegija
Autor: Grgur ButiganMentorica: Marina BertinaAkademska godina: 2013.
Katedra za arhitektonsko projektiranjeKabinet za zgrade društvenog standardaStudio 3 - Arhitektura
Osnovna škola Horvati / pohvala kolegija
