Osnovna škola u Knežiji
Autorica: Matea AntunicaMentorica: Marina Bertina
Katedra za arhitektonsko projektiranjeKabinet za zgrade društvenog standardaStudio 3 - Arhitektura
Knežija je tipično novo naselje u najvećoj gradskoj četvrti Trešnjevka. Izgrađena je uglavnom 70-tih godina prošlog stoljeća, dovršena početkom ovog stoljeća, na prostoru između Save i Zagrebačke avenije.
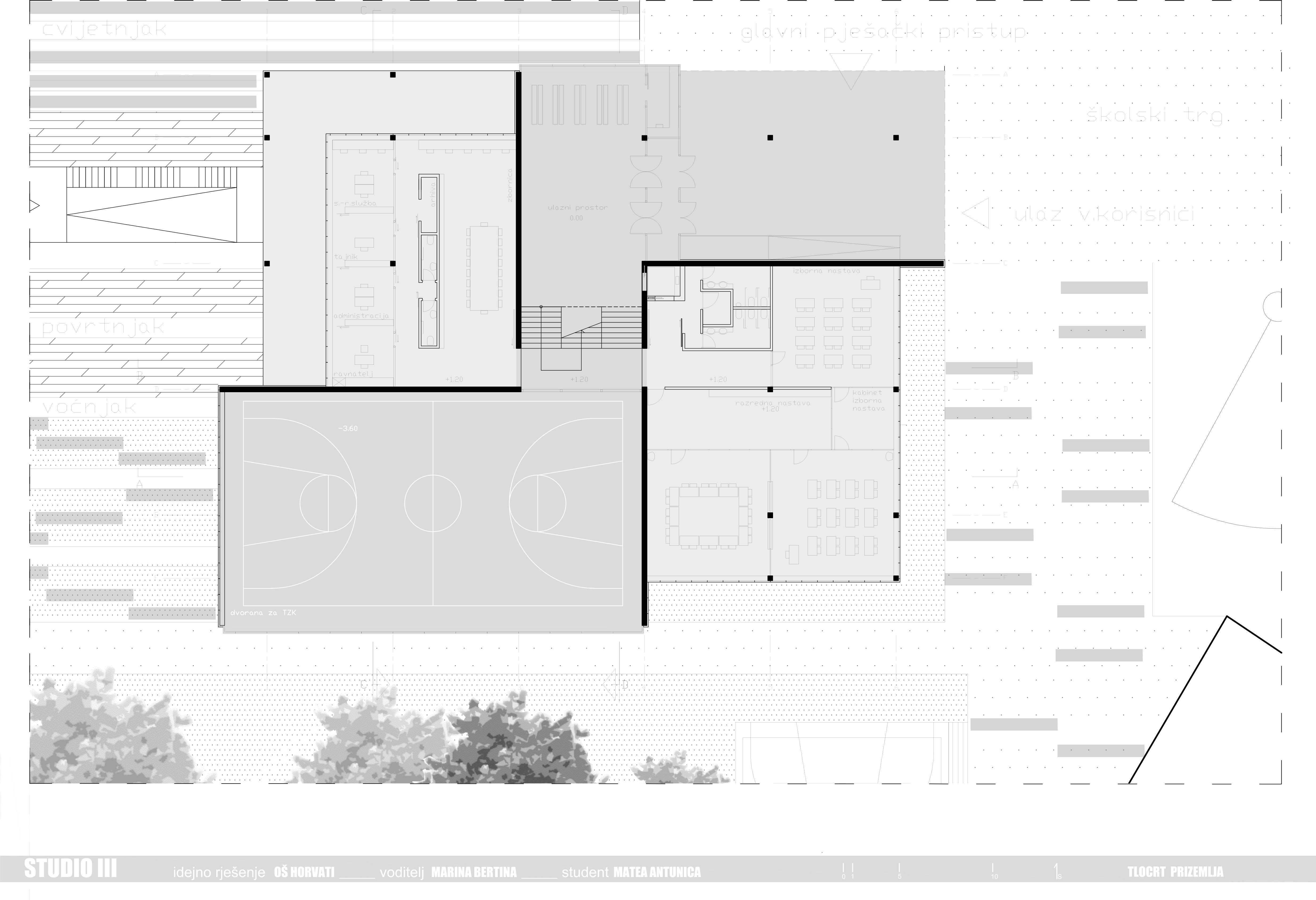
Lokacija predviđena za osnovnu školu kapaciteta 480 učenika, jednodjelnom dvoranom i vanjskim igralištima. Okružena je s četiri strane ulicama, omeđena i definirana heterogenim tkivom različitih urbanih tipologija, od usitnjenog prostora individualnih obiteljskih kuća do višestambenih blokova, izgrađenih u posljednjih pedesetak godina.
Zadatak je istražiti kako unutar jasnih funkcionalnih zahtjeva i pravila definirati i artikulirati prostore koji istovremeno mogu biti racionalni i nekonvencionalni, ordinarni i uzbudljivi, ekonomični i poticajni. Na taj način izlazimo izvan okvira jednodimenzionalnih i rigidnih funkcionalnih režima. Projektom se istražuju i utjecaji specifičnog karaktera konteksta ,u prostornom i sociološkom aspektu, na mogući izbor arhitektonske tipologije kao i na artikuliranje prostora i sadržaja koje škola može ponuditi lokalnoj zajednici. Vrlo je važno istražiti utjecaj škole u redefiniranju i uravnoteženju zatečenog urbanog konteksta.
Lokacija predviđena za osnovnu školu kapaciteta 480 učenika, jednodjelnom dvoranom i vanjskim igralištima. Okružena je s četiri strane ulicama, omeđena i definirana heterogenim tkivom različitih urbanih tipologija, od usitnjenog prostora individualnih obiteljskih kuća do višestambenih blokova, izgrađenih u posljednjih pedesetak godina.
Zadatak je istražiti kako unutar jasnih funkcionalnih zahtjeva i pravila definirati i artikulirati prostore koji istovremeno mogu biti racionalni i nekonvencionalni, ordinarni i uzbudljivi, ekonomični i poticajni. Na taj način izlazimo izvan okvira jednodimenzionalnih i rigidnih funkcionalnih režima. Projektom se istražuju i utjecaji specifičnog karaktera konteksta ,u prostornom i sociološkom aspektu, na mogući izbor arhitektonske tipologije kao i na artikuliranje prostora i sadržaja koje škola može ponuditi lokalnoj zajednici. Vrlo je važno istražiti utjecaj škole u redefiniranju i uravnoteženju zatečenog urbanog konteksta.
