Osnovna škola Keglić, Zagreb / pohvala kolegija
Autorica: Ana MendicaMentor: Tonči ŽarnićAkademska godina: 2020.
Katedra za arhitektonsko projektiranjeKabinet za zgrade društvenog standardaStudio 3 - Arhitektura
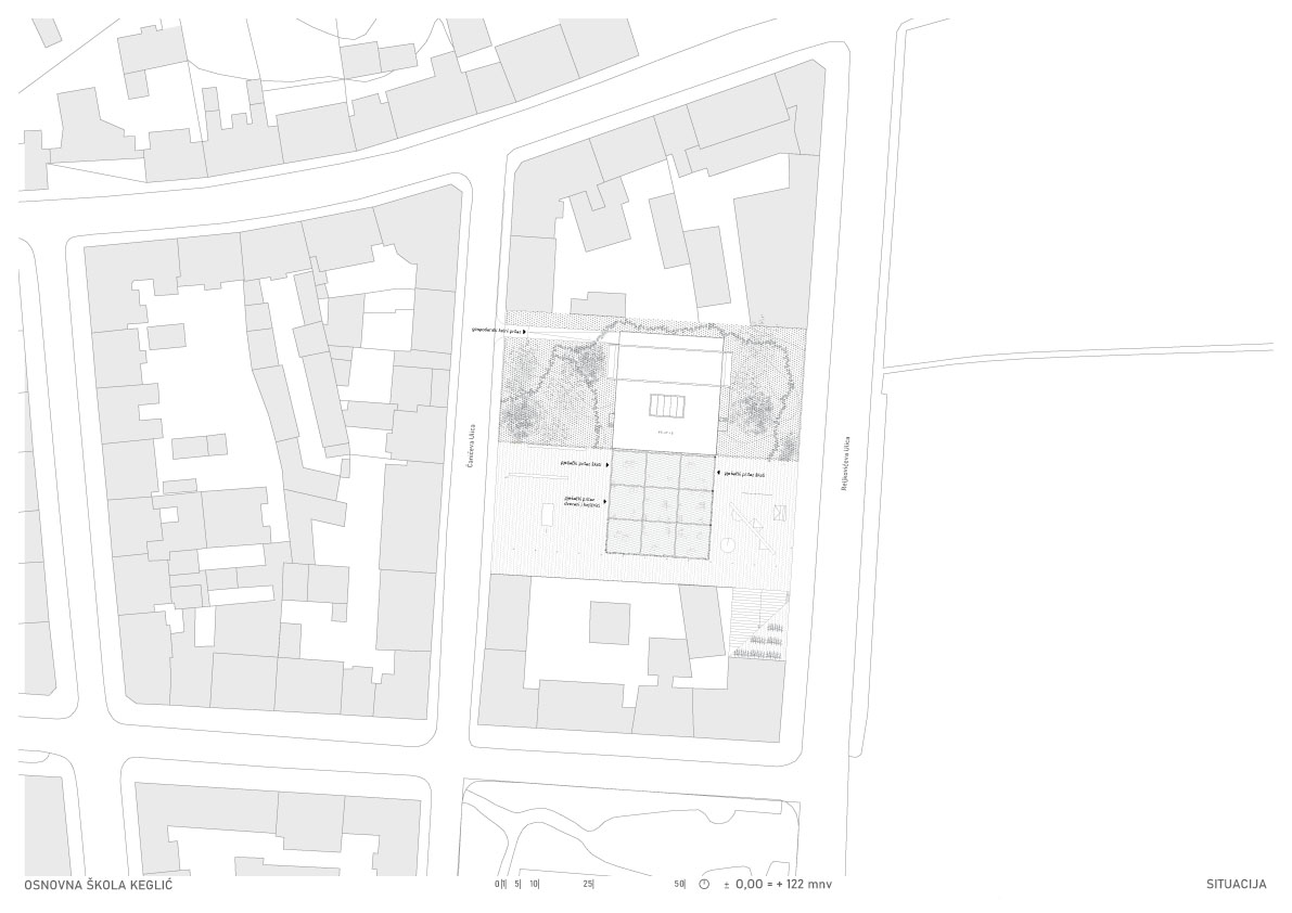
Novoplanirana školska zgrada smještena je na zapadnom rubu Donjega Grada uz Trg Franje Tuđmana. Na parceli se trenutno nalazi bivša tvornica Kamensko predviđena za rušenje. Objekt škole ne interpolira se u ulični niz, već se interpretira kao slobodnostojeći. Usred pretežno izgrađene blokovske strukture i pored pretežno zelenog Trga, nastaje dvojni urbani prostor. Dio parcele je šuma, a dio grad, te takva artikulacija reprezentira suživot prirode s izgrađenim.
U oblikovanju zgrade škole, osjeća se dvojnost, bez hijerarhije. Sastoji se od dva volumena, kao dva blizanca, jedan zatvoreni i jedan otvoreni. Zgrada je postavljena inverzno, tako da se u 'gradskom' dijelu osjeća priroda, a u 'prirodnom' dijelu osjeća grad.
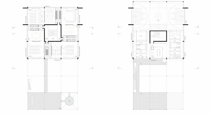
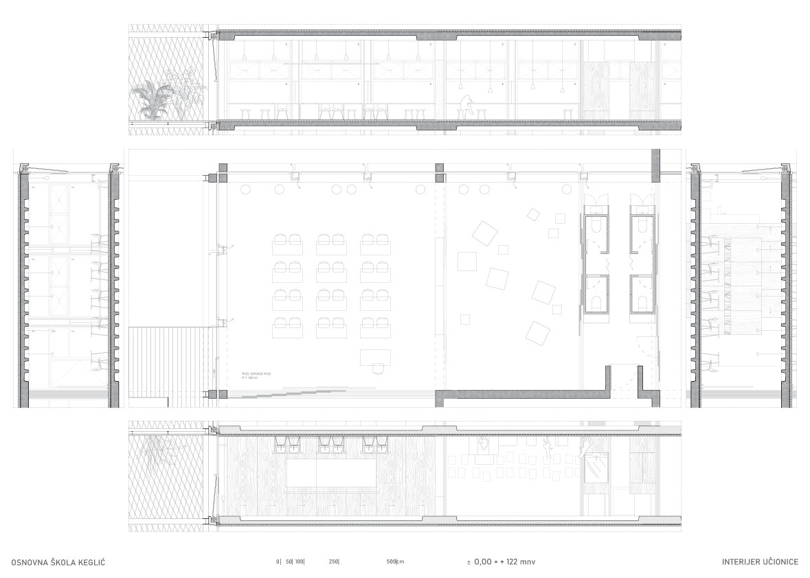
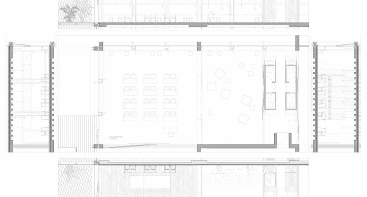
Višeetažna kvadratična prizma u sredini ima jezgru sa stubištem, nastaje prostorija samo za stubište koje postaje društveni prostor i mjesto susretanja. Oko stubišne jezgre projektiraju se cjeloviti prostori učenja, stvara se mogućnost novog modela pedagoškog rada. Edukativni prostor kata nastaje grupiranjem različitih prostora učenja zajedno sa servisnim otocima u jedinice i umnažanjem tih jedinica, tj. njihovom rotacijom oko jezgre. Nastavne cjeline se formiraju u odnosu na uzrast učenika.
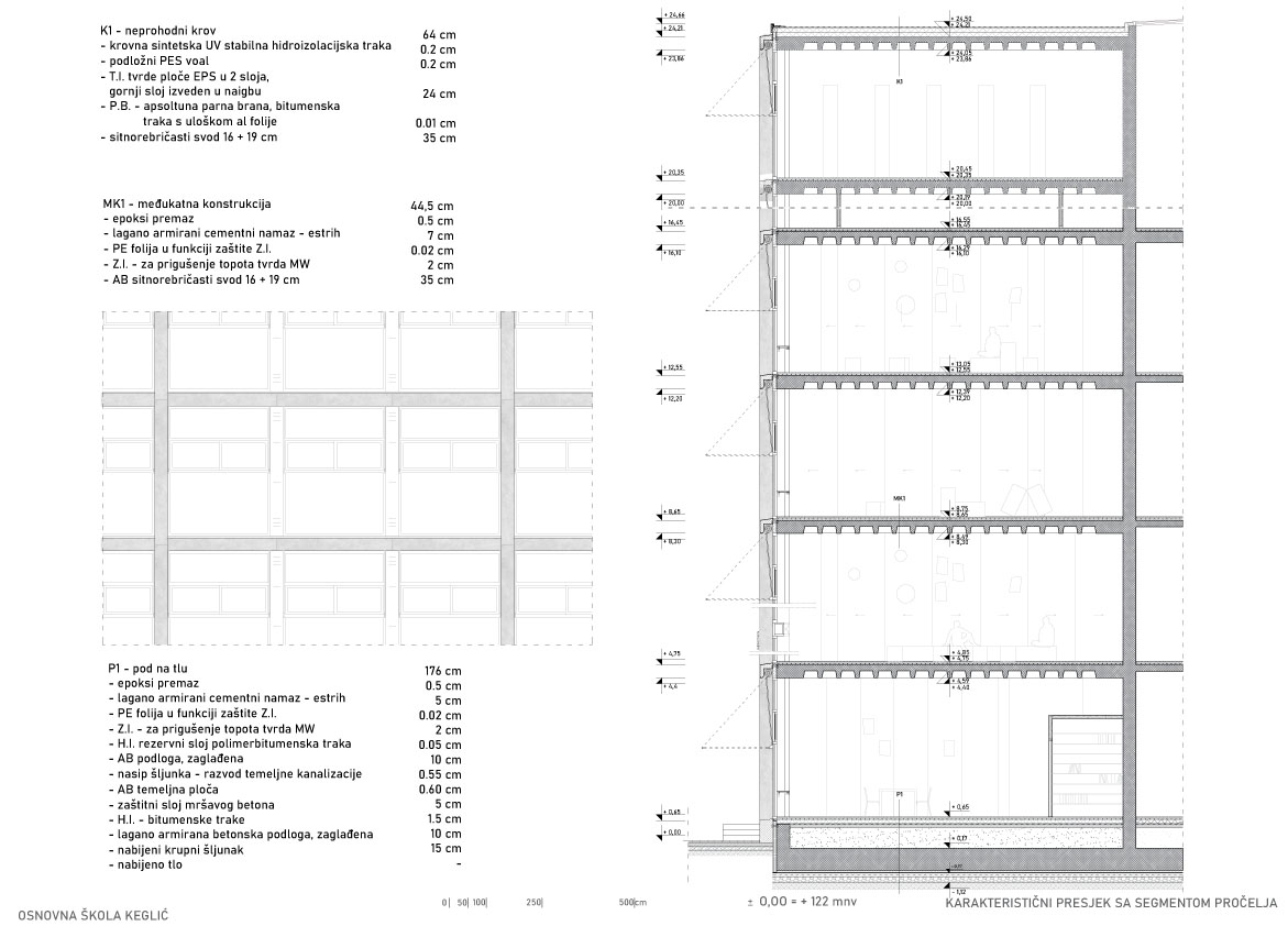
Cjelovitost prostora etaža omogućena je skeletnim sustavom, a ideja dvojnosti se materijalizira tako da je prostor za učenje u zatvorenom od masivne armirano betonske konstrukcije, a prostor za učenje na otvorenom od lagane čelične konstrukcije.
Betonski je dio zatvoren uglavnom staklom s ventilacijskim elementima, ponegdje limom ili profiliranim staklom. Horizontale i vertikale skeletnog rastera naglašene su prefabriciranim armirano-betonskim elementima. Čelični je dio, ondje gdje se nalaze platforme za boravak na otvorenom, osiguran mrežom, po kojoj se penju penjačice. Ozelenjeni vanjski dio škole, služi kao velika sjenica te održava ugodnu temperaturu ljeti, dok podjela pročelja unutrašnjeg dijela omogućava brzu ventilaciju pomoću kliznih prozora, te trajnu ventilaciju kroz ventilacijske elemente.
U oblikovanju zgrade škole, osjeća se dvojnost, bez hijerarhije. Sastoji se od dva volumena, kao dva blizanca, jedan zatvoreni i jedan otvoreni. Zgrada je postavljena inverzno, tako da se u 'gradskom' dijelu osjeća priroda, a u 'prirodnom' dijelu osjeća grad.
Višeetažna kvadratična prizma u sredini ima jezgru sa stubištem, nastaje prostorija samo za stubište koje postaje društveni prostor i mjesto susretanja. Oko stubišne jezgre projektiraju se cjeloviti prostori učenja, stvara se mogućnost novog modela pedagoškog rada. Edukativni prostor kata nastaje grupiranjem različitih prostora učenja zajedno sa servisnim otocima u jedinice i umnažanjem tih jedinica, tj. njihovom rotacijom oko jezgre. Nastavne cjeline se formiraju u odnosu na uzrast učenika.
Cjelovitost prostora etaža omogućena je skeletnim sustavom, a ideja dvojnosti se materijalizira tako da je prostor za učenje u zatvorenom od masivne armirano betonske konstrukcije, a prostor za učenje na otvorenom od lagane čelične konstrukcije.
Betonski je dio zatvoren uglavnom staklom s ventilacijskim elementima, ponegdje limom ili profiliranim staklom. Horizontale i vertikale skeletnog rastera naglašene su prefabriciranim armirano-betonskim elementima. Čelični je dio, ondje gdje se nalaze platforme za boravak na otvorenom, osiguran mrežom, po kojoj se penju penjačice. Ozelenjeni vanjski dio škole, služi kao velika sjenica te održava ugodnu temperaturu ljeti, dok podjela pročelja unutrašnjeg dijela omogućava brzu ventilaciju pomoću kliznih prozora, te trajnu ventilaciju kroz ventilacijske elemente.
