Osnovna škola Strmec, Sveta Nedelja / pohvala kolegija
Autorica: Petra DragoševićMentor: Petar MiškovićAkademska godina: 2019.
Katedra za arhitektonsko projektiranjeKabinet za zgrade društvenog standardaStudio 3 - Arhitektura
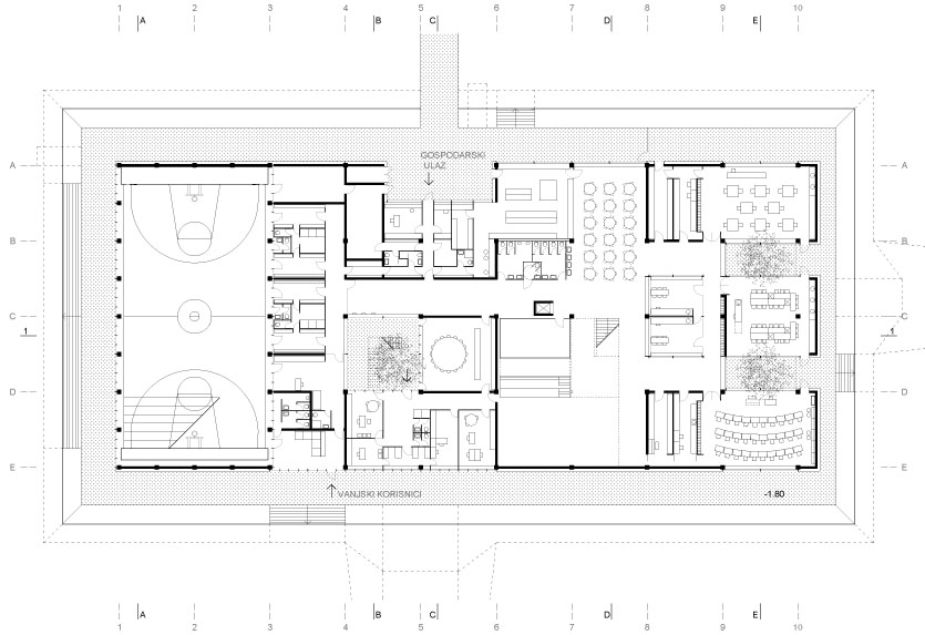
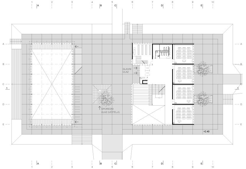
Zgrada osnovne škole na gradskoj periferiji smješta se gotovo u središte pre/velike parcele bez
posebnih obilježja. Na mjestu škole teren se upušta, u njega se utiskuju suterenski sadržaji, a
školski parter se podiže na 80x40 m veliku "lebdeću" platformu. Iz platforme izrasta
transparentni volumen škole (prostori učionica razredne i predmetne nastave) s jedne i volumen
sportske dvorane (s krovnim igralištem) s druge strane. Među njima se nalazi školski trg.
Platformi i suterenu pristupa se dugim blagim rampama. Pristupi dijele parcelu škole na
tematske kvadrante.
posebnih obilježja. Na mjestu škole teren se upušta, u njega se utiskuju suterenski sadržaji, a
školski parter se podiže na 80x40 m veliku "lebdeću" platformu. Iz platforme izrasta
transparentni volumen škole (prostori učionica razredne i predmetne nastave) s jedne i volumen
sportske dvorane (s krovnim igralištem) s druge strane. Među njima se nalazi školski trg.
Platformi i suterenu pristupa se dugim blagim rampama. Pristupi dijele parcelu škole na
tematske kvadrante.
