Osnovna škola Jastrebarsko / pohvala kolegija
Autor: Luka IlićMentor: Petar MiškovićAkademska godina: 2015.
Katedra za arhitektonsko projektiranjeKabinet za zgrade društvenog standardaStudio 3 - Arhitektura
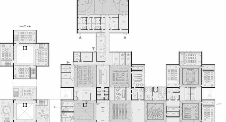
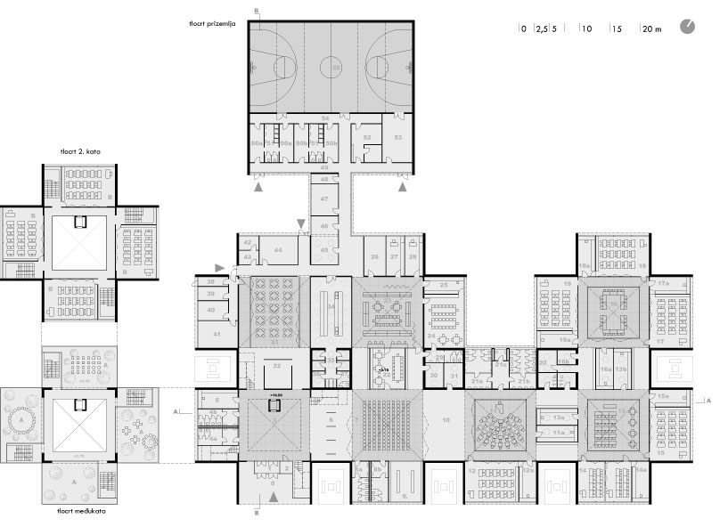
Osnovni modul/cluster, tlocrtno grčki križ, okuplja četiri manja lateralna prostora (standardne
učionice i kabineti) oko većeg i višeg centralnog zajedničkog prostora (društveni prostori,
specijalizirane učionice). Modul se umnaža po horizontali – tvoreći tepih (mat) i po vertikali –
tvoreći razgranati toranj. Svi su sadržaji škole sadržani u slijedu većih primarnih introvertiranih
prostora, sekundarnih ekstrovertiranih te manjih tercijarnih vanjskih međuprostora ili unutrašnjih
pomoćnih prostora.
Dosljedna interpretacija logike projekta prepoznaje se iznutra – u nastavnim ambijentima, u
oblikovanju konstruktivnih elemenata i opne te izvana – u prepoznatljivoj silueti školske zgrade
učionice i kabineti) oko većeg i višeg centralnog zajedničkog prostora (društveni prostori,
specijalizirane učionice). Modul se umnaža po horizontali – tvoreći tepih (mat) i po vertikali –
tvoreći razgranati toranj. Svi su sadržaji škole sadržani u slijedu većih primarnih introvertiranih
prostora, sekundarnih ekstrovertiranih te manjih tercijarnih vanjskih međuprostora ili unutrašnjih
pomoćnih prostora.
Dosljedna interpretacija logike projekta prepoznaje se iznutra – u nastavnim ambijentima, u
oblikovanju konstruktivnih elemenata i opne te izvana – u prepoznatljivoj silueti školske zgrade
