Kukuljica za astronoma
Autori: Helena Bajsić, Dora Bogut, Matija PogorilićMentorica: Sonja TadejAkademska godina: 2022.
Katedra za arhitektonsko projektiranjeKabinet za interijerRadionica interijera
Koncept se zasniva na korisniku pojedincu, odvojenom od civilizacije, samom između močvare i neba. Pojedinac pogledom stremi u vis, gdje nema granice - gleda i promatra, traži odgovore na velika pitanja.
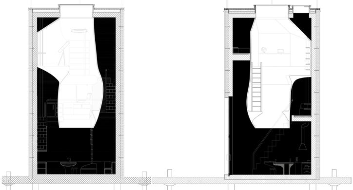
U prizmi dimenzija 5x5x10 m nastanila se kukuljica. Kukuljica odvaja od okoline, služi kao sklonište i mjesto bivanja, mjesto transformacije. U kukuljici pojedinac - astronom obavlja sve radnje koje ga čine astronomom. Izvan kukuljice, u nastalom negativu prizme, smješteni su služeći prostori. To su utilitarne platforme neophodne za radnje koje astronoma čine čovjekom. Izražena je razdioba prostora - prostor u skladu s čovjekovim interesima i profesijom te prostor koji zadovoljava osnovne potrebe čovjeka kao ljudskog bića.
Na donjoj je plohi oblikovana topografija koja tvori elementaran namještaj integriran u jedinstveno tijelo. Svi elementi izvan kukuljice izrastaju iz prizme, organično teku praznim volumenom i stvaraju elemente koje čovjek koristi za stanovanje.
U prizmi dimenzija 5x5x10 m nastanila se kukuljica. Kukuljica odvaja od okoline, služi kao sklonište i mjesto bivanja, mjesto transformacije. U kukuljici pojedinac - astronom obavlja sve radnje koje ga čine astronomom. Izvan kukuljice, u nastalom negativu prizme, smješteni su služeći prostori. To su utilitarne platforme neophodne za radnje koje astronoma čine čovjekom. Izražena je razdioba prostora - prostor u skladu s čovjekovim interesima i profesijom te prostor koji zadovoljava osnovne potrebe čovjeka kao ljudskog bića.
Na donjoj je plohi oblikovana topografija koja tvori elementaran namještaj integriran u jedinstveno tijelo. Svi elementi izvan kukuljice izrastaju iz prizme, organično teku praznim volumenom i stvaraju elemente koje čovjek koristi za stanovanje.
