Stan budućnosti
Autori: Andro Mihalac, Fran MikolićMentorica: Sonja TadejAkademska godina: 2019.
Katedra za arhitektonsko projektiranjeKabinet za interijerRadionica interijera
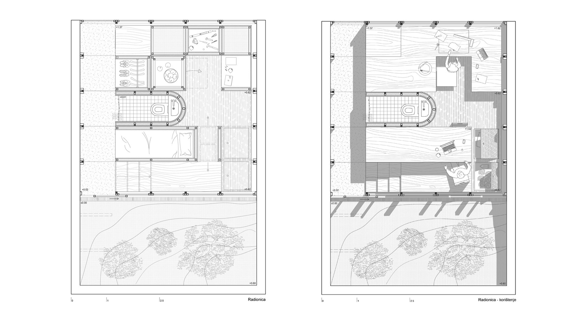
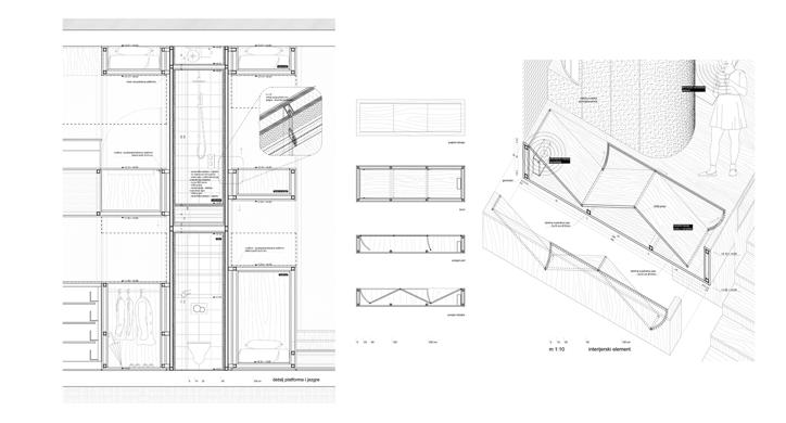
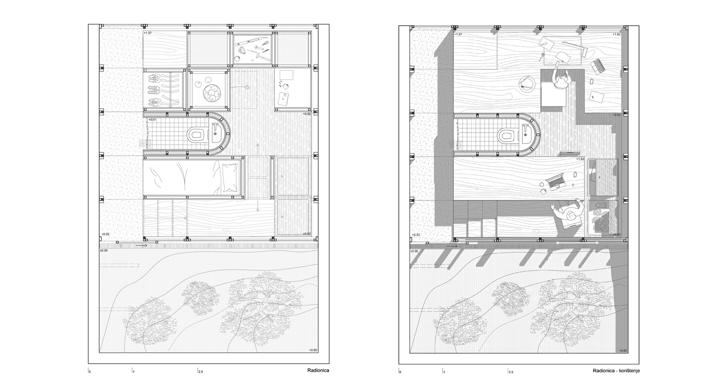
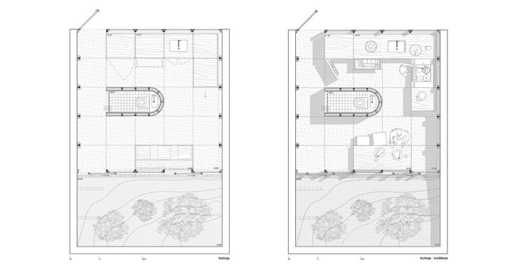
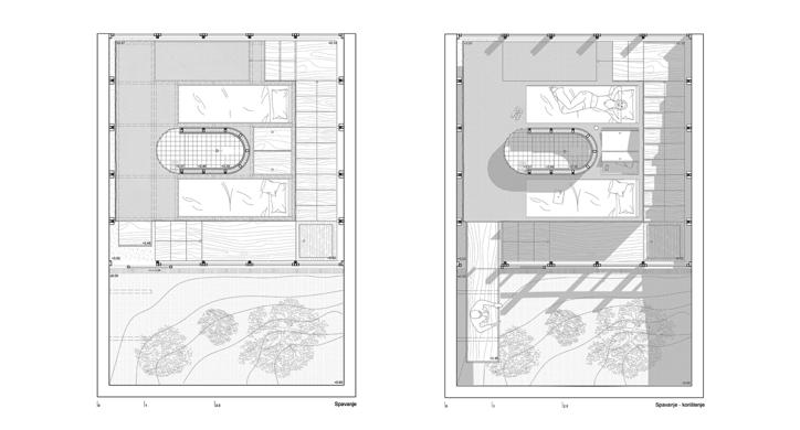
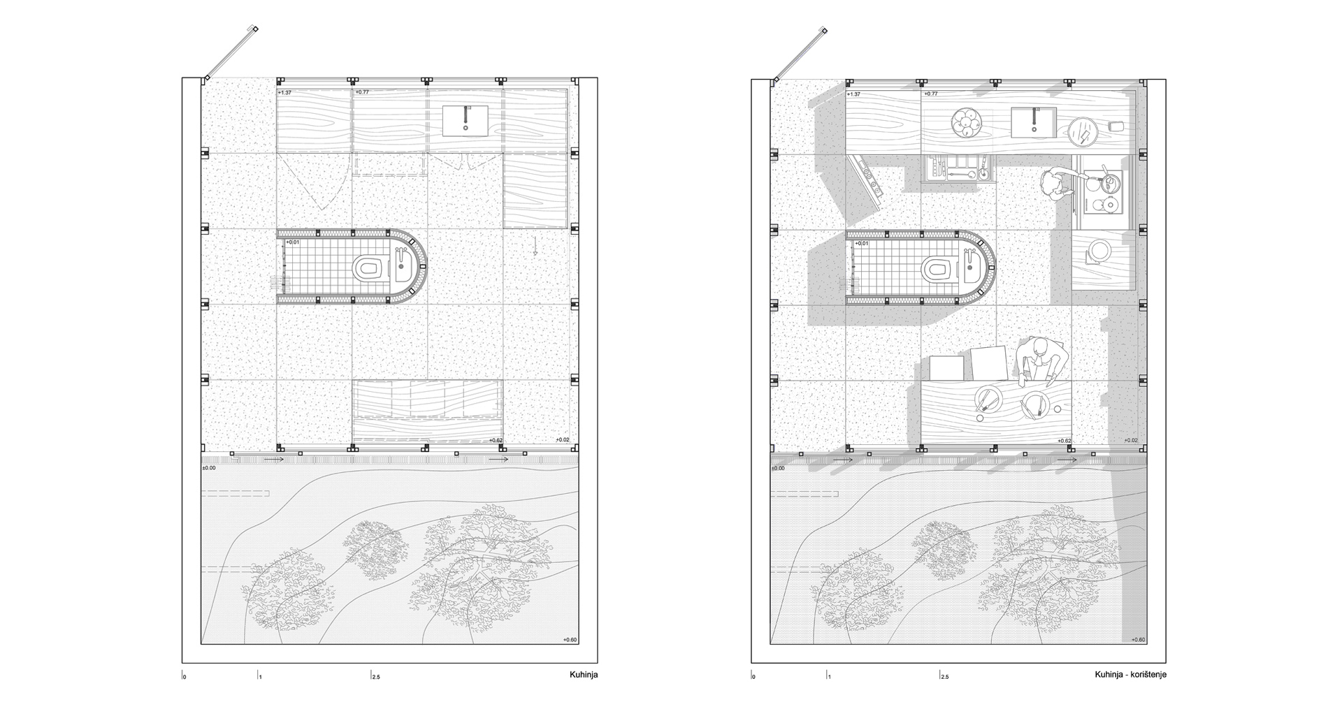
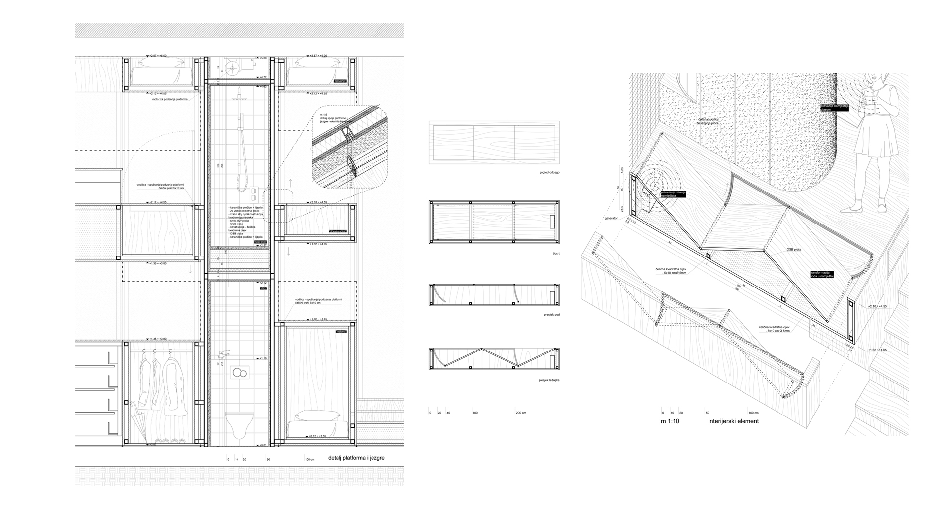
U zadanu prostornu jedinicu forme AB kvadra definiranih otvora i unutarnjih dimenzija 5 x 5 x 7,5 m smješten je stan budućnosti. Rješenjem je predloženo umetanje četiriju platformi - svaka sa svojom namjenom, a njihovo korištenje ovisi o dnevnom ritmu stanara. Prostor kontrolira korisnik i njegovom odlukom platforme se spuštaju/dižu prateći time raspored njegovih aktivnosti. Prostorna ograničenja iskorištena su za istraživanje krajnjih mogućnosti racionalizacije prostora i komprimiranja funkcija. U prostoru se nalaze fiksni elementi: oprema kuhinje, sanitarija i prostor vrta te pomični elementi: oprema radionice, dnevnog boravka i spavanja. Platforme svoj položaj mijenjaju krećući se po okomitoj osi sastavljenoj od stupova i vodilica unutar kojih je smješten motor koji se aktivira glasom. Završne obloge podnih ploha variraju, konstrukcija umetnuta u zadanu AB opnu je čelična.
