Frizerski salon i galerija La Coulisse, Zagreb
Autori: Lovorka Prpić, Miljenko BernfestSuradnik: Siniša Majkus (skulptura)
Arhitektonski ured: Zajednički projektantski ured Lovorka Prpić i Miljenko Bernfest / bxl studioStatus: izvedenoNamjena: frizerski salon, galerijaBruto površina: 65 m²Projektirano: 2001Izvedeno: 2002Autor(i) fotografija: Miljenko Bernfest, Damir Fabijanić
Marina Viculin: Prostor za doživljaj, “Čovjek i prostor”, br. 572-573 (1/2),Zagreb, 2002.
Između neba i zemlje. Isturenost aneksa i njegova ograničenost. Uski prilaz usponom i zaokruženost interijera. Zatvoreni izdvojeni svijet poput dječje kućice na stablu.
“La Coulisse” je prodor u drugi svijet. Ima onu začudnost kazališnog mjesta gdje su dimenzije drugačije. Prolazimo kroz rupu, i nakon uskog procjepa pred nama se otvara carstvo svjetlosti. No sada smo u loži. Na drugome mjestu odakle je svijet vidljiv kao na dlanu, ali smo mi njemu dostupni samo kao sjena. Zanosno je postati slutnja moguće slatkoće i ugode.
Dvoje arhitekata - Lovorka Prpić i Miljenko Bernfest - upustili su se u neravnopravnu borbu s neugodnim uskim dvoetažnim - a ipak preniskim - prostorom. (Ne mogu se oteti dojmu da nas svi ti centri nakon raskošnih atrija i pokretnih senzacija međuetažnih prometala vrlo precizno informiraju o cijeni kvadrata prodajnog prostora.)
Njih su dvoje svojim rješenjem uspjeli nadvladati prostorno oganičenje. Pretvorili su nedostatke u prednosti. Oblikovali su mjesto koje se ne uklapa u predrasude. Frizerski salon u koji želimo ući, i prostor za doživljaj koji želimo da traje.
Iza velike staklene stijene što gleda na hodnik ne stoji ni hauba ni perika. Ne stoji ni slika lijepe žene ali ni nervozna mušterija. Tu znakovito lebdi teška žičana skulptura Siniše Majkusa.
E pa to je točno to, kontradikcija u startu. Staviti Majkusa u frizerski salon, dovoljan je razlog – barem za mene - da se tamo ode po frizuru.
Laganim čeličnim stubama popet ćemo se tada na mjesto radnje.
Arhitekti iz BXL Studija Prpić i Bernfest dali su ovom salonu za “tihi obrt” potpuni identitet. Njihovo je čak i ime “La Coulisse” koje svoj smisao i objašnjenje nalazi u klizećim elementima interijera.
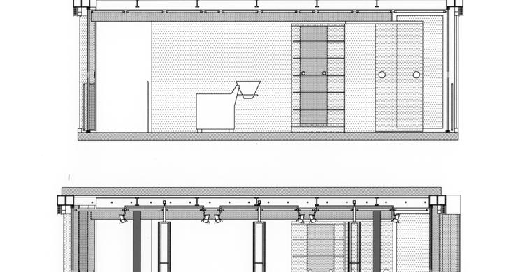
Gornja etaža prostora frizerskog salona je niska – dotiče propisani minimum od 250 centimetara. Da bi prostoru povećali prozračnost i dodali utisak visine, zamijenili su uobičajene spuštene stropove tkanim (i naravno providnim) stropom od žičanog pletiva. Konstruirali su tri dvostruka (3 x 2) radna mjesta, ovješena o šine na stropu, koja klizanjem mogu promijeniti mjesto - dakle i preoblikovati interijer frizerskog salona. Rulanjem radnih mjesta pomiču se ogledala skupa s pripadajućim reflektorima, i otvaraju se novi slojevi prostora.
Naizgled je očito da se klizanje pojavilo kao motiv iz potrebe, iz nužnosti vrlo malog prostora. (Trebalo je smjestiti šest radnih mjesta u prostor omeđen s čak tri staklena zida.) No, kao i kod svakog dobrog rada, svrsishodna rješenja vrlo brzo nadrastu sama sebe.
Pomičnost elemenata – nestalnost rasporeda – nestalnost vizura – pa time i skliska razvedenost interijera - pojavljuje se kao motiv već u dodiru dva različita rastera. Ortogonalni raster glavne zgrade u aneksu je izmaknut. Kao da je nepažnjom skliznuo iz jednostavnog sistema adicije pravokutnih jedinica. Dok sjedite nagnute glave gledajući svoj odraz u ogledalu i s tuđim dodirom u kosi, osjećate otvorenost ovog plitkog prostora. Vidite njegovu fleksibilnost i dobru ugođenost detalja koji u bezbrojnim kombinacijama zvone pravim tonom. Osjećate to tijelom i tek opranim mokrim potiljkom.
Riječ kulisa potiče ne od zakrivanja istine, već od pokretljivosti i mogućnosti sklizanja po sceni. Zato u našem frizerskom salonu Bernfest i Prpić postavljaju - osim klizećih elemenata u centru prostora - i klizne stijene od posebne vrste pjeskarenog stakla na njegovoj opni.
Aneks je danju izložen suncu a noću - pogledima. Tri paralelne putanje pjeskarenog zaslona na staklenoj stijeni stvaraju fine sjenovite uglove ili ujednačeno difuzno osvjetljenje cijelog prostora. Pomičnost u tri sloja artikulira povezivanje s vanjskim svijetom i tajnovitost kazališta sjena.
Uspostavljen je egzibicionistički odnos s eksterijerom. Poput velova i prozirnih haljina, ova su sjenila tu da bi privukla, a ne spriječila pogled. A kazalište sjena živi svojim životom, nestalno i neposredno poput najboljih umjetničkih komada.
Između neba i zemlje. Isturenost aneksa i njegova ograničenost. Uski prilaz usponom i zaokruženost interijera. Zatvoreni izdvojeni svijet poput dječje kućice na stablu.
“La Coulisse” je prodor u drugi svijet. Ima onu začudnost kazališnog mjesta gdje su dimenzije drugačije. Prolazimo kroz rupu, i nakon uskog procjepa pred nama se otvara carstvo svjetlosti. No sada smo u loži. Na drugome mjestu odakle je svijet vidljiv kao na dlanu, ali smo mi njemu dostupni samo kao sjena. Zanosno je postati slutnja moguće slatkoće i ugode.
Dvoje arhitekata - Lovorka Prpić i Miljenko Bernfest - upustili su se u neravnopravnu borbu s neugodnim uskim dvoetažnim - a ipak preniskim - prostorom. (Ne mogu se oteti dojmu da nas svi ti centri nakon raskošnih atrija i pokretnih senzacija međuetažnih prometala vrlo precizno informiraju o cijeni kvadrata prodajnog prostora.)
Njih su dvoje svojim rješenjem uspjeli nadvladati prostorno oganičenje. Pretvorili su nedostatke u prednosti. Oblikovali su mjesto koje se ne uklapa u predrasude. Frizerski salon u koji želimo ući, i prostor za doživljaj koji želimo da traje.
Iza velike staklene stijene što gleda na hodnik ne stoji ni hauba ni perika. Ne stoji ni slika lijepe žene ali ni nervozna mušterija. Tu znakovito lebdi teška žičana skulptura Siniše Majkusa.
E pa to je točno to, kontradikcija u startu. Staviti Majkusa u frizerski salon, dovoljan je razlog – barem za mene - da se tamo ode po frizuru.
Laganim čeličnim stubama popet ćemo se tada na mjesto radnje.
Arhitekti iz BXL Studija Prpić i Bernfest dali su ovom salonu za “tihi obrt” potpuni identitet. Njihovo je čak i ime “La Coulisse” koje svoj smisao i objašnjenje nalazi u klizećim elementima interijera.
Gornja etaža prostora frizerskog salona je niska – dotiče propisani minimum od 250 centimetara. Da bi prostoru povećali prozračnost i dodali utisak visine, zamijenili su uobičajene spuštene stropove tkanim (i naravno providnim) stropom od žičanog pletiva. Konstruirali su tri dvostruka (3 x 2) radna mjesta, ovješena o šine na stropu, koja klizanjem mogu promijeniti mjesto - dakle i preoblikovati interijer frizerskog salona. Rulanjem radnih mjesta pomiču se ogledala skupa s pripadajućim reflektorima, i otvaraju se novi slojevi prostora.
Naizgled je očito da se klizanje pojavilo kao motiv iz potrebe, iz nužnosti vrlo malog prostora. (Trebalo je smjestiti šest radnih mjesta u prostor omeđen s čak tri staklena zida.) No, kao i kod svakog dobrog rada, svrsishodna rješenja vrlo brzo nadrastu sama sebe.
Pomičnost elemenata – nestalnost rasporeda – nestalnost vizura – pa time i skliska razvedenost interijera - pojavljuje se kao motiv već u dodiru dva različita rastera. Ortogonalni raster glavne zgrade u aneksu je izmaknut. Kao da je nepažnjom skliznuo iz jednostavnog sistema adicije pravokutnih jedinica. Dok sjedite nagnute glave gledajući svoj odraz u ogledalu i s tuđim dodirom u kosi, osjećate otvorenost ovog plitkog prostora. Vidite njegovu fleksibilnost i dobru ugođenost detalja koji u bezbrojnim kombinacijama zvone pravim tonom. Osjećate to tijelom i tek opranim mokrim potiljkom.
Riječ kulisa potiče ne od zakrivanja istine, već od pokretljivosti i mogućnosti sklizanja po sceni. Zato u našem frizerskom salonu Bernfest i Prpić postavljaju - osim klizećih elemenata u centru prostora - i klizne stijene od posebne vrste pjeskarenog stakla na njegovoj opni.
Aneks je danju izložen suncu a noću - pogledima. Tri paralelne putanje pjeskarenog zaslona na staklenoj stijeni stvaraju fine sjenovite uglove ili ujednačeno difuzno osvjetljenje cijelog prostora. Pomičnost u tri sloja artikulira povezivanje s vanjskim svijetom i tajnovitost kazališta sjena.
Uspostavljen je egzibicionistički odnos s eksterijerom. Poput velova i prozirnih haljina, ova su sjenila tu da bi privukla, a ne spriječila pogled. A kazalište sjena živi svojim životom, nestalno i neposredno poput najboljih umjetničkih komada.
