Poslovna zgrada u Središću
Autorica: Viktorija JagodićMentori: Miroslav Geng, Tin Sven Franić, Miljenko Haiman, Ivan Mlinar, Lovorka Prpić, Ivan Cetinić, Tihomir Rengel, Darko Užarević
Katedra za arhitektonsko projektiranjeKabinet za javne zgradeStudio 4 - Arhitektura
Zadaća završnoga rada je u simulaciji zaokruženoga procesa arhitektonskoga projektiranja s kakvim će se studenti susretati u budućem kompetitivnom okruženju arhitektonskog poslovanja. Težište rada je u vještini snalaženja u projektantskom procesu i regulativnom okruženju, s potpunim poznavanjem svih produkcijskih segmenata projekta. Teorijsko-filozofske izvedbe postavki projekta su poželjni, no fakultativni su za prvostupanjsku razinu edukacije.
Oslanjajući se na urbanistički pristup, s analitičkim pregledom svih nadležnih planova i dokumenata zadanoga prostora, rezultati se predočuju na razini situacijskih rješenja i pratećih urbanističkih priloga dokumentacije za lokacijsku dozvolu. Simultano, arhitektonsko- misaonim procesom, student dokazuje umijeće koncipiranja prostorne organizacije i nastavno, njezine materijalizacije u traženju konstrukcijsko-izvedbene logike nastajućeg arhitektonskog korpusa. Student pokazuje vladanje principima sustava instalacijskih mreža i uređaja. U konačnoj fazi pojavnosti projekta, a o čemu ovisi čitkost prenošenja arhitektonskih značenja, zgradu treba domisliti s osnovnim arhitektonskom detaljima, definicijama ključnih materijala i obrada, opisima, grafičkim prilozima i dijelovima troškovničkih odredbi.
Završni rad je zajednički nastavni pothvat triju katedri: urbanističke, projektantske i arhitektonskih konstrukcija.
Projektantsko geslo jest iskonsko A=K, dakle nerazdvojnost arhitekture i konstrukcije.
Cordemoy 1706. — Konstrukcija je bit arhitekture, arhitektura je bit konstrukcije.
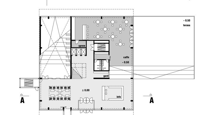
Zadatak je projektirati multifunkcionalnu poslovnu zgradu na lokaciji Središće u odabranoj insuli koja je dio neizgrađenog urbanog tkiva.
Širi urbanistički zadatak smješten je unutar većeg obuhvata – insule neizgrađenog urbanog tkiva Središća. Sa sjeverne, istočne i južne strane omeđen je novoformiranim koridorom ceste, a zapadno od njega je površina planirana kao javni gradski park.
Arhitektonski zadatak nalazi se na istočnom dijelu navedene insule, površine cca 6350 m2, koje se mogu podijeliti na dvije parcele (sjeverna i južna). Projekt multifunkcionalne poslovne građevine s komplementarnim javnim sadržajima.
Oslanjajući se na urbanistički pristup, s analitičkim pregledom svih nadležnih planova i dokumenata zadanoga prostora, rezultati se predočuju na razini situacijskih rješenja i pratećih urbanističkih priloga dokumentacije za lokacijsku dozvolu. Simultano, arhitektonsko- misaonim procesom, student dokazuje umijeće koncipiranja prostorne organizacije i nastavno, njezine materijalizacije u traženju konstrukcijsko-izvedbene logike nastajućeg arhitektonskog korpusa. Student pokazuje vladanje principima sustava instalacijskih mreža i uređaja. U konačnoj fazi pojavnosti projekta, a o čemu ovisi čitkost prenošenja arhitektonskih značenja, zgradu treba domisliti s osnovnim arhitektonskom detaljima, definicijama ključnih materijala i obrada, opisima, grafičkim prilozima i dijelovima troškovničkih odredbi.
Završni rad je zajednički nastavni pothvat triju katedri: urbanističke, projektantske i arhitektonskih konstrukcija.
Projektantsko geslo jest iskonsko A=K, dakle nerazdvojnost arhitekture i konstrukcije.
Cordemoy 1706. — Konstrukcija je bit arhitekture, arhitektura je bit konstrukcije.
Zadatak je projektirati multifunkcionalnu poslovnu zgradu na lokaciji Središće u odabranoj insuli koja je dio neizgrađenog urbanog tkiva.
Širi urbanistički zadatak smješten je unutar većeg obuhvata – insule neizgrađenog urbanog tkiva Središća. Sa sjeverne, istočne i južne strane omeđen je novoformiranim koridorom ceste, a zapadno od njega je površina planirana kao javni gradski park.
Arhitektonski zadatak nalazi se na istočnom dijelu navedene insule, površine cca 6350 m2, koje se mogu podijeliti na dvije parcele (sjeverna i južna). Projekt multifunkcionalne poslovne građevine s komplementarnim javnim sadržajima.
