Centar za nove tehnologije s medijatekom
Autor: Franjo KovačevićMentorice: Vesna Mikić, Nika DželalijaAkademska godina: 2019.
Katedra za arhitektonsko projektiranjeKabinet za javne zgradeStudio 4 - Arhitektura
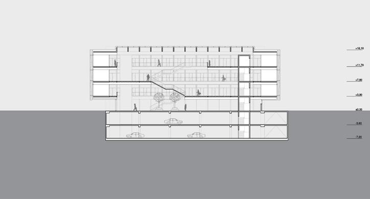
Osnova zgrade saćasta je struktura koja se pruža po obodu kuće. Pločama i zidovima koji čine vertikalnu matricu, saćasta struktura omogućuje izoliranost prema susjednim radnim jedinicama, a otvorenost prema dvjema nasuprotnim vizurama. Dvije vizure u međusobnoj su oprečnosti: jedna predstavlja 'vanjski grad' (Martinovka, sveučilišna os, zelena potkova, akcenti u prostoru, Medvednica) , a druga 'unutrašnji grad' sa trgovima, dvorištima i blokovima na kojima se odvija zajednički rad. Zgrada je zamišljena kao košnica sa strogo definiranim ćelijama po rubu i otvorenom unutrašnjošću. Takvom karakterizacijom prostora isključuje se mogućnost dijeljenja po etažama. Međukatne ploče ovješene su s krovne konstrukcije te su povezane preko zajedničkog centralnog prostora. Interpretacija urbanih elemenata događa se i u prizemlju zgrade gdje se drvored proteže paralelno sa sveučilišnom osi, kao da kuća sjedi nad proširenjem ulice.
