Centar za nove tehnologije s medijatekom
Autor: Iva Sladoljev-JolićMentorice: Vesna Mikić, Andrea ČekoAkademska godina: 2020.
Katedra za arhitektonsko projektiranjeKabinet za javne zgradeStudio 4 - Arhitektura
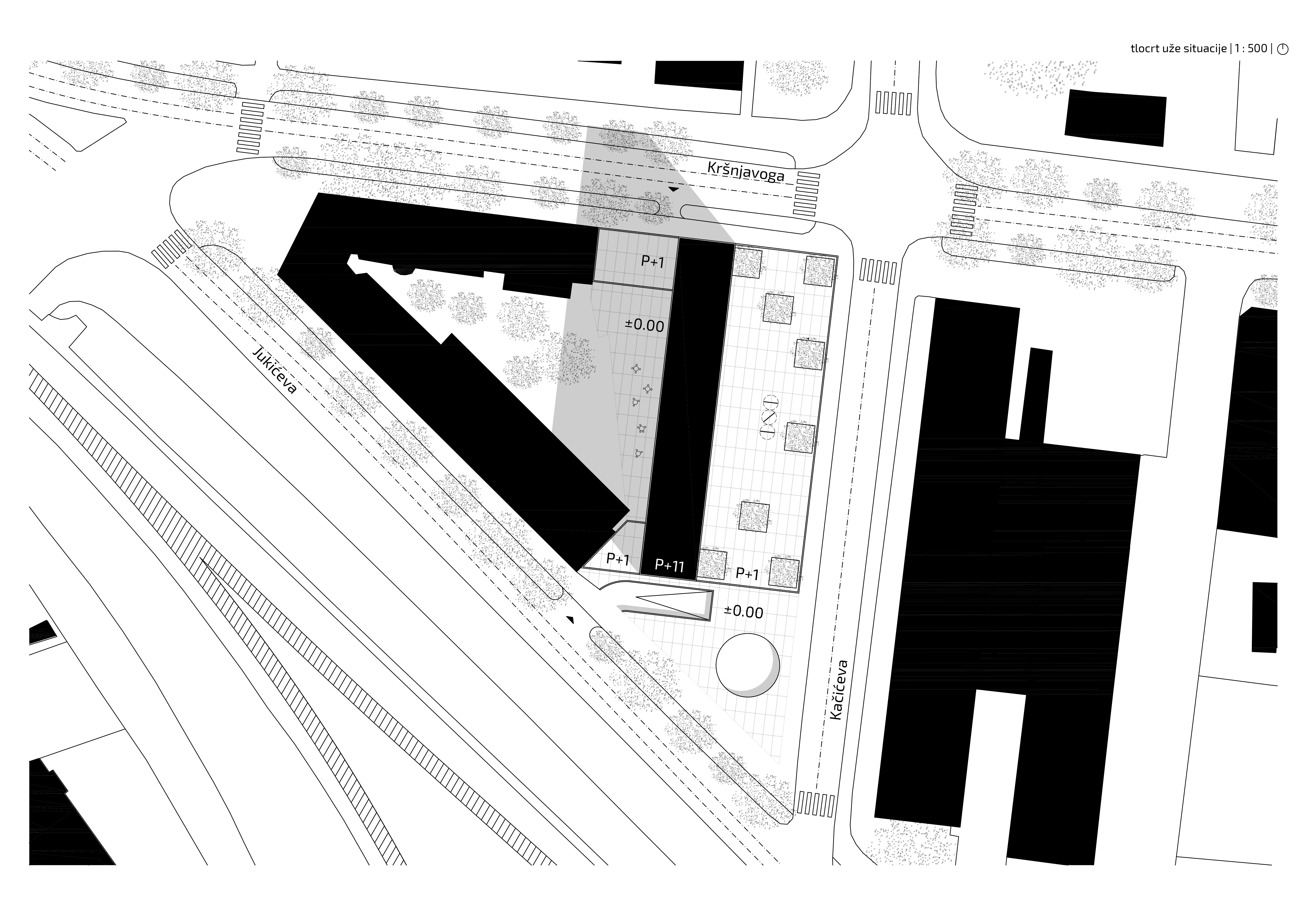
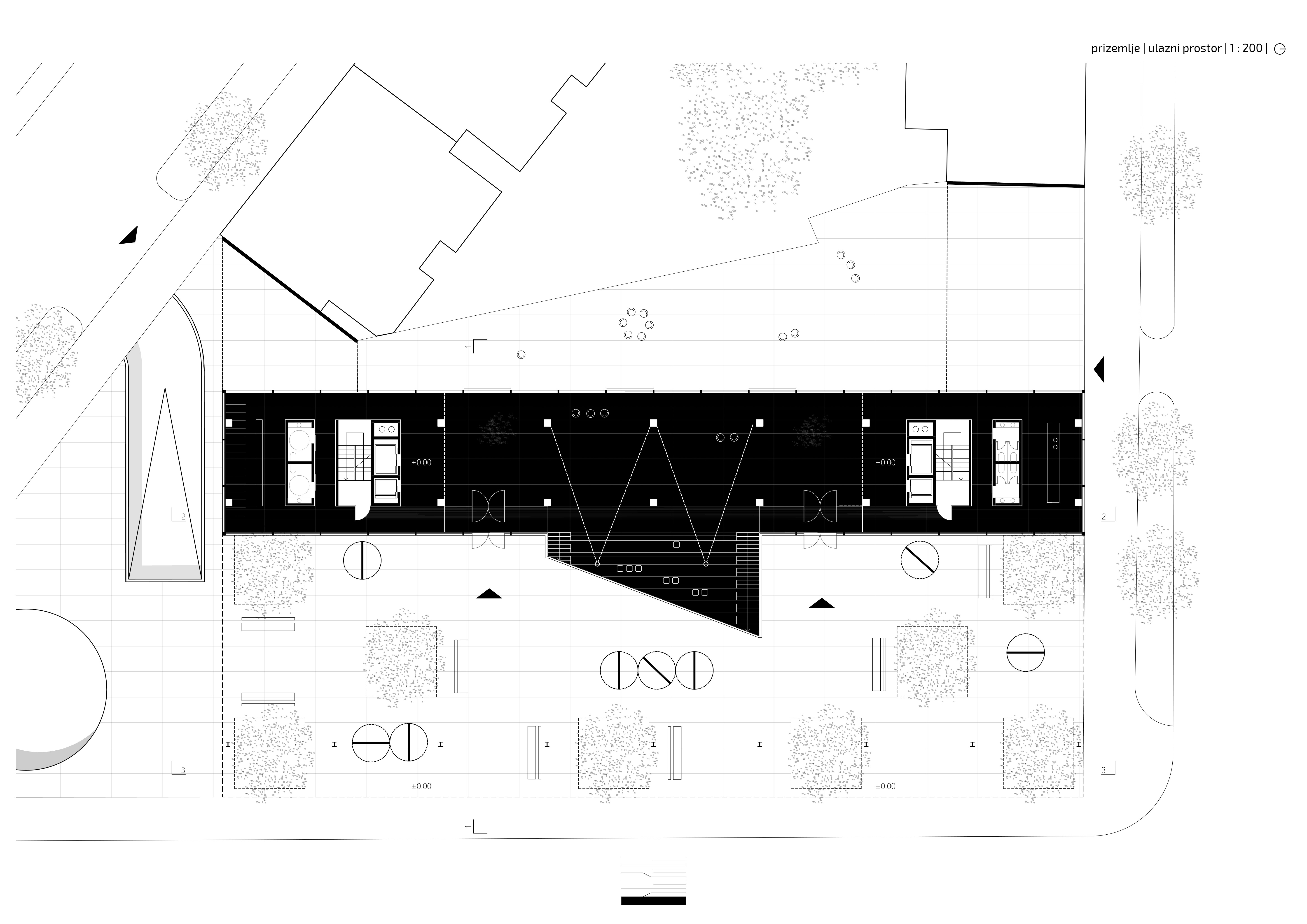
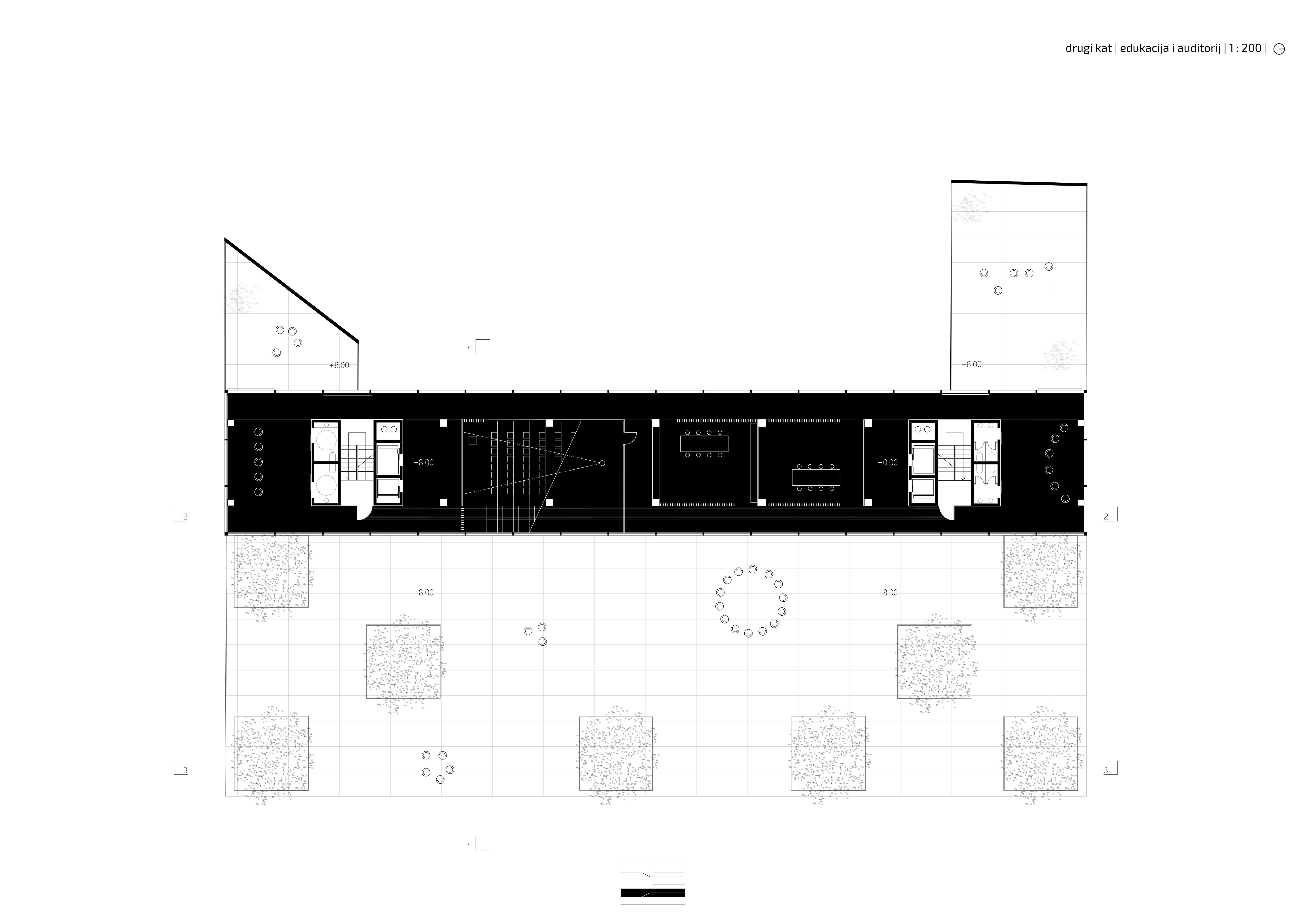
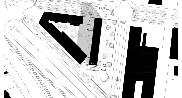
Centar za nove tehnologije s medijatekom organiziran je kroz dva ortogonalno postavljena volumena, koji svojom kompozicijom odgovaraju postojećoj izgradnji. Vertikalna lamela je postavljena kao reakcija na dominantne zgrade susjednih fakultetskih zgrada, dok horizontalni volumen predstavlja uzdignutu gradsku platformu koja u svoje tkivo prima nastavak drvoreda Kačićeve ulice. Ispod takve uzdignute platforme stvara se natkriveni pristupni trg sa snažnim ambijentom prodora svijetla i zelenila kroz atrije. Prozračnost i svjetlina vertikalne lamele ostvarena je malom širinom betonske zgrade sa obodno postavljenim koridorima i centralno postavljenim radnim jedinicama koje se zatvaraju po potrebi. Sjeverni i južni završetci svake etaže imaju ulogu interaktivnih punktova. Zgrada je po visini organizirana po funkcionalnim zonama – grupama etaža iste namjene za interne korisnike, dok je čelična horizontala prvog kata predviđena za grupni rad i vanjske korisnike. Horizontalni volumen probijajući kroz betonsku vertikalu, ima ulogu spone s ostatkom bloka.
