Poslovna zgrada: centar za nove tehnologije
Autor: Niko KlasnićMentori: Sonja Tadej, Krunoslav IvanišinAkademska godina: 2019.
Katedra za arhitektonsko projektiranjeKabinet za javne zgradeStudio 4 - Arhitektura
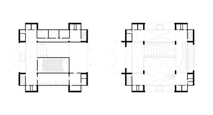
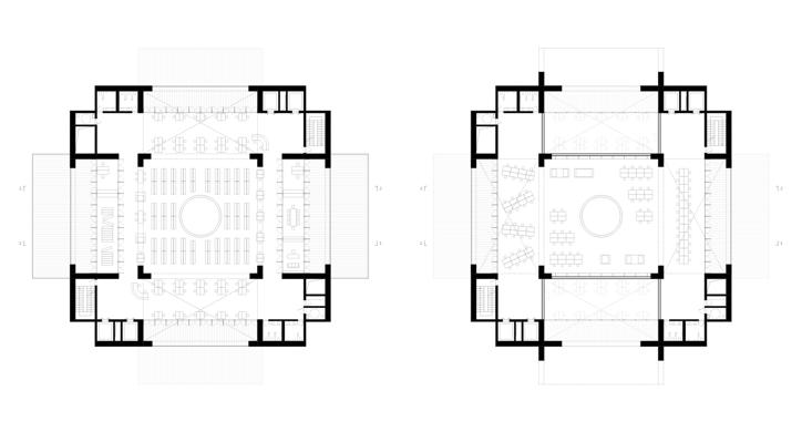
Projektni zadatak centra za nove tehnologije predviđa nekoliko funkcionalnih cjelina bitno različitih režima korištenja. Polazište prostornog rasporeda i oblikovanja proizlazi iz rastvaranja građevine na sve četiri strane ostvarujući maksimalni kontakt s vanjskim prostorom te povezivanje s parterom. Postizanje autonomije različitih uporabnih cjelina ostvaruje se vertikalnim nizanjem etaža razvijenih između četiri stupa unutar kojih su smješteni servisni sadržaji te komunikacije. Razvijanjem etaža između servisnih jezgri dobivaju se dvije prostorne cjeline – obodni te centralni prostori. Unutar obodnih prostora smještaju se mjesta za individualni rad, edukaciju, administraciju, specijalizirana spremišta i tehničke prostorije. Dok se unutar centralnih prostora nalazi tribina za zajednički boravak, veća i manja dvorana, rampe za kolni promet, površina za grupni rad, knjižnična građa te prostor laboratorija za grupni rad. Također, između četiri servisna stupa razvijaju se loggie te balkoni kao svojevrsni produžeci vanjskog boravka za svaku prostornu cjelinu prema kojoj je moguće potpuno rastvaranje i povezivanje s vanjskim prostorom. U sklopu centra na krovu je predviđen vrt za opuštanje i boravak na otvorenom s pripadajućim caffe barom. Konstruktivnim oblikovanjem ostvaruje se funkcionalna podjela prostornih cjelina bez upotrebe fizičkih pregrada, dok se izloženim natur betonom čitav sklop estetski i konstruktivno obuhvaća u jednu cjelinu. Zemlja od iskopa temelja i garaže iskorištava se u svrhu preoblikovanja terena parcele ostvarujući još dva dodatna ulaza sa sjevera i zapada.
