Trgovina kišobranima
Autorica: Nikolina PavlovićMentorica: Dina Vulin IlekovićAkademska godina: 2012.
Katedra za arhitektonsko projektiranjeKabinet za interijerRadionica interijera
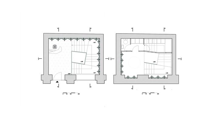
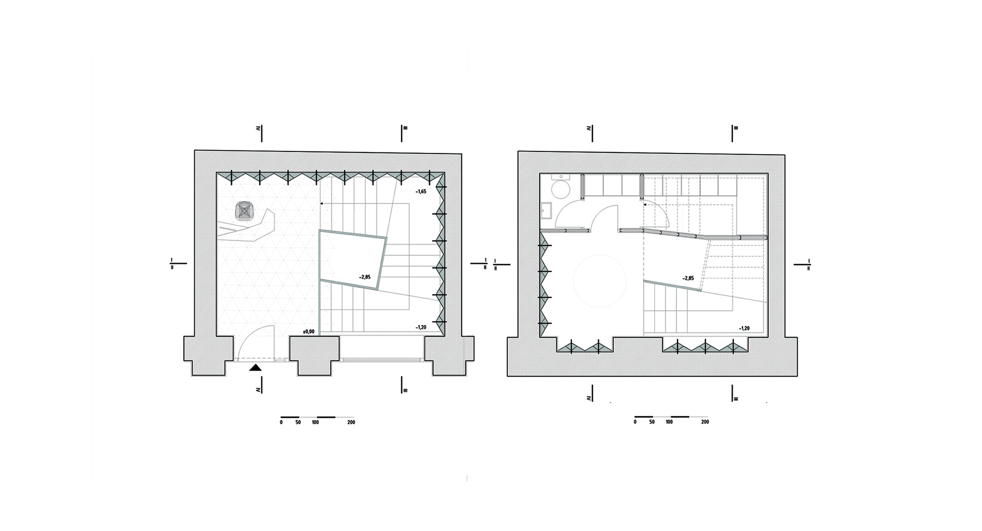
Zamisao oblikovanja jednog od lokala u Miškecovu ili tzv. Obrtničkom prolazu, polazi od korištenja jednog elementa i njegova multipliciranja te stvaranja jedinstvene i prepoznatljive dinamične strukture. Osnovni oblikovni element interpretacija je konstrukcije i plašta kišobrana. Osim funkcionalne element ima i asocijativnu vrijednost s obzirom da je kao tema zadatka izabrana trgovina kišobranima. Dobivena struktura predstavlja montažno – demontažnu instalaciju u prostoru. Funkcija i forma su promjenjivi. Promjena funkcije utječe na metamorfozu forme čime se u brojnim varijantama mijenja cijela struktura. Interpoliranu strukturu zapažamo prilikom ulaska u trgovinu (strop), ona prati naše kretanje stubištem (zid) i zaključno je prisutna u podrumskoj etaži.
