Stvaranje virtualne kuće kao osnove za tehničku dokumentaciju, simulaciju i vizualizaciju
Autori: Marijan Rotim, Matija Sedak, Hana Marisa MoharMentori: Bojan Baletić, Morana PapAkademska godina: 2024.
Katedra za arhitektonsko projektiranjeKabinet za primjenu računalaPrimjena računala u arhitekturi 2
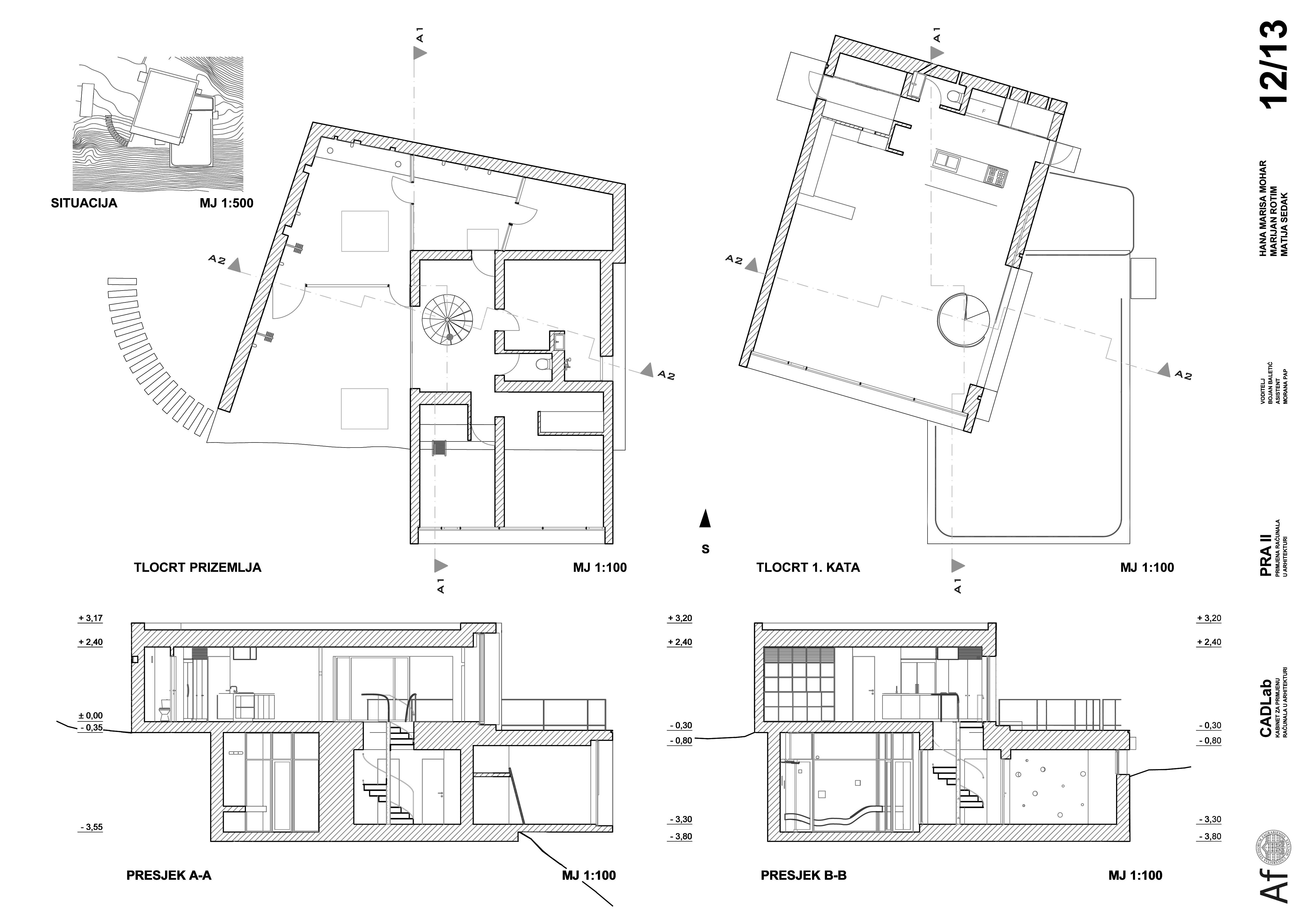
U grupnom radu od po tri studenta izrađuje se virtualni model obiteljske kuće na osnovu publiciranog, vrijednog arhitektonskog ostvarenja. Nakon zajedničke izrade virtualnog modela i stvaranja tehničke dokumentacije, studenti individualno pristupaju vizualizaciji modela pri čemu svatko kuću prikazuje na drugi način (realistični prikaz, maketarski prikaz, različita godišnja doba i sl.). Virtualni model predstavlja osnovu i za druge simulacije, npr. analizu energetske efikasnosti građevine, simulaciju konstrukcije i opterećenja, simulacije dnevnog osvjetljenja što predstavlja dopunski, neobvezni dio istraživanja o kući.
U ovom semestru studenti se bave stvaranjem BIM-a modela građevine kao osnove za jednostavne simulacije i vizualizaciju, te dinamičnom prezentacijom svog rada.
U ovom semestru studenti se bave stvaranjem BIM-a modela građevine kao osnove za jednostavne simulacije i vizualizaciju, te dinamičnom prezentacijom svog rada.
