Obnova i rekonstrukcija Dominikanskog samostana, Rijeka
Samostan s crkvom sv. Jeronima osniva augustinski red 1315. godine. Izvorno građen u gotičkom stilu, više je puta tijekom povijesti značajno pregrađivan. Pored riječkog Kaštela najveći je arhitektonski sklop u gradu. Nakon ukidanja samostana 1788. zgrada mijenja namjene, a nakon II. svjetskog rata preuzimaju je dominikanci koji ju i danas koriste.
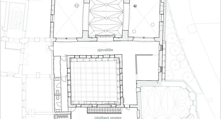
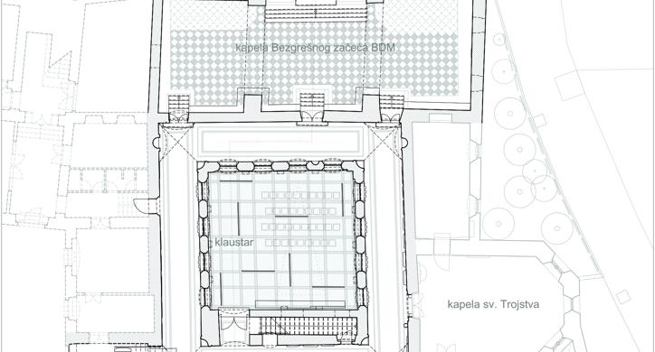
Današnji izgled samostana potječe iz druge polovice XIX. stoljeća, dok je crkva sv. Jeronima posljednji put značajnije pregrađena u XVIII. stoljeću, u razdoblju baroka. No, treba napomenuti da u unutrašnjosti samostana nailazimo na jedine sačuvane gotičke prostore u Rijeci – kapelu Bezgrešnog začeća i kapelu Sv. Trojstva, datirane u xv. stoljeće.
Idejnim projektom predviđa se obnova i djelomična rekonstrukcija samostana koji pored vjerske dobiva i javnu namjenu, kao prostor u kojem će naručitelj, Grad Rijeka, povremeno organizirati manje kulturne programe (izložbe, predavanja, koncerte) koji odgovaraju sakralnom karakteru sklopa. Unutarnjim prostorima kao i klaustru samostana vraća se barokni karakter (stubište i otvori kata na izvornoj poziciji), dok se gotička kapela Bezgrešnog začeća obnavlja ponovnom uspostavom trobrodne koncepcije.
Današnji izgled samostana potječe iz druge polovice XIX. stoljeća, dok je crkva sv. Jeronima posljednji put značajnije pregrađena u XVIII. stoljeću, u razdoblju baroka. No, treba napomenuti da u unutrašnjosti samostana nailazimo na jedine sačuvane gotičke prostore u Rijeci – kapelu Bezgrešnog začeća i kapelu Sv. Trojstva, datirane u xv. stoljeće.
Idejnim projektom predviđa se obnova i djelomična rekonstrukcija samostana koji pored vjerske dobiva i javnu namjenu, kao prostor u kojem će naručitelj, Grad Rijeka, povremeno organizirati manje kulturne programe (izložbe, predavanja, koncerte) koji odgovaraju sakralnom karakteru sklopa. Unutarnjim prostorima kao i klaustru samostana vraća se barokni karakter (stubište i otvori kata na izvornoj poziciji), dok se gotička kapela Bezgrešnog začeća obnavlja ponovnom uspostavom trobrodne koncepcije.
