Rekonstrukcija, dogradnja i nadogradnja Osnovne škole Vladimir Nazor, Zagreb, Remete
Autori: Boris Koružnjak, Gordana Domić, Aneta Mudronja Pletenac
Rekonstrukcija, dogradnja i nadogradnja postojećeg objekta osnovne škole ‘Vladimir Nazor’ u Remetama u Zagrebu izvedena je na temelju dobivenog natječaja (1999.). Isti projektanti su autori i prve faze dogradnje novih prostornih sklopova
(5.– 8. razred i sportska dvorana) i adaptacije dijela postojećih prostora škole (realizirano 2003.).
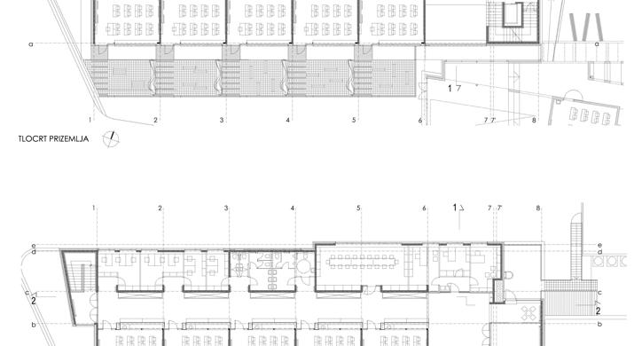
Druga faza, realizirana 2012. godine., predvidjela je rekonstrukciju, dogradnju i nadogradnju postojećeg objekta škole unutar gabarita starog krila škole, uz povećanje katnosti. Uvažavajući postojeći položaj zgrade osnovne škole, morfološke karakteristike terena, ambijent i postojeću izgradnju, novoplanirani sadržaji (katnost P+1), postavljeni su slobodno u prostoru u odnosu na regulacijske pravce obodnih prometnica na način da svojom pozicijom ne umanjuju vrijednost postojećih sadržaja na parceli i u njezinoj najbližoj okolini.
(5.– 8. razred i sportska dvorana) i adaptacije dijela postojećih prostora škole (realizirano 2003.).
Druga faza, realizirana 2012. godine., predvidjela je rekonstrukciju, dogradnju i nadogradnju postojećeg objekta škole unutar gabarita starog krila škole, uz povećanje katnosti. Uvažavajući postojeći položaj zgrade osnovne škole, morfološke karakteristike terena, ambijent i postojeću izgradnju, novoplanirani sadržaji (katnost P+1), postavljeni su slobodno u prostoru u odnosu na regulacijske pravce obodnih prometnica na način da svojom pozicijom ne umanjuju vrijednost postojećih sadržaja na parceli i u njezinoj najbližoj okolini.
