Rekonstrukcija podruma Sanatorija u Klaićevoj 18 (arh. I. Fischer) – Klinika za dječje bolesti, Zagreb
Autorica: Gordana Žaja
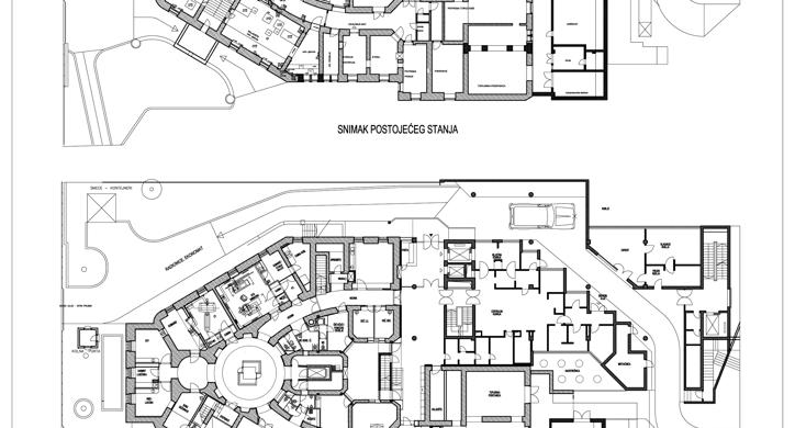
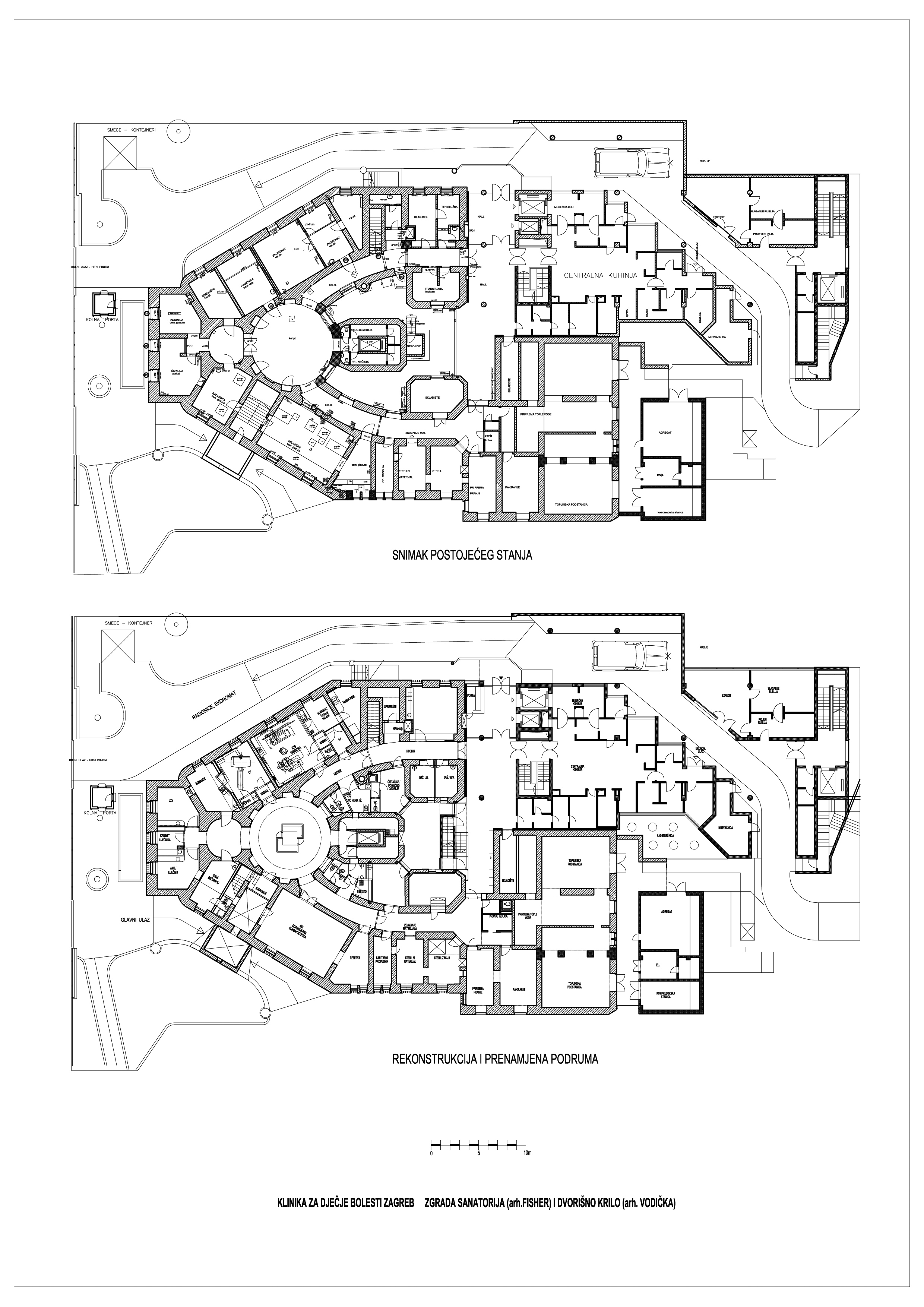
Zgrada je projektirana kao soliter u parku između Jelisavine i Prilaza, u rubnom dijelu šireg centra Zagreba. Danas je Sanatorij dio kompleksa Klinike za dječje bolesti Zagreb, smještena tamo nakon ii. svjetskog rata. Čine ga uz Fischerovu dvokatnicu i peterokatnica u Deželićevoj arhitekta Slobodana Jovičića (1965.), jednokatnica arhitekta Vladimira Turine (1954.) i četverokatno dvorišno krilo arhitekta Mladena Vodičke, projektirano uz sjeverni zabat zapadnog krila Sanatorija (1981.). Ukupna površina kliničkog kompleksa danas prelazi 16.000 m2. Sanatorij je projektiran kao ‘Zavod za sve operativne i unutarnje očne, kožne i živčane bolesti’ uz ‘predviđenu skrb za stare i palijativnu skrb’ (na liječenje se nisu primali samo oboljeli od zaraznih i duševnih bolesti).
Zgrada je projektirana kao asimetrična dvokatnica potkovasta tlocrta. Istočni krak završava operacijskim traktom, dok zapadno krilo završava zabatom uz koji se kasnije dogradilo dvorišno krilo arhitekta Vodičke. U centralnom dijelu zgrade je kružni foaje oko kojeg se, od prizemlja do 2. kata, grupiraju glavni sadržaji bolnice: luksuzne sobe za pacijente, ambulante i upravni dio. Operacijski blok tehnološki parira tadašnjim rješenjima europskih dječjih bolnica i izoliran je od ostatka zgrade. U podrumu zgrade bio je smješten dio odjela fizioterapije te pomoćni i tehnički sadržaji – kotlovnica sa spremištem krutog goriva, strojarnica, praonica, prostori za pomoćno osoblje. Dok su prostori gornjih katova projektirani vrlo bogato i luksuzno, podrumska etaža projektirana je skromno i racionalno.
Velike probleme u korištenju prostora stvarala je stalna prisutnost vlage zbog nedostatka horizontalnih i vertikalnih hidroizolacija podrumskih zidova. To je rezultiralo izmještanjem svih radnih prostora iz podrumske etaže, a nakon izgradnje dvorišnog krila arhitekta Vodičke 1985. tu su smješteni pomoćni sadržaji, tj., skladišta i spremišta.
Vrlo opsežnom rekonstrukcijom koja je završena 2010., podrum zgrade Sanatorija dobio je novu namjenu i u njemu je smješten tehnološki zahtjevan prostor dječjeg radiološkog centra (dva RTG uređaja, UZV dijagnostika, CT i MR dijagnostika). Radikalni građevinski i zanatski zahvati obuhvatili su sanaciju zgrade od vlage, konstruktivnu sanaciju, zamjenu svih instalacijskih sustava (vodovod i odvodnju, elektroinstalacije, sustav grijanja, klimatizaciju i ventilaciju). Svi prostori projektirani su prema posebnim uvjetima za smještaj sofisticiranih dijagnostičkih uređaja (UZV, RTG, CT, MR).
Zgrada je projektirana kao asimetrična dvokatnica potkovasta tlocrta. Istočni krak završava operacijskim traktom, dok zapadno krilo završava zabatom uz koji se kasnije dogradilo dvorišno krilo arhitekta Vodičke. U centralnom dijelu zgrade je kružni foaje oko kojeg se, od prizemlja do 2. kata, grupiraju glavni sadržaji bolnice: luksuzne sobe za pacijente, ambulante i upravni dio. Operacijski blok tehnološki parira tadašnjim rješenjima europskih dječjih bolnica i izoliran je od ostatka zgrade. U podrumu zgrade bio je smješten dio odjela fizioterapije te pomoćni i tehnički sadržaji – kotlovnica sa spremištem krutog goriva, strojarnica, praonica, prostori za pomoćno osoblje. Dok su prostori gornjih katova projektirani vrlo bogato i luksuzno, podrumska etaža projektirana je skromno i racionalno.
Velike probleme u korištenju prostora stvarala je stalna prisutnost vlage zbog nedostatka horizontalnih i vertikalnih hidroizolacija podrumskih zidova. To je rezultiralo izmještanjem svih radnih prostora iz podrumske etaže, a nakon izgradnje dvorišnog krila arhitekta Vodičke 1985. tu su smješteni pomoćni sadržaji, tj., skladišta i spremišta.
Vrlo opsežnom rekonstrukcijom koja je završena 2010., podrum zgrade Sanatorija dobio je novu namjenu i u njemu je smješten tehnološki zahtjevan prostor dječjeg radiološkog centra (dva RTG uređaja, UZV dijagnostika, CT i MR dijagnostika). Radikalni građevinski i zanatski zahvati obuhvatili su sanaciju zgrade od vlage, konstruktivnu sanaciju, zamjenu svih instalacijskih sustava (vodovod i odvodnju, elektroinstalacije, sustav grijanja, klimatizaciju i ventilaciju). Svi prostori projektirani su prema posebnim uvjetima za smještaj sofisticiranih dijagnostičkih uređaja (UZV, RTG, CT, MR).
