Filozofski i Učiteljski fakultet u Rijeci – FFUF
Autori: Vanja Rister, Tin Sven Franić, Hildegard Auf-FranićSuradnici: Marina Bertina, Ivan Cetinić, Tajana Jaklenec, Eugen Gajšak
Status: izvedenoNamjena: obrazovanjeProjektirano: 2006Izvedeno: 2010
Zavod za arhitekturu
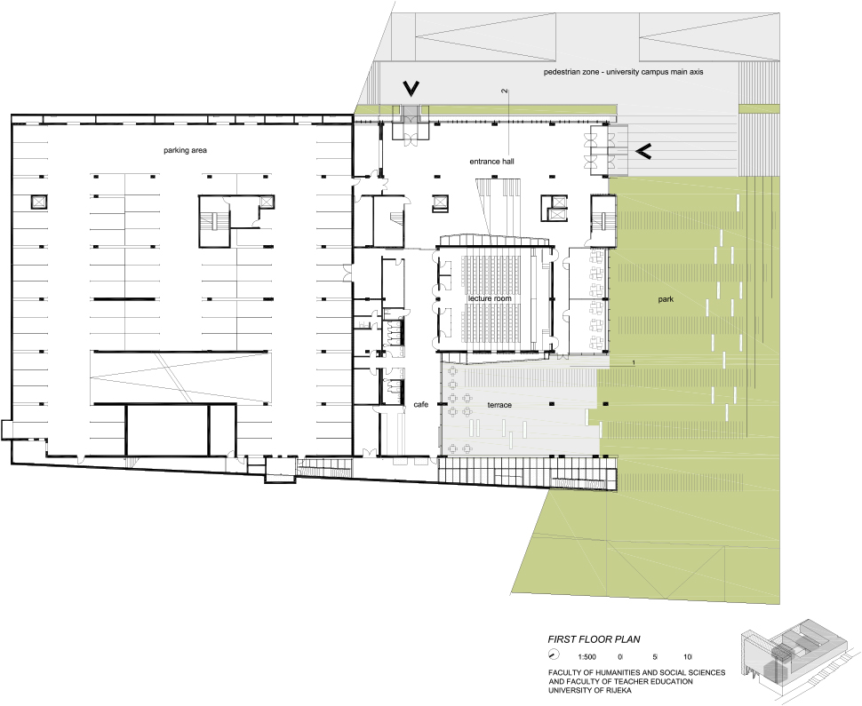
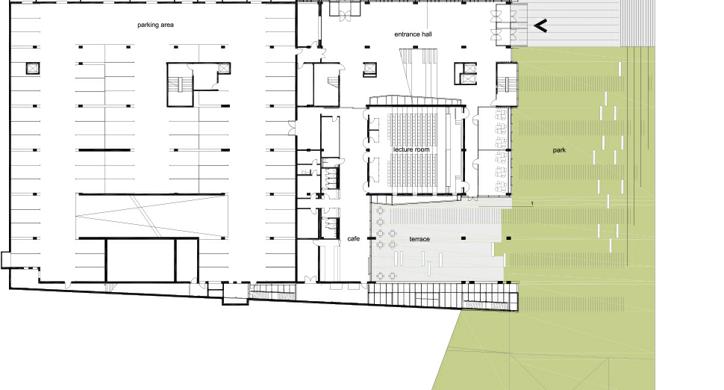
Neposredni kontekst zgrade Filozofskog fakulteta i Učiteljskog fakulteta formiran je urbanističkim planom novog kampusa Sveučilišta u Rijeci na mjestu bivše vojarne na Trsatu. Program fakulteta je kompleksan: dvije institucije s desetak studijskih programa i isto toliko odsjeka i pratećim prostorima.
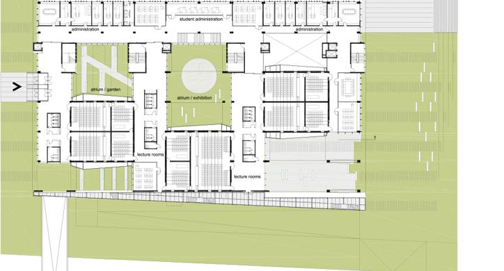
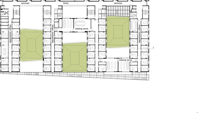
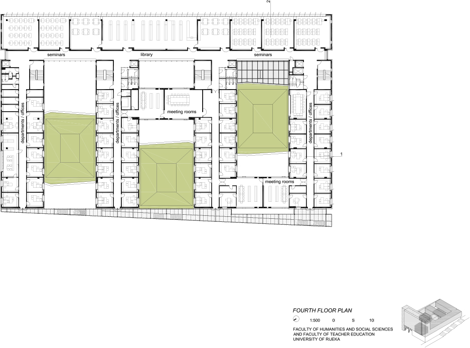
Oblikovana je struktura zgrade koja artikulira vitalno ispreplitanje brojnih aktivnosti i korisnika. Ona se čita kroz presjek i tlocrt, te omogućuje prostornu preglednost, efikasnu komunikaciju i fleksibilnost. Donji dio zgrade s unutarnjom ulicom, kroz presjek okuplja javne prostore: predavaonice, knjižnicu, aulu i otvorene atrije. Gornji dio zgrade sadrži mirne radne prostore: kabinete, seminare, te zelene krovove predavaonica. Također, tlocrtno su oblikovane tri zone od istoka prema zapadu: prostori seminara i uprave uz unutarnju ulicu, prostori odsjeka i predavaonica, te prostori otvorene galerije –evakuacijskog puta.
Prostorna i funkcionalna struktura čita se i kroz materijalizaciju: donji dio je transparentan i ekstrovertiran u aluminijskoj ostakljenoj fasadi, s umetnutim grupama predavaonica kao volumenima presvučenim perforiranim limovima. Gornji dio zgrade je introvertiran, obložen eternitnim pločama blagih promjena u nijansi žutog kolorita i ozelenjenim kupolastim krovovima predavaonica ispod. Otvorenu galeriju čini tekstura rešetkastih gazišta i perforirane opne neutralnog kolorita.
Unutar kompaktnog volumena nastaje niz karakterističnih javnih i intimnih mjesta: transparentni predprostori predavaonica uz zasjenjena dvorišta i introvertirani traktovi pojedinih odsjeka uz brežuljkaste ozelenjene krovove. Lebdeće zajedničke prostorije odsjeka - mostovi ujedno i povezuju različite dijelove fakulteta. Prozračne terase galerije služe kao alternativna komunikacija po lijepom vremenu i prostor odmora na otvorenom.
Oblikovana je struktura zgrade koja artikulira vitalno ispreplitanje brojnih aktivnosti i korisnika. Ona se čita kroz presjek i tlocrt, te omogućuje prostornu preglednost, efikasnu komunikaciju i fleksibilnost. Donji dio zgrade s unutarnjom ulicom, kroz presjek okuplja javne prostore: predavaonice, knjižnicu, aulu i otvorene atrije. Gornji dio zgrade sadrži mirne radne prostore: kabinete, seminare, te zelene krovove predavaonica. Također, tlocrtno su oblikovane tri zone od istoka prema zapadu: prostori seminara i uprave uz unutarnju ulicu, prostori odsjeka i predavaonica, te prostori otvorene galerije –evakuacijskog puta.
Prostorna i funkcionalna struktura čita se i kroz materijalizaciju: donji dio je transparentan i ekstrovertiran u aluminijskoj ostakljenoj fasadi, s umetnutim grupama predavaonica kao volumenima presvučenim perforiranim limovima. Gornji dio zgrade je introvertiran, obložen eternitnim pločama blagih promjena u nijansi žutog kolorita i ozelenjenim kupolastim krovovima predavaonica ispod. Otvorenu galeriju čini tekstura rešetkastih gazišta i perforirane opne neutralnog kolorita.
Unutar kompaktnog volumena nastaje niz karakterističnih javnih i intimnih mjesta: transparentni predprostori predavaonica uz zasjenjena dvorišta i introvertirani traktovi pojedinih odsjeka uz brežuljkaste ozelenjene krovove. Lebdeće zajedničke prostorije odsjeka - mostovi ujedno i povezuju različite dijelove fakulteta. Prozračne terase galerije služe kao alternativna komunikacija po lijepom vremenu i prostor odmora na otvorenom.
