Sportski centar Pećine: Kultura svakodnevnice /rektorova nagrada/
Autorica: Monika PrinčićMentor: Vanja RisterAkademska godina: 2014.
Katedra za arhitektonsko projektiranjeKabinet za zgrade društvenog standardaRadionica arhitektonskog projektiranja 2 – Sport +
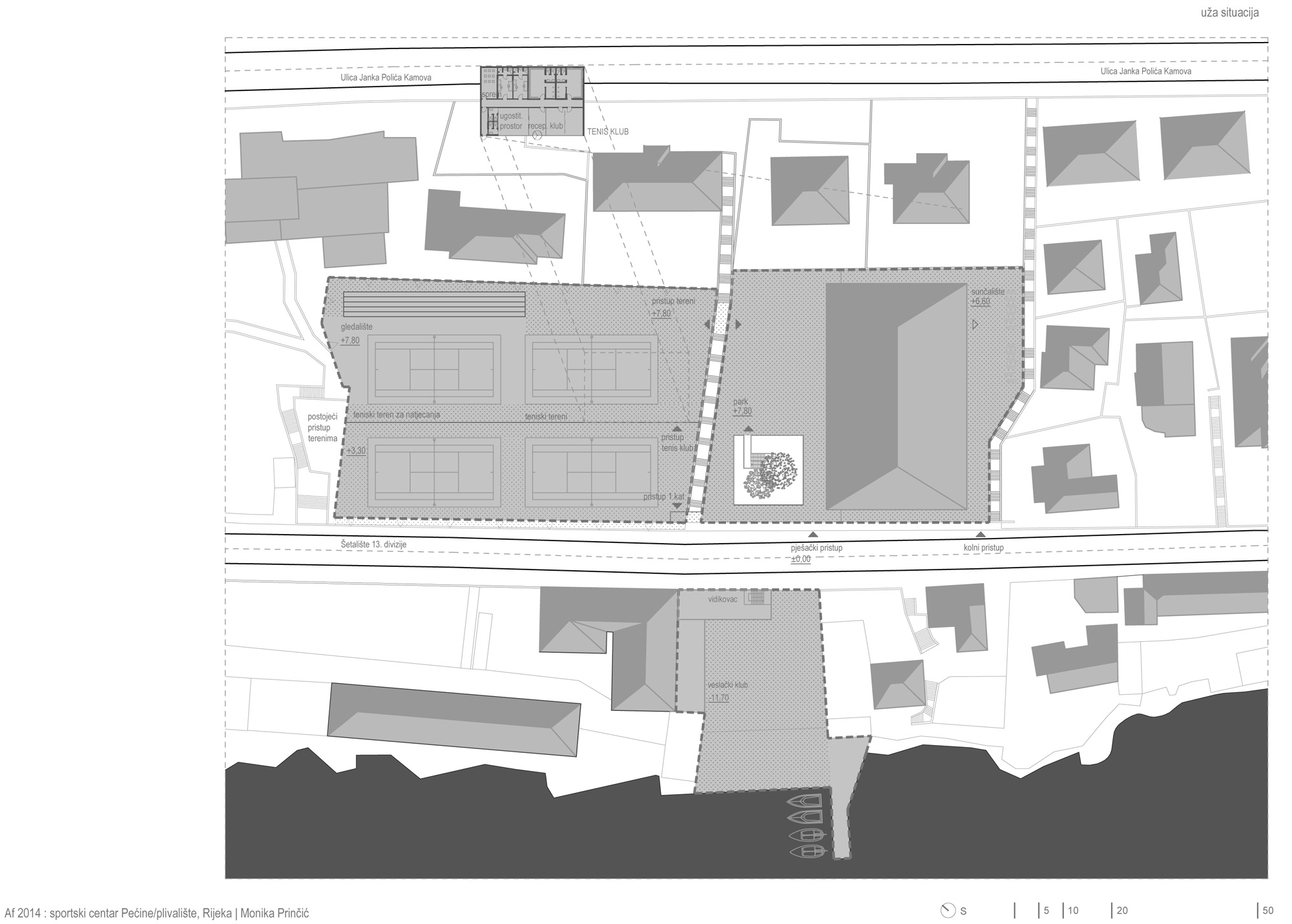
Novoplanirano riječko plivalište se nalazi u gradskoj, pretežito stambenoj četvrti Pećine, na istoku grada. Karakteriziraju ga stambene vile na kaskadnom terenu, kuće sa okućnicama kao platoima do kojih se pristupa izravno sa prometnice i stubama koje povezuju strmi teren. U nedostatku slobodnog javnog prostora, parcela plivališta, u potpunosti ispunjena programskim sadržajima, se podiže na kat oslobađajući tako prizemlje i krov te stvarajući novu kotu terena. Bazen je samostalni introvertirani volumen, odnosno kuća koja ima svoju okućnicu. Vertikalnim komunikacijama i horizontalnim platonima iste visine ostvarena je povezanost sve tri parcele - vanjskih terena sa suhim sportovima (A), javnog otvorenog prostora pokraj bazenske dvorane, ulaznog trga (B) te mokrih sportova na otvorenom uz more (C).
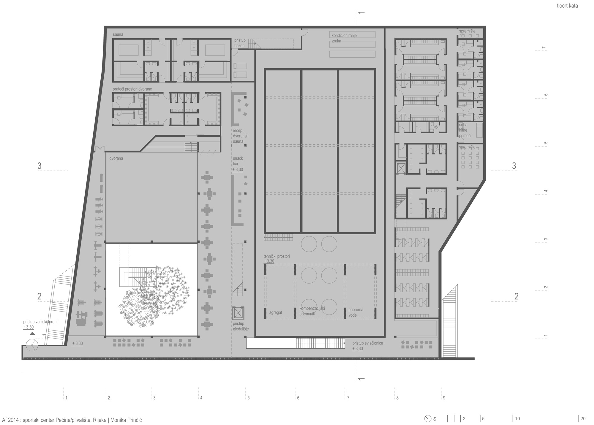
Naglasak projekta je na prostoru bazenske dvorane koja, poput tvrđave, ima zid (dvostruku opnu, ophod) u kojoj su servisni sadržaji te je puna koncentracija na prostoru s vodenom plohom. Ona ima svoj izlaz u vrt/sunčalište visinskom barijerom odvojenim od perivoja za posjetitelje čitavog komplesa i stanovnike naselja.
Volumen na etaži ispod sadrži sve ostale progamske prostore koje vizualno doživljamo prolaskom kroz isti, odnosno kroz atrij ispunjen zelenilom i orijentiran na dvoranu, teretanu, ugostiteljski prostor te unutrašnju ulicu, komunikacije. Volumen kata je prelomljen u presjeku tvoreći tako veću visinu određenih sportskih i pratećih prostora i definirajući korišenje krovne terase, vrta, perivoja. Tehnički prostori su smješteni na koti ceste, nestaju u pozadini, u masi stijene. Kretanjem kroz kompleks kontinuirano se izmjenjuju atmosfere i doživljaji prostora.
Konstrukcija zgrade je podijeljena u dva dijela. Prizemna etaža i kat imaju armiranobetonske zidove, grede, stupove i stropne ploče, na rasponu od 7,35 m / 7,65 m. Bazenske školjke velikog i malog bazena su betonske konstrukcije pridržane betonskim gredama i zidovima.
Bazenska dvorana ima laganu čeličnu konstrukciju. Čelični stupovi na rasponu 7,35/ 7,65 m pridržavaju čeličnu gredu pravokutnog tlocrta sastavljenu od dva IPE 300 profila sa ispunom na koju se nastavlja krovna konstrukcija čeličnih nosača IPE 160 sa ispunom, nepravilnog presjeka, pravokutnog sa gornje i eliptičnog sa donje strane nosača. Oni nose četverostrešni krov ovalnog podgleda. Na glavne nosače se nastavljaju sekundarni, a čitava krovna konstrukcija ima čelične spregove u krovnoj ravnini i na vertikalnim uglovima između stupova.
Materijali korišteni na pročelju su također raščlanjeni po katovima. Prizemlje čine staklene stijene iznad kojih je jaki izduženi volumen kata od prefabriciranih betonskih kompozitnih elemenata između kojih se nalaze linijski otvori na svakih 63 cm, odnosno svaki korak i kontrolirano propuštaju svjetlo u veliki betonski volumen , osvijetljen također kroz atrij ostakljenim pročeljem.
Bazenska kuća je obavijena ventiliranim izduženim bakrenim trakama poput brisoleja koji usmjereno propuštaju trake svjetlosti u dvoranu postupno smanjujući kut upada svjetla suptilnim zakretanjem (zatvaranjem) od sljemena prema dnu kuće. Ispod krovne konstrukcije u interijeru se nalazi barrisol plarno koje tu sjetlost difuzno raspršuje. Ophod bazena (niži dio) je obložen keramičkim pločicama.
Naglasak projekta je na prostoru bazenske dvorane koja, poput tvrđave, ima zid (dvostruku opnu, ophod) u kojoj su servisni sadržaji te je puna koncentracija na prostoru s vodenom plohom. Ona ima svoj izlaz u vrt/sunčalište visinskom barijerom odvojenim od perivoja za posjetitelje čitavog komplesa i stanovnike naselja.
Volumen na etaži ispod sadrži sve ostale progamske prostore koje vizualno doživljamo prolaskom kroz isti, odnosno kroz atrij ispunjen zelenilom i orijentiran na dvoranu, teretanu, ugostiteljski prostor te unutrašnju ulicu, komunikacije. Volumen kata je prelomljen u presjeku tvoreći tako veću visinu određenih sportskih i pratećih prostora i definirajući korišenje krovne terase, vrta, perivoja. Tehnički prostori su smješteni na koti ceste, nestaju u pozadini, u masi stijene. Kretanjem kroz kompleks kontinuirano se izmjenjuju atmosfere i doživljaji prostora.
Konstrukcija zgrade je podijeljena u dva dijela. Prizemna etaža i kat imaju armiranobetonske zidove, grede, stupove i stropne ploče, na rasponu od 7,35 m / 7,65 m. Bazenske školjke velikog i malog bazena su betonske konstrukcije pridržane betonskim gredama i zidovima.
Bazenska dvorana ima laganu čeličnu konstrukciju. Čelični stupovi na rasponu 7,35/ 7,65 m pridržavaju čeličnu gredu pravokutnog tlocrta sastavljenu od dva IPE 300 profila sa ispunom na koju se nastavlja krovna konstrukcija čeličnih nosača IPE 160 sa ispunom, nepravilnog presjeka, pravokutnog sa gornje i eliptičnog sa donje strane nosača. Oni nose četverostrešni krov ovalnog podgleda. Na glavne nosače se nastavljaju sekundarni, a čitava krovna konstrukcija ima čelične spregove u krovnoj ravnini i na vertikalnim uglovima između stupova.
Materijali korišteni na pročelju su također raščlanjeni po katovima. Prizemlje čine staklene stijene iznad kojih je jaki izduženi volumen kata od prefabriciranih betonskih kompozitnih elemenata između kojih se nalaze linijski otvori na svakih 63 cm, odnosno svaki korak i kontrolirano propuštaju svjetlo u veliki betonski volumen , osvijetljen također kroz atrij ostakljenim pročeljem.
Bazenska kuća je obavijena ventiliranim izduženim bakrenim trakama poput brisoleja koji usmjereno propuštaju trake svjetlosti u dvoranu postupno smanjujući kut upada svjetla suptilnim zakretanjem (zatvaranjem) od sljemena prema dnu kuće. Ispod krovne konstrukcije u interijeru se nalazi barrisol plarno koje tu sjetlost difuzno raspršuje. Ophod bazena (niži dio) je obložen keramičkim pločicama.
