Arhitektura dvorane: Prototip /nagrada kolegija/
Autor: Robert BarbirMentori: Tonči Žarnić, Darko LatinAkademska godina: 2016.
Katedra za arhitektonsko projektiranjeKabinet za zgrade društvenog standardaRadionica arhitektonskog projektiranja 2 – Sport +
Prototip zahtjeva specifične i prepoznatljive elemente sa usađenim principima za kreiranje novih modela. Dvoranski prostor zahtjeva specifično konstruktivno rješenje.
Projektirana je konstrukcija koja definira jednakovrijedna mjesta za koreografije raznolikih događaja koji će se odvijati istovremeno.
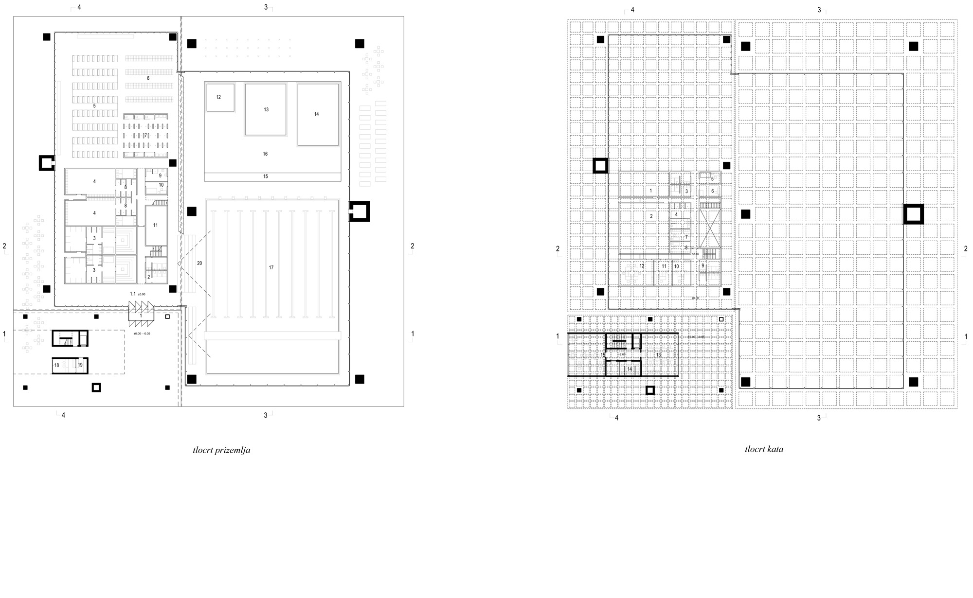
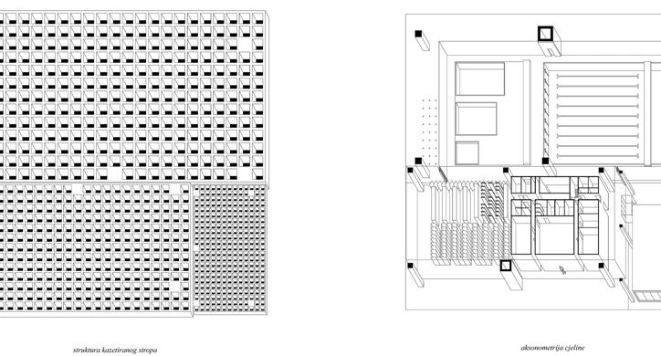
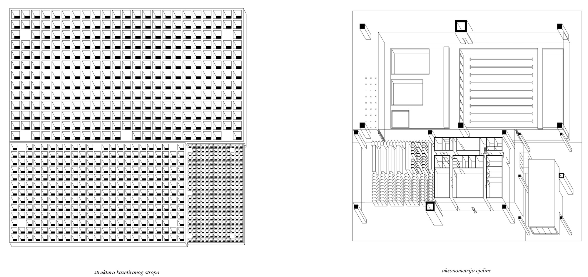
Prostor se natkriva kazetiranim stropom dimenzioniranim prema formatu potrebne dvorane. Dvorana se multiplicira ista u proporciji i materijalu, mijenja mjerilo prema potrebama prostornog programa. Sukladno tome mijenjaju se dimenzije greda i stupova, visina prostora... Dvorane u kontinuiranom ritmu čine zgradu u cjelini, sa tri stropa i tri poda. U svakoj dvorani sadržana su dva kvadratna polja određena stupovima. U svakom polju je sadržaj projektiran kao zaseban entitet. Unutar svakog entiteta kretanje je drugačije, ovisno o zahtjevanom funkcionalnom režimu. Zgrada se doima istovremeno racionalna i neracionala, masivna i lagana, robusna i fragilna.
Projektirana je konstrukcija koja definira jednakovrijedna mjesta za koreografije raznolikih događaja koji će se odvijati istovremeno.
Prostor se natkriva kazetiranim stropom dimenzioniranim prema formatu potrebne dvorane. Dvorana se multiplicira ista u proporciji i materijalu, mijenja mjerilo prema potrebama prostornog programa. Sukladno tome mijenjaju se dimenzije greda i stupova, visina prostora... Dvorane u kontinuiranom ritmu čine zgradu u cjelini, sa tri stropa i tri poda. U svakoj dvorani sadržana su dva kvadratna polja određena stupovima. U svakom polju je sadržaj projektiran kao zaseban entitet. Unutar svakog entiteta kretanje je drugačije, ovisno o zahtjevanom funkcionalnom režimu. Zgrada se doima istovremeno racionalna i neracionala, masivna i lagana, robusna i fragilna.
