Arhitektura dvorane: Prototip /nagrada kolegija/
Autor: Dino TaslamanMentori: Tonči Žarnić, Marina BertinaAkademska godina: 2020.
Katedra za arhitektonsko projektiranjeKabinet za zgrade društvenog standardaRadionica arhitektonskog projektiranja 2 – Sport +
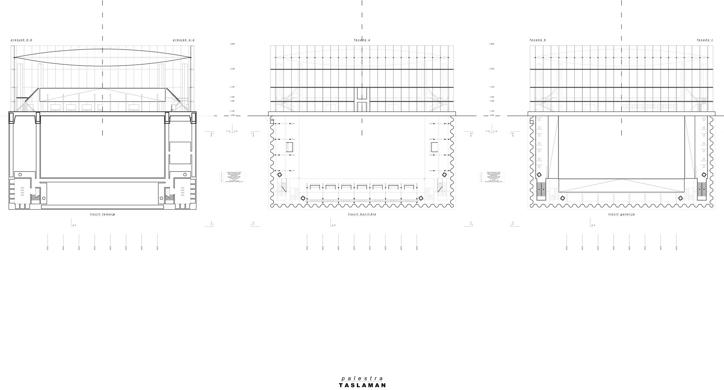
Palestra. Konstrukcija dvorane sastavljena je od armirano betonske temeljne ploče po čijem rubu teče staklena zavjesa, razapeta na lebdeći krov.
Armirano betonska temeljna ploča dimenzije 4 7 . 8 0 x 4 7 . 8 0 m ojačana je prohodnim temeljnim
traka po rubu i sredini. Temeljne trake su u funkciji temelja za staklenu ovojnicu, komunikacije između upuštenih servisnih zona i infrastrukturnog koridora. Na uglovima ploče postavljeni su prostori sanitarnih čvorova i ventilacijskog sustava koji preko točkasto postavljenih dimnjaka upuhuju i ispuhuju zrak u proctor dvorane.
Staklena zavjesa sastavljena je od ploča četvero slojnog korugiranog stakla postavljena u 3 reda.
Staklene ploče su širine 2 metra, debljine 4 . 8 cm ( 4 x 1 . 2 cm ) dok po visini variraju. Između staklenih ploča po vertikali i horizontalni postavljen je čelični koš ( grede i stupovi ) u funkciji armiranja i ukručivanja segmenata konstrukcije.
Lebdeći krov je napuhani etfe balon dimenzija 4 5 x 4 5 m ojačan čeličnim pojasnicama promjera
1 cm u rasteru 1 x 1 m.
Balon i pojasnice fiksirane su kontinuiranu gredu koja je na spyder sistemu fiksirana u stakleni
omotač. Unutar grede riješena je odvodnja vode koja se izlijeva preko navedenih čeličnih spyder točaka (rigalice).
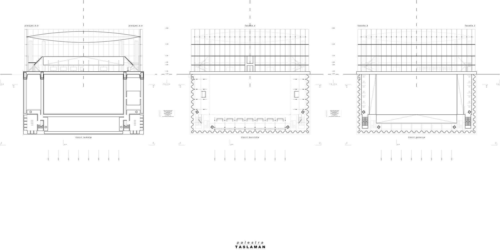
Armirano betonska temeljna ploča dimenzije 4 7 . 8 0 x 4 7 . 8 0 m ojačana je prohodnim temeljnim
traka po rubu i sredini. Temeljne trake su u funkciji temelja za staklenu ovojnicu, komunikacije između upuštenih servisnih zona i infrastrukturnog koridora. Na uglovima ploče postavljeni su prostori sanitarnih čvorova i ventilacijskog sustava koji preko točkasto postavljenih dimnjaka upuhuju i ispuhuju zrak u proctor dvorane.
Staklena zavjesa sastavljena je od ploča četvero slojnog korugiranog stakla postavljena u 3 reda.
Staklene ploče su širine 2 metra, debljine 4 . 8 cm ( 4 x 1 . 2 cm ) dok po visini variraju. Između staklenih ploča po vertikali i horizontalni postavljen je čelični koš ( grede i stupovi ) u funkciji armiranja i ukručivanja segmenata konstrukcije.
Lebdeći krov je napuhani etfe balon dimenzija 4 5 x 4 5 m ojačan čeličnim pojasnicama promjera
1 cm u rasteru 1 x 1 m.
Balon i pojasnice fiksirane su kontinuiranu gredu koja je na spyder sistemu fiksirana u stakleni
omotač. Unutar grede riješena je odvodnja vode koja se izlijeva preko navedenih čeličnih spyder točaka (rigalice).
