Sportski centar Pećine
Autorica: Maja MilojevićMentori: Mia Roth Čerina, Marina Bertina
Katedra za arhitektonsko projektiranjeKabinet za zgrade društvenog standardaRadionica arhitektonskog projektiranja 2 – Sport +
Gradska, pretežno stambena, četvrt Pećine u Rijeci proteže se od središta Sušaka do istočnog ruba grada, razapeta između mora i željezničke pruge. Karakteriziraju je stambene vile u zelenilu izgrađene prije Drugoga svjetskoga rata, te poslijeratne stambene zgrade nanizane duž dviju paralelnih ulica: Šetališta 13. divizije i Ulice Janka Polića Kamova. "Donja" i "gornja" ulica poprečno su povezane nizom karakterističnih stubišta – škala. Obalni pojas s dvije veće plaže, te dva hotela i dvije sportske lučice, do danas je ostalo popularno kupalište i zona rekreacije.
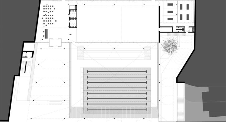
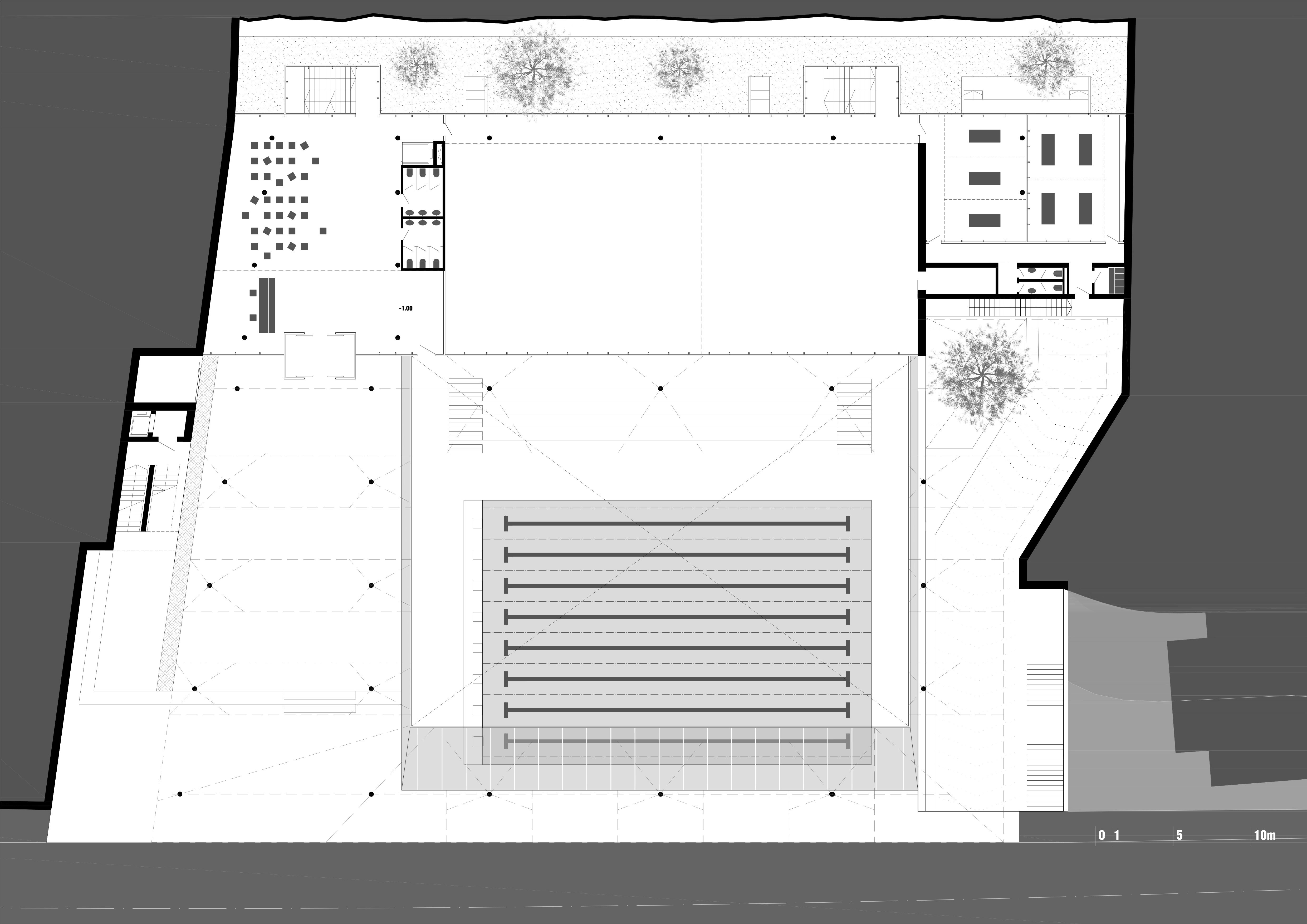
Veličina i visoki standard postojećeg riječkog bazenskog kompleksa na Kantridi (pet otvorenih i zatvorenih bazena s gledalištima) ipak ne mogu kompenzirati nedostatak plivališta u gradu. Koncentracija svih sadržaja na jednom mjestu, na rubu grada, problem čini još očitijim; čitavo područje Sušaka i središnjeg dijela grada ostaje bez plivačke infrastrukture. Prijedlogom novog bazena adresira se ovaj problem, a riječko plivanje simbolički vraća svom ishodištu. Neopterećen funkcijom centralnog gradskog objekta novi bazen može biti po mjeri susjedstva. Umjesto infrastrukture za sportski spektakl, okvir za svakodnevne sportske aktivnosti lokalne zajednice.
Sportski centar na Pećinama dom je planiranog lokalnog sportskog kluba. Uz bazen je predviđena manja višenamjenska dvorana (za gimnastiku, borilačke vještine, ples, jogu), te prostrani vrt. Plivalište je dio veće cjeline uz susjedni teniski klub, te neizgrađeni teren uz more na kojem se predviđaju sadržaji za sportove na vodi (moru).
Veličina i visoki standard postojećeg riječkog bazenskog kompleksa na Kantridi (pet otvorenih i zatvorenih bazena s gledalištima) ipak ne mogu kompenzirati nedostatak plivališta u gradu. Koncentracija svih sadržaja na jednom mjestu, na rubu grada, problem čini još očitijim; čitavo područje Sušaka i središnjeg dijela grada ostaje bez plivačke infrastrukture. Prijedlogom novog bazena adresira se ovaj problem, a riječko plivanje simbolički vraća svom ishodištu. Neopterećen funkcijom centralnog gradskog objekta novi bazen može biti po mjeri susjedstva. Umjesto infrastrukture za sportski spektakl, okvir za svakodnevne sportske aktivnosti lokalne zajednice.
Sportski centar na Pećinama dom je planiranog lokalnog sportskog kluba. Uz bazen je predviđena manja višenamjenska dvorana (za gimnastiku, borilačke vještine, ples, jogu), te prostrani vrt. Plivalište je dio veće cjeline uz susjedni teniski klub, te neizgrađeni teren uz more na kojem se predviđaju sadržaji za sportove na vodi (moru).
