Hangar za Lokvarsko jezero /rektorova nagrada/
Autorica: Ria TursanMentori: Tonči Žarnić, Marina BertinaAkademska godina: 2017.
Katedra za arhitektonsko projektiranjeKabinet za zgrade društvenog standardaRadionica arhitektonskog projektiranja 2 – Sport +
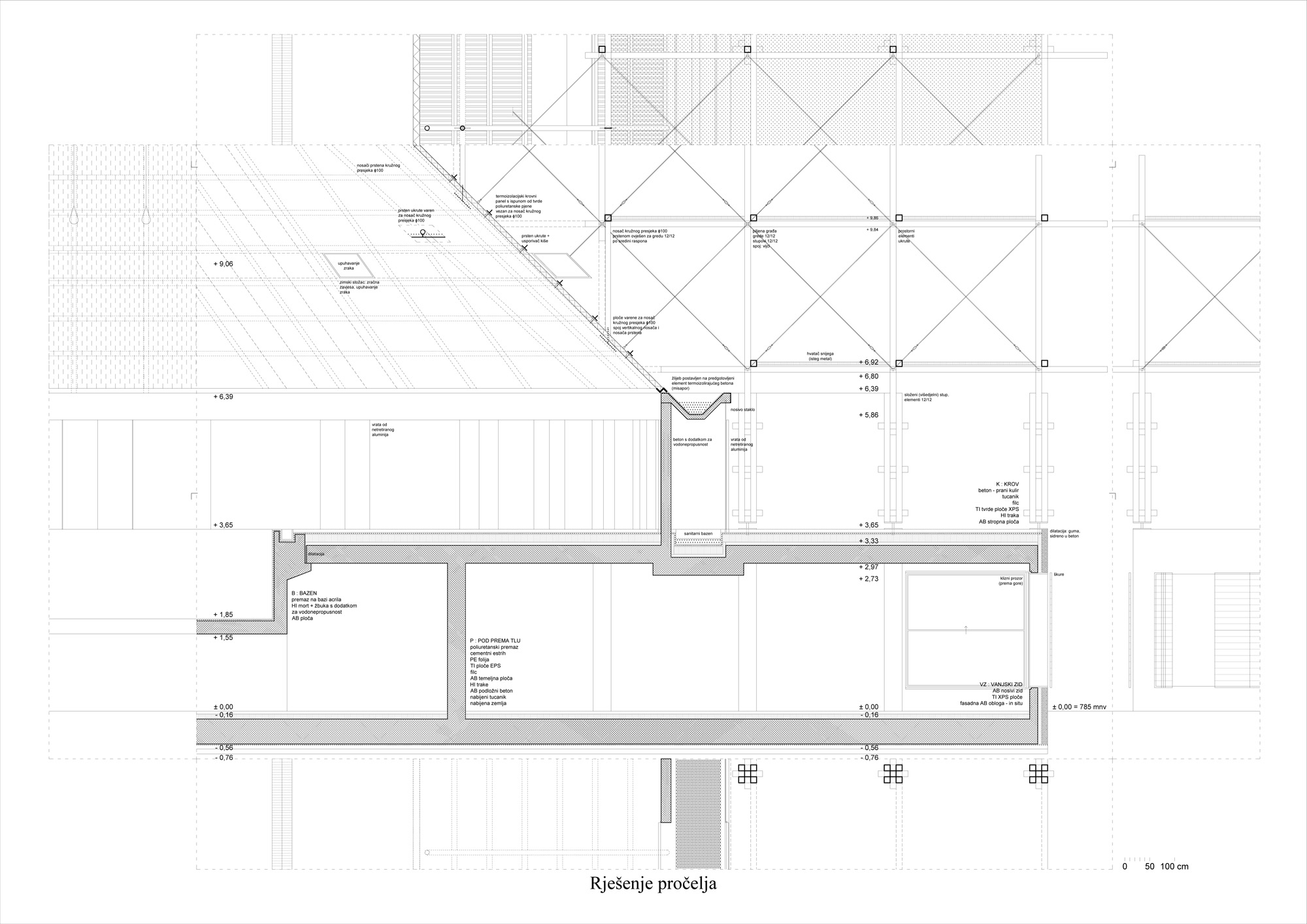
Hangar je građevina dvoranskog tipa za smještaj letjelica, plovila, strojeva i slično. Hangar za Lokvarsko jezero udomljuje prostore i opremu za bavljenje sportovima na vodi te niz rekreativnih sadržaja (bazene, saune, sunčališta, teretanu, dvoranu) za stanovnike uže i šire lokalne zajednice i njihove posjetioce. Hangar time postaje nova urbana točka općine Lokva, gorska arhitektura koja propituje prirodne i artificijelne datosti mjesta. Lokvarsko jezero je umjetno, nastalo gradnjom brane - mjesto koje je ambivalentno. Hangar se nalazi na prostoru između postojeće akumulacije vode Lokvarsko jezero i planirane akumulacije pitke vode Križ. Hangar je dio šume koja ga okružuje - bjelogorica i crnogorica. Korišten je lokalni materijal (poticanje proizvodnje) - drvo, u kombinaciji sa čelikom - kao primarna konstrukcija. Baza je sačinjena od armiranog betona - kao nastavak tla. Sve je u službi vraćanja prirodi - kuća kao da je oduvijek tamo - trebalo joj je samo dati oblik. Hangar postaje i unutrašnji i vanjski prostor, bez narušavanja postojećeg prirodnog okoliša van svojih gabarita čime omogućuje svom okružju da nastavi rasti - uz i za hangar - prirodnim putem. Ovaj hangar je kuća vječnog građenja, sa nizom srebrnih vrata od kojih niti jedna nisu kriva. Osim ljudi, omogućeno je da kuća udomljuje i ptice.
