Fakultet organizacije i informatike s pratećim sadržajima u Varaždinu
Projektantski pristup sagledava hotel i fakultet kao nove elemente u središnjem gradskom tkivu koji su harmonizirani međusobno ali i sa siluetom grada. Urbanost se stimulira projektiranjem novog trga koji postaje nov gradski fokus i priključak na pješačku i biciklističku urbanu mrežu. Programski, oko trga su smješteni sadržaji od šire društvene važnosti poput velike djeljive predavaonice, knjižnice i hotelskog restorana dostupnog i široj publici. Novouspostavljena pješačko-biciklistička komunikacija na južnom obodu u posebnom je režimu: kolni promet rezerviran je za goste hotela, opskrbu hotela i interventna vozila. Ta nova komunikacija s novim fakultetskim trgom i postojećim (proširenim) pješačkim putom iz Preradovićeve tvori novu urbanu matricu (oblika Z) koja spaja Preradovićevu i Ulicu Petra Krešimira.
Krećući se tom novom ‘alejom’ doživljavamo prostorne sekvence: uređeni perivoj Oršić, fakultetski trg s vodoskocima, dvorište predavaonica i studentske kafeterije.
U budućnosti se predlaže i produženje nove središnje osi kroz vrtove kako bi grad dobio novo šetalište čiji dio bi mogao postati središnji prostor Fakulteta. Čestice u produžetku prema istoku imaju međe točno na toj zamišljenoj osi, a sretna je okolnost i to da je čestica na kraju novozamišljene osi (na Ulici Julija Merlića) neizgrađena. Projekt predviđa i uspostavljanje nove osi od zapada prema istoku koja prolazi kroz središnji prostor Fakulteta. Nova os također ima logiku sekvenci ambijenata, a u skladu sa strukturom predloženog idejnog rješenja zgrade Fakulteta.
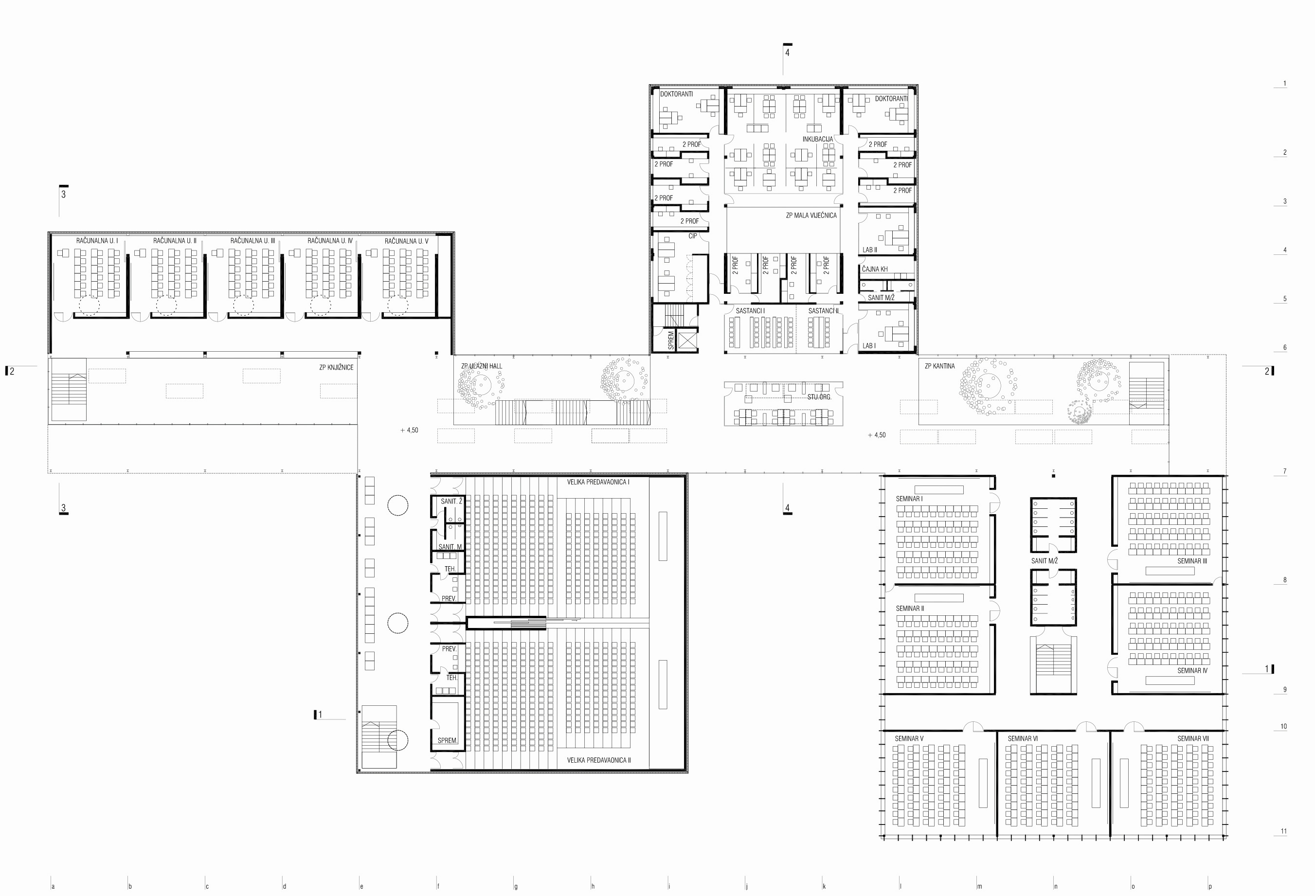
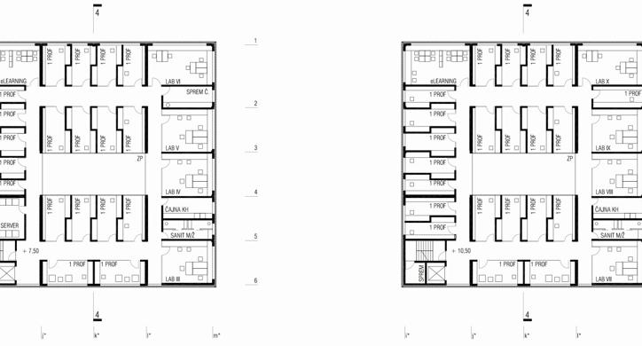
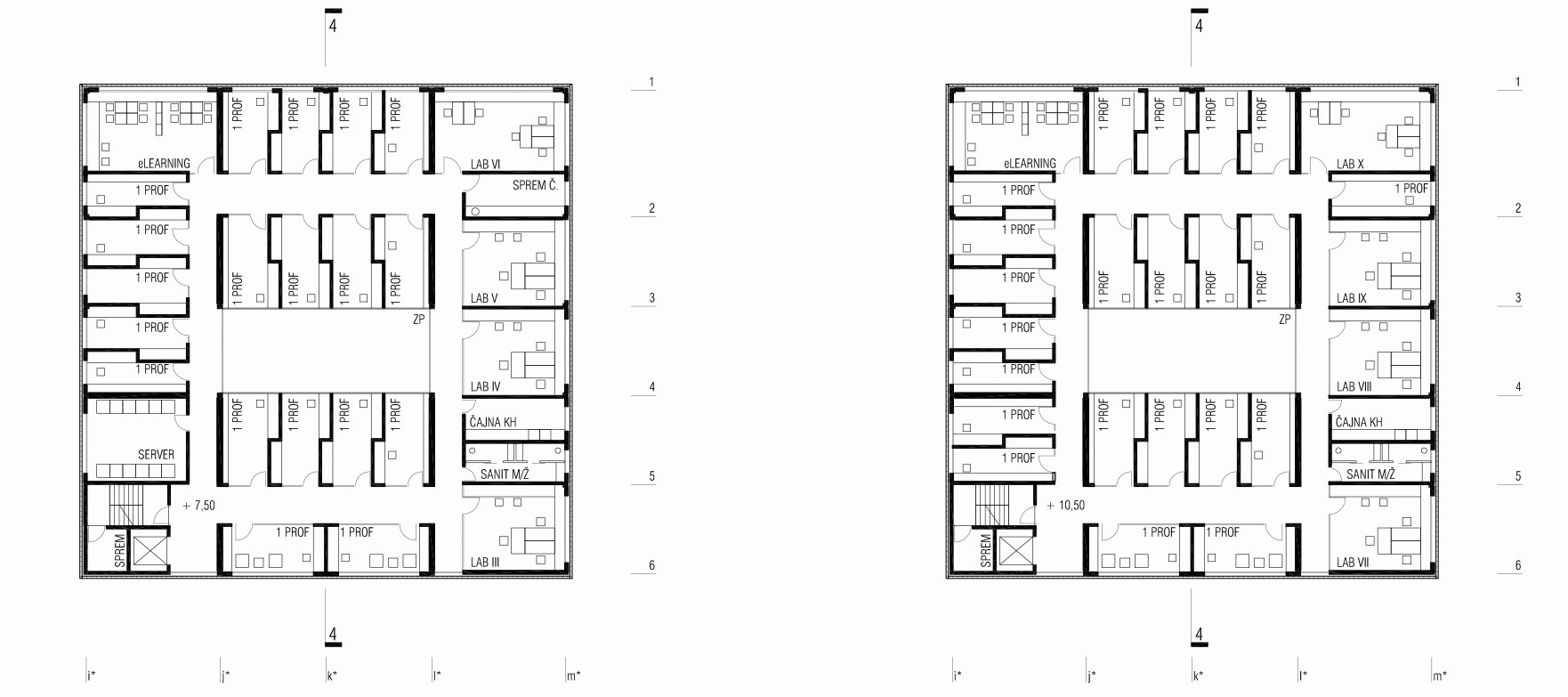
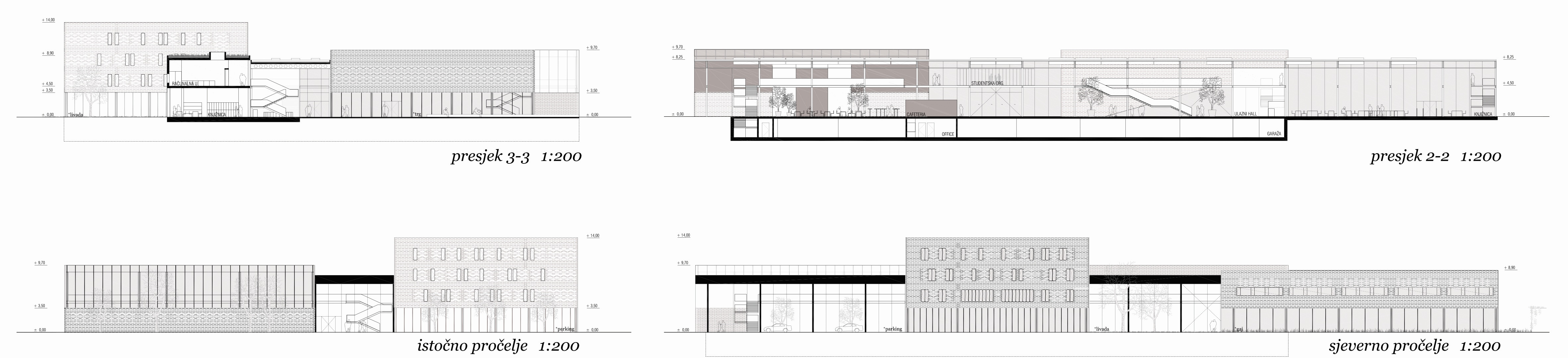
Koncept zgrade Fakulteta temelji se na spajanju različitih funkcionalnih elemenata – traktova oko te nove zajedničke osi. Pojedini elementi odjeljivi su i mogu funkcionirati odvojeno. Takva kompozicija sklopa relativno je razvedena i niska, a radi uklapanja u širu situaciju i sliku grada. Svaki trakt koncentriran je i prilagođen njegovoj dominantnoj funkciji. Glavni ulaz u zgradu Fakulteta nalazi se na zapadnoj strani (s trga), a sekundarni na istoku, uz parkirališta za automobile i bicikle. Uz ova dva predviđaju se i dva dodatna ulaza: s trga u veliku dvoranu i knjižnicu (kada se one koriste autonomno, izvan radnog vremena Fakulteta). Ulazi afirmiraju longitudinalni i dvoetažni reprezentativni komunikacijski prostor s galerijama – ‘kopču’.
‘Kopča’ je prostor koji integrira sve funkcionalne elemente Fakulteta. Na trgu se pojavljuje kao urbani element – visoka nadstrešnica koja se pretapa u unutrašnji dvoetažni prostor knjižnice i ulazni prostor, a takva oblikovna logika zadržana je i na istočnom ulazu. U prizemlju je to vibrantna komunikacija među sadržajima kao što su referada, razne predavaonice i knjižnica, dok je galerijska komunikacija mirnija i tiša. Galerija je okomito povezana s prizemljem nizom od tri reprezentativna stubišta. U sklopu tog središnjeg prostora smješteni su zajednički prostori – studentska organizacija i kafeterija. Prostor je svijetao i ozelenjen, sa staklenim stijenama prema pripadajućim vanjskim prostorima na čestici Fakulteta.
Krećući se tom novom ‘alejom’ doživljavamo prostorne sekvence: uređeni perivoj Oršić, fakultetski trg s vodoskocima, dvorište predavaonica i studentske kafeterije.
U budućnosti se predlaže i produženje nove središnje osi kroz vrtove kako bi grad dobio novo šetalište čiji dio bi mogao postati središnji prostor Fakulteta. Čestice u produžetku prema istoku imaju međe točno na toj zamišljenoj osi, a sretna je okolnost i to da je čestica na kraju novozamišljene osi (na Ulici Julija Merlića) neizgrađena. Projekt predviđa i uspostavljanje nove osi od zapada prema istoku koja prolazi kroz središnji prostor Fakulteta. Nova os također ima logiku sekvenci ambijenata, a u skladu sa strukturom predloženog idejnog rješenja zgrade Fakulteta.
Koncept zgrade Fakulteta temelji se na spajanju različitih funkcionalnih elemenata – traktova oko te nove zajedničke osi. Pojedini elementi odjeljivi su i mogu funkcionirati odvojeno. Takva kompozicija sklopa relativno je razvedena i niska, a radi uklapanja u širu situaciju i sliku grada. Svaki trakt koncentriran je i prilagođen njegovoj dominantnoj funkciji. Glavni ulaz u zgradu Fakulteta nalazi se na zapadnoj strani (s trga), a sekundarni na istoku, uz parkirališta za automobile i bicikle. Uz ova dva predviđaju se i dva dodatna ulaza: s trga u veliku dvoranu i knjižnicu (kada se one koriste autonomno, izvan radnog vremena Fakulteta). Ulazi afirmiraju longitudinalni i dvoetažni reprezentativni komunikacijski prostor s galerijama – ‘kopču’.
‘Kopča’ je prostor koji integrira sve funkcionalne elemente Fakulteta. Na trgu se pojavljuje kao urbani element – visoka nadstrešnica koja se pretapa u unutrašnji dvoetažni prostor knjižnice i ulazni prostor, a takva oblikovna logika zadržana je i na istočnom ulazu. U prizemlju je to vibrantna komunikacija među sadržajima kao što su referada, razne predavaonice i knjižnica, dok je galerijska komunikacija mirnija i tiša. Galerija je okomito povezana s prizemljem nizom od tri reprezentativna stubišta. U sklopu tog središnjeg prostora smješteni su zajednički prostori – studentska organizacija i kafeterija. Prostor je svijetao i ozelenjen, sa staklenim stijenama prema pripadajućim vanjskim prostorima na čestici Fakulteta.
