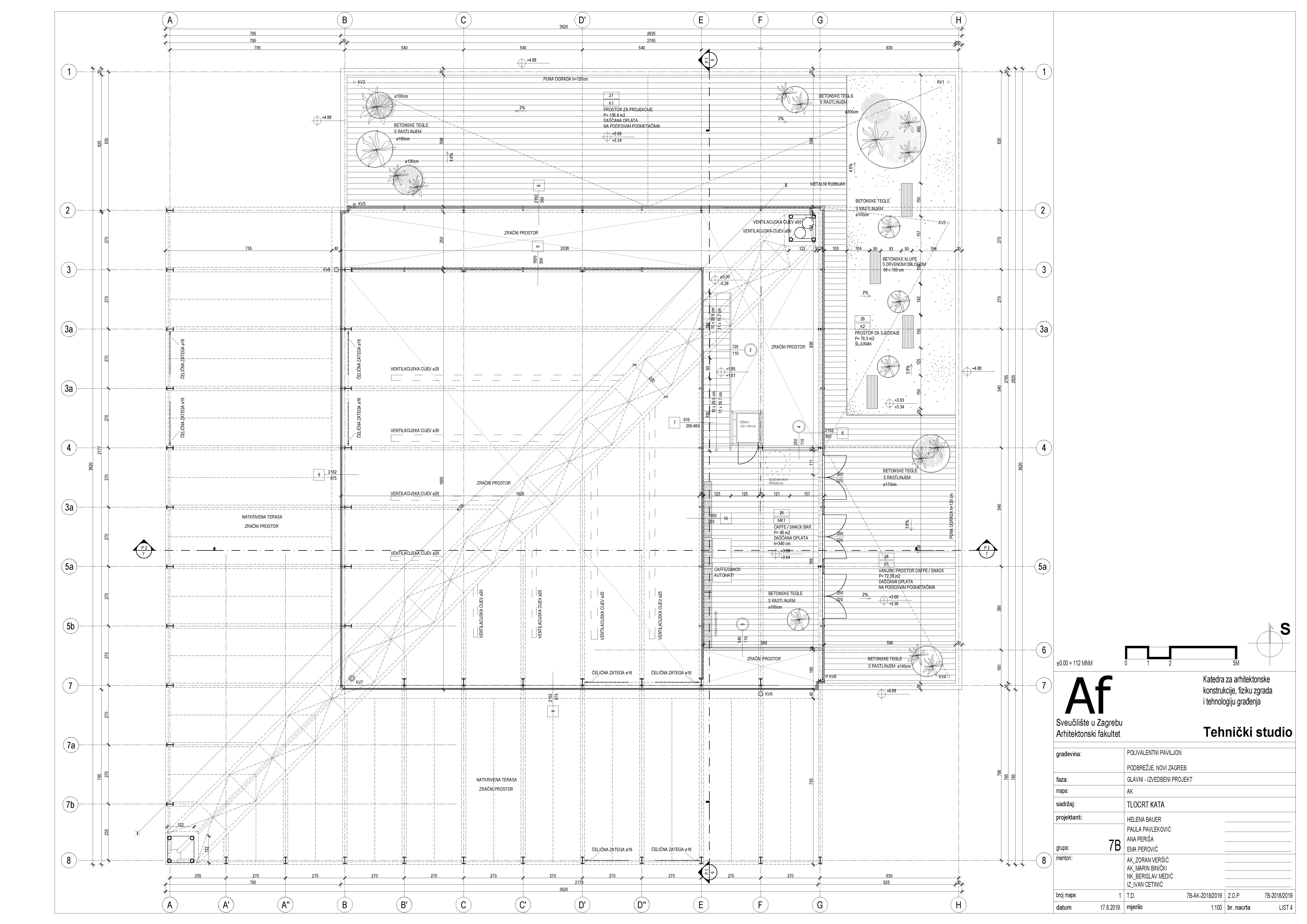
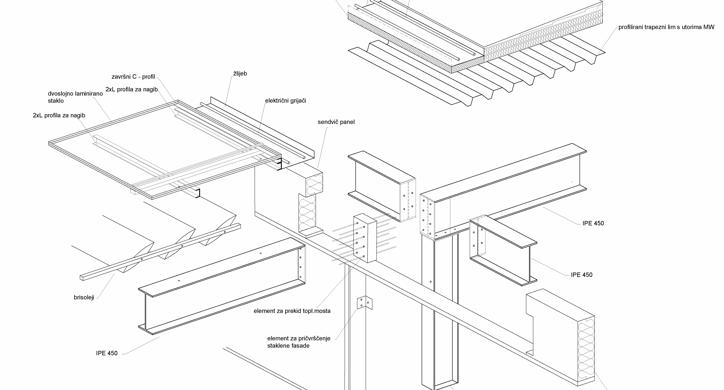
Polivalentni paviljon – Podbrežje, Novi Zagreb Autorice: Helena Bauer, Paula Pavleković, Ana Periša, Ema PerovićMentori: Zoran Veršić, Ivan Cetinić, Berislav Medić, Marin BiničkiAkademska godina: 2019.