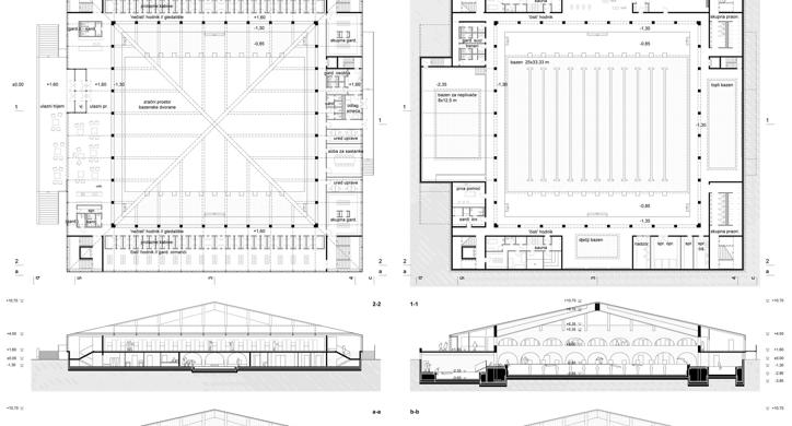
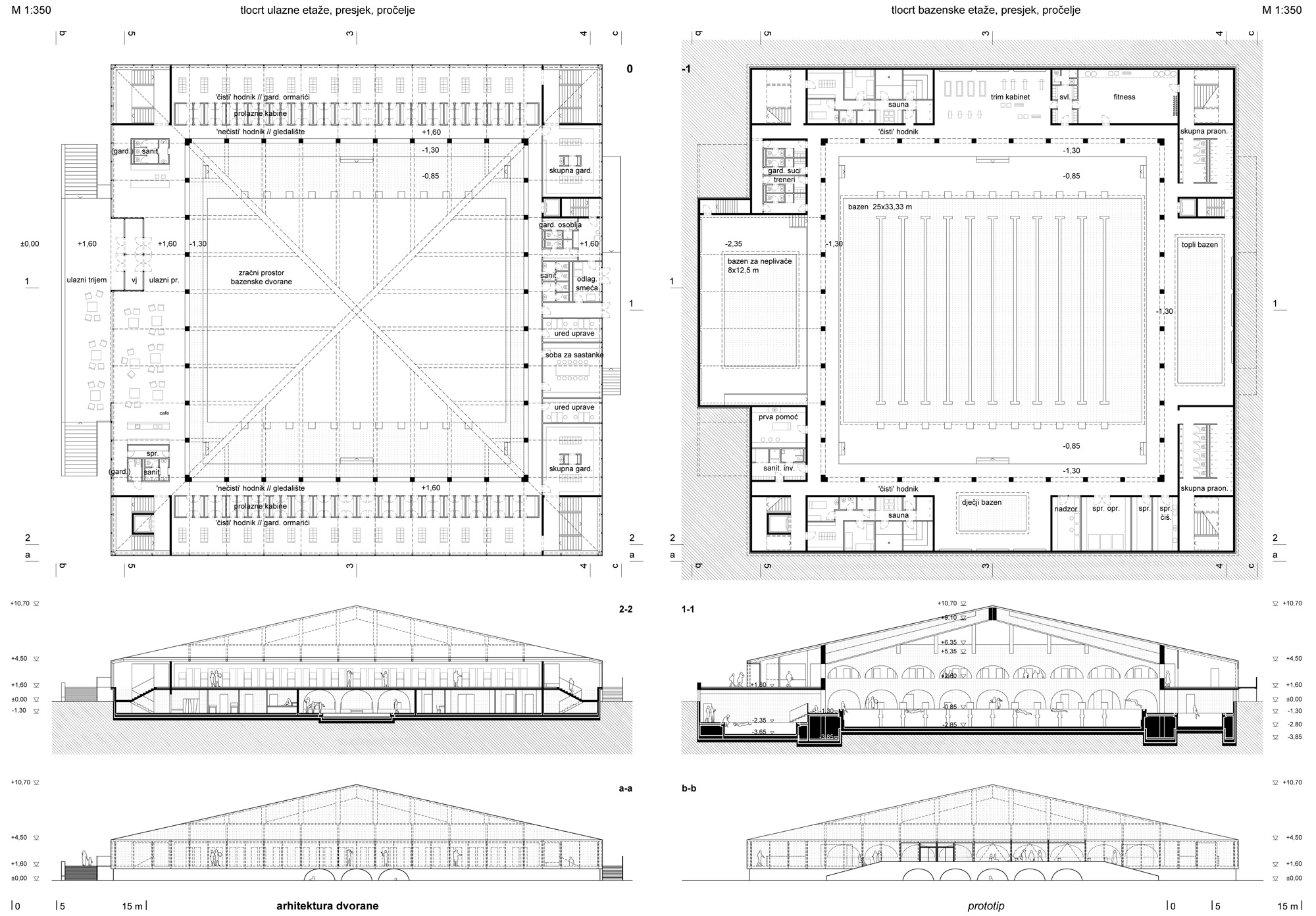
Autorica: Valentina KrekićMentori: Petar Mišković, Juraj GlasinovićAkademska godina: 2016.
Katedra za arhitektonsko projektiranjeKabinet za zgrade društvenog standardaRadionica arhitektonskog projektiranja 2 – Sport +
