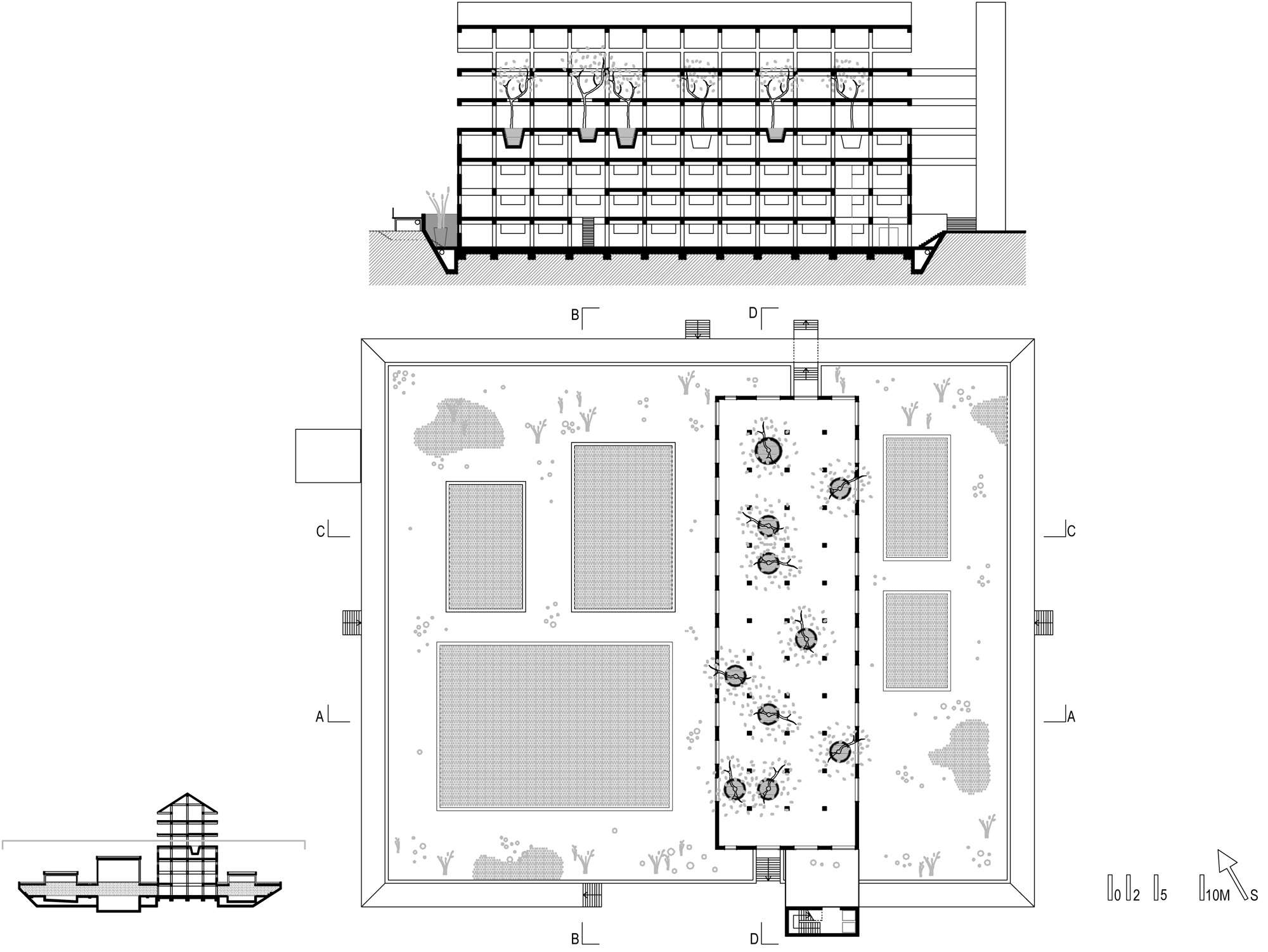
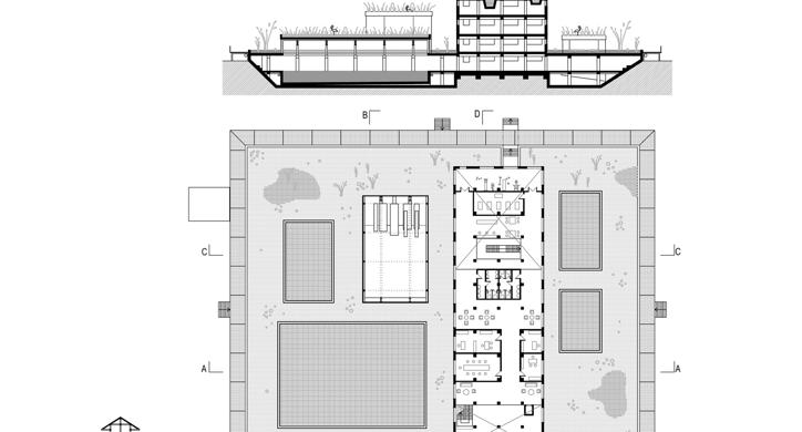
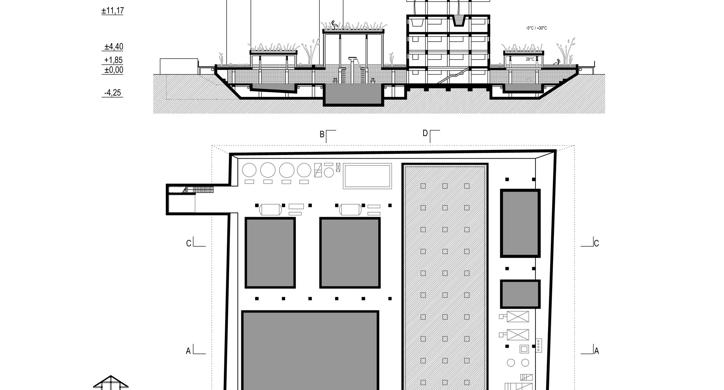
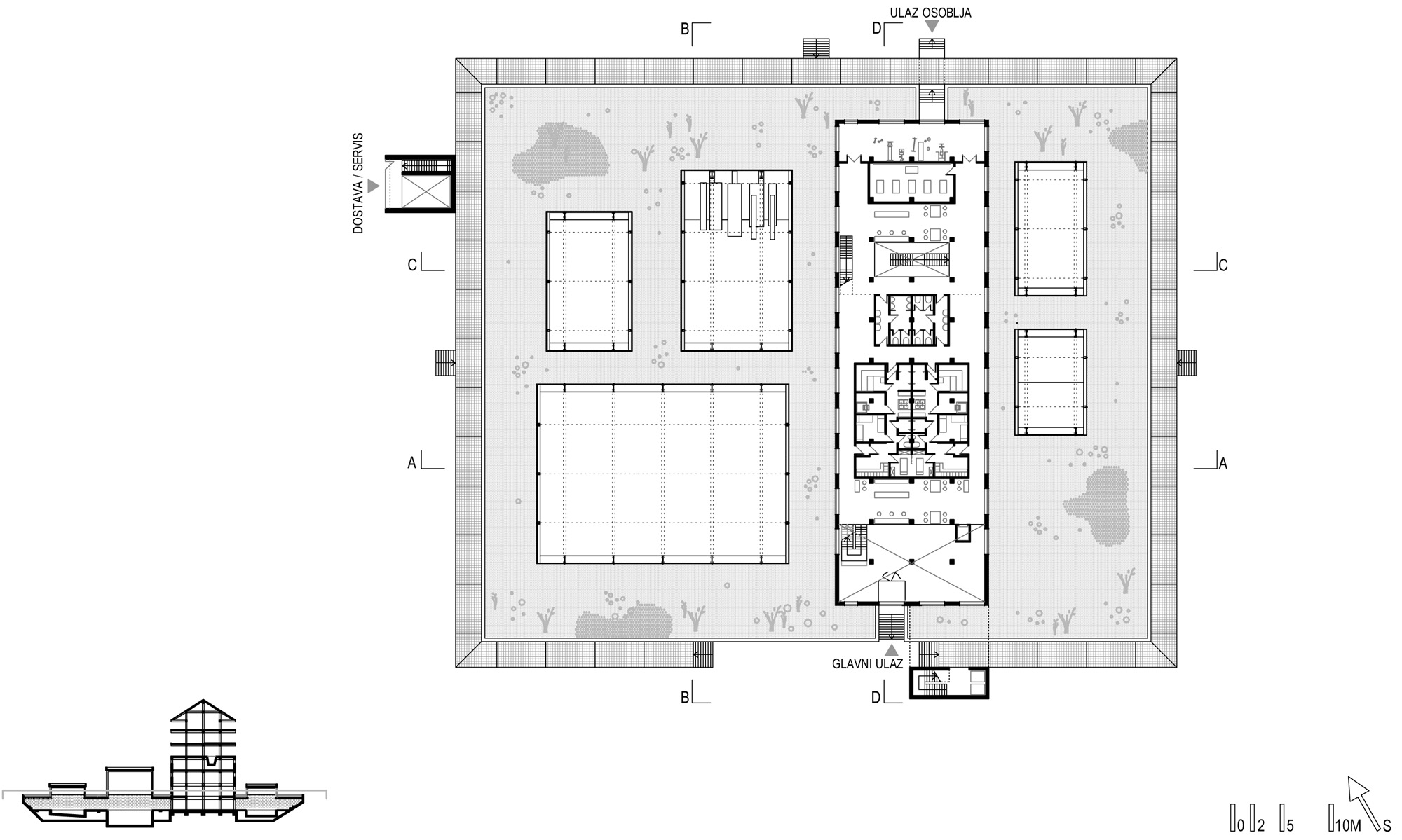
Autorica: Iva PeručićMentor: Tonči ŽarnićAkademska godina: 2012.
Katedra za arhitektonsko projektiranjeKabinet za zgrade društvenog standardaRadionica arhitektonskog projektiranja 2 – Sport +
