Sports Centre on Pećine
Autorica: Sara JurinčićMentor: Veljko Oluić
Katedra za arhitektonsko projektiranjeKabinet za zgrade društvenog standardaRadionica arhitektonskog projektiranja 2 – Sport +
The mostly residental neighbourhood Pećine in Rijeka extends from the centre od Sušak to the eastern edge of the town, stretching between the sea and the railway tracks. It is characterised by villas surrounded by greenery built before WWII and of post-war housing terraced along two parallel streets: the 13th division Promenade and Janko Polić Kamov Street. 'Donja' and 'gornja' Atreet are cross-connected by series of characteristic stairs. The coastal stretch with two larger beaches (and two hotels and two sports harbours) has remained a favoured bathing and recreational area to this day.
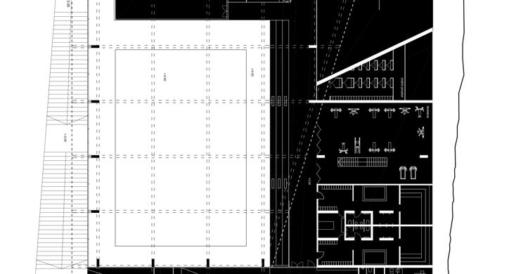
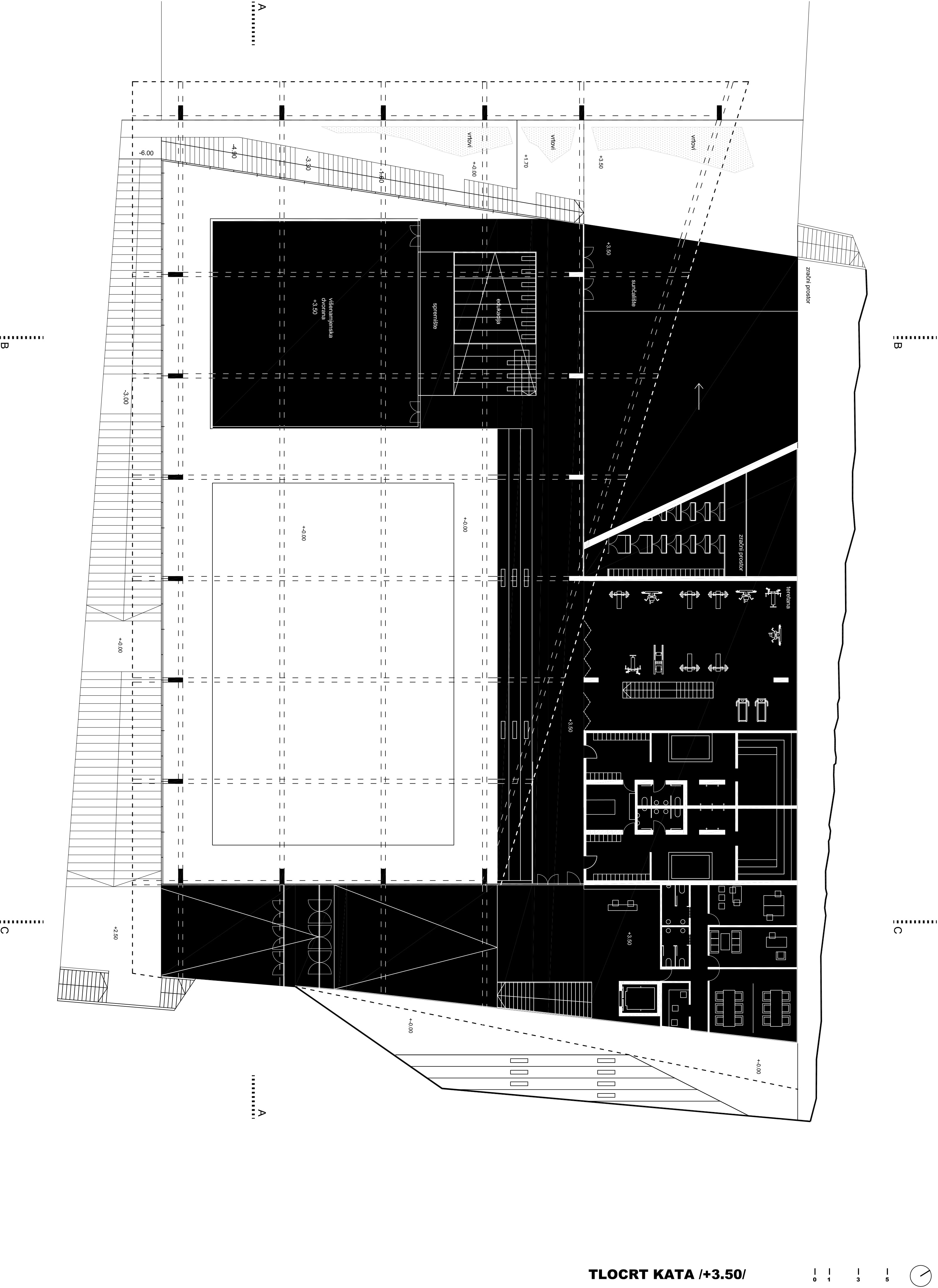
The size and high standard of the existing pool complexs in Rijeka at Kantrida (5 outdoor pools and 1 indoor pool woth viewing area) cannot compensate for the chronic lack of swimming pools in the town. The concentration of all facilities in one place, at edge od the town, makes this porblem all the more evident: the entire area of Sušak and the central part of the town has no bathing infrastructure. The proposal for a new pool addresses this issue, and returns swimming in Rijeka to its source. Divested of the function of the central town object, the new pool can be made to the measure of the neigbourghood: instead of an infrastructure for sports spectacles, it can be adapted to the everyday sports needs of the local community.
The sports centre on Pećine is home to a planned local sports club. Aside from the pool a multi-purpose hall is alse planned (for gymnastics, martial arts, dancing, yoga) as well as a etensive garden. The pool is part od a larger whole, including an adjacent tennis club and sports grounds yet to be build by the sea where facilities for water sports are foreseen.
The size and high standard of the existing pool complexs in Rijeka at Kantrida (5 outdoor pools and 1 indoor pool woth viewing area) cannot compensate for the chronic lack of swimming pools in the town. The concentration of all facilities in one place, at edge od the town, makes this porblem all the more evident: the entire area of Sušak and the central part of the town has no bathing infrastructure. The proposal for a new pool addresses this issue, and returns swimming in Rijeka to its source. Divested of the function of the central town object, the new pool can be made to the measure of the neigbourghood: instead of an infrastructure for sports spectacles, it can be adapted to the everyday sports needs of the local community.
The sports centre on Pećine is home to a planned local sports club. Aside from the pool a multi-purpose hall is alse planned (for gymnastics, martial arts, dancing, yoga) as well as a etensive garden. The pool is part od a larger whole, including an adjacent tennis club and sports grounds yet to be build by the sea where facilities for water sports are foreseen.
