Kuća M, Zagreb
Autor: Teufik Galijašević
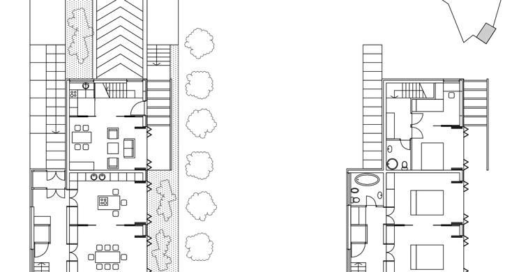
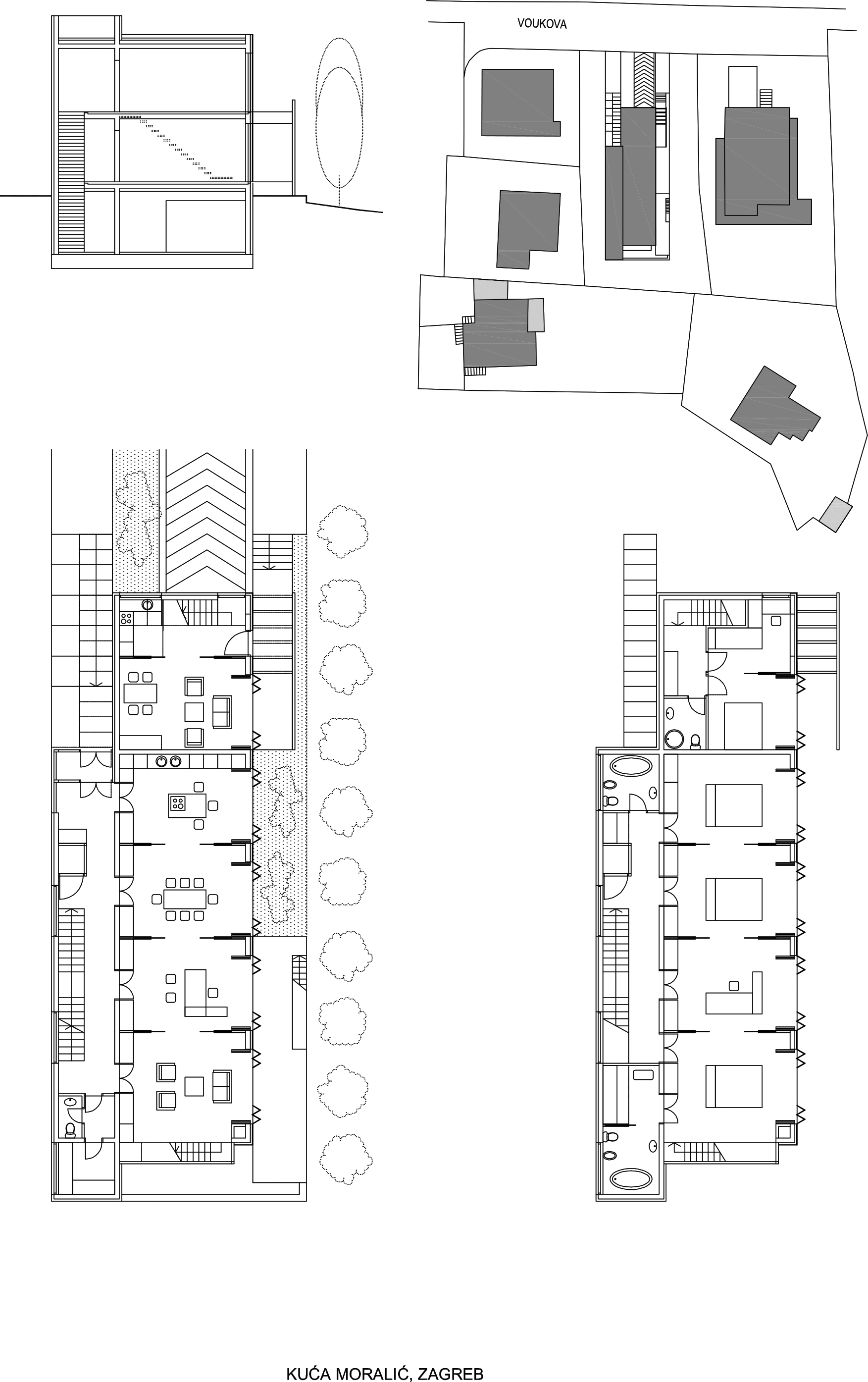
Zgrada stambene namjene sastoji se od dvije stambene jedinice s odvojenim ulazima, samostojeća je i orijentirana dužom stranom sjeveroistok-jugozapad. Takvom postavom volumena u prostoru postignuta je transparentnost jugoistočnog pročelja i omogućeno je vizualno povezivanje interijera s otvorenom zonom planiranih zelenih površina. Pristupa joj se sa sjeveroistočne strane.
Zgradu čine dva – u funkcionalnom i oblikovnom tretmanu – različita volumena: zatvoreniji sjeverozapadni s prostorima sanitarija i komunikacija, te potpuno otvoreni jugoistočni s prostorijama za boravak, rad i odmor. U tako postavljenoj organizaciji jasno se čitaju zone organizacije stana, koje se od ulaza i prostora sanitarija preko uzdužne komunikacije razvijaju do dnevnog boravka, radnog prostora, blagovaonice i kuhinje, odnosno soba na katu. Sve etaže povezane su okomitom komunikacijom stubišta i lifta.
Kontakt stana prema vanjskom prostoru ostvaruje se preko kontinuiranih ostakljenih fasadnih stijena, čime je ostvarena jednoobraznost strukture i dostatna fleksibilnost prostora. Arhitektonska interpretacija odlikuje se jednostavnošću s jasno naglašenom strukturom objekta. Konstruktivna visina nadzemnih etaža i podruma je 300 cm. Krov je riješen kao ravan i neprohodan.
Zgradu čine dva – u funkcionalnom i oblikovnom tretmanu – različita volumena: zatvoreniji sjeverozapadni s prostorima sanitarija i komunikacija, te potpuno otvoreni jugoistočni s prostorijama za boravak, rad i odmor. U tako postavljenoj organizaciji jasno se čitaju zone organizacije stana, koje se od ulaza i prostora sanitarija preko uzdužne komunikacije razvijaju do dnevnog boravka, radnog prostora, blagovaonice i kuhinje, odnosno soba na katu. Sve etaže povezane su okomitom komunikacijom stubišta i lifta.
Kontakt stana prema vanjskom prostoru ostvaruje se preko kontinuiranih ostakljenih fasadnih stijena, čime je ostvarena jednoobraznost strukture i dostatna fleksibilnost prostora. Arhitektonska interpretacija odlikuje se jednostavnošću s jasno naglašenom strukturom objekta. Konstruktivna visina nadzemnih etaža i podruma je 300 cm. Krov je riješen kao ravan i neprohodan.
