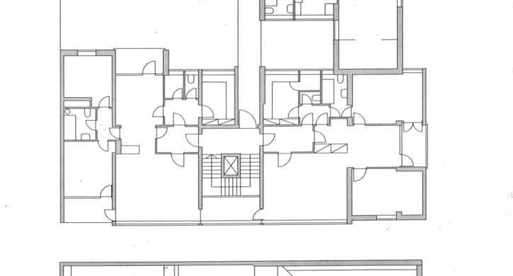
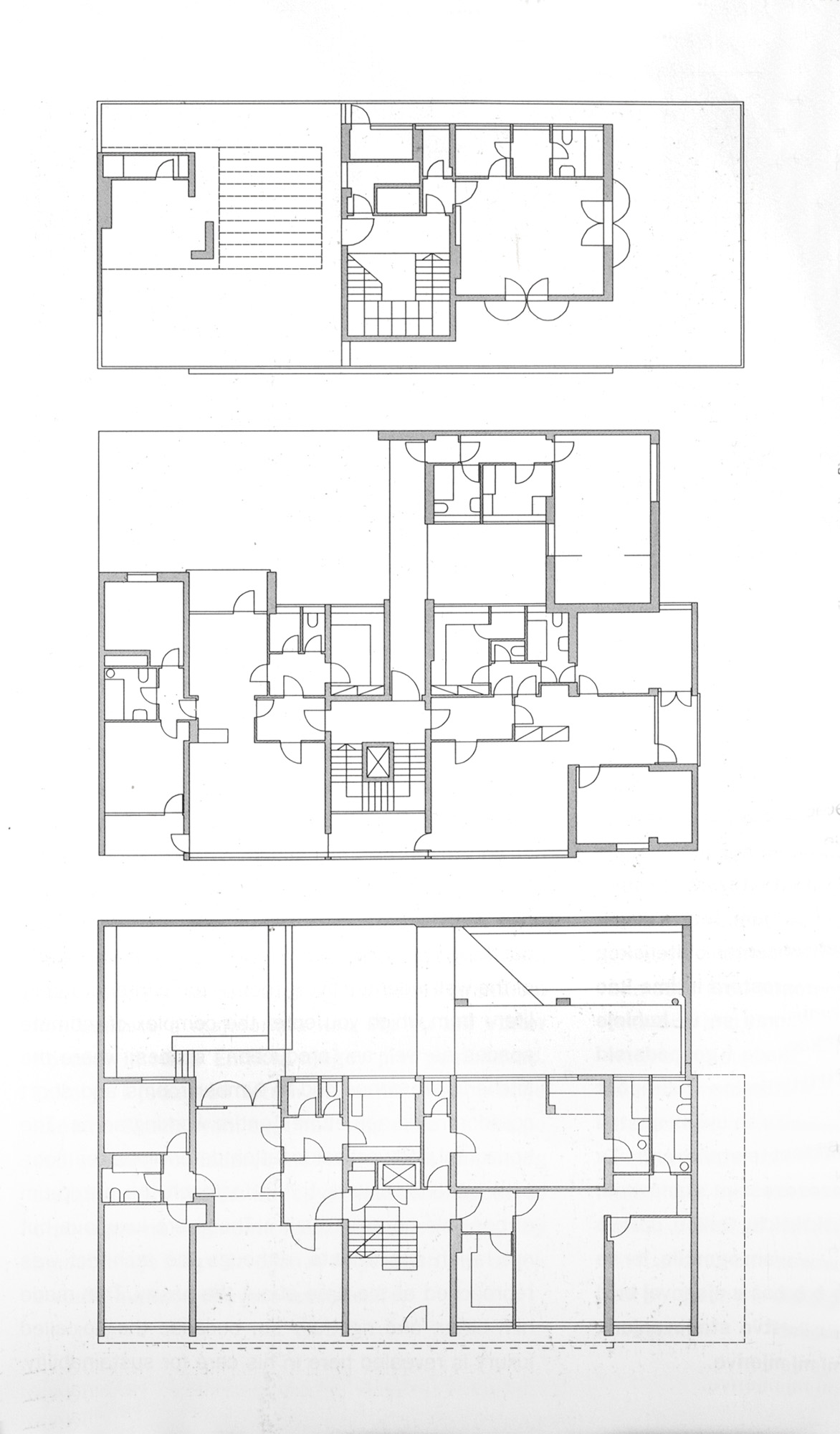
Stambena zgrada „Kemikalija“ Autor: Drago Galić Status: izvedenoNamjena: stambenaProjektirano: 1953Izvedeno: 1956