Stambena zgrada, Petrine, Zagreb
Koncept stambene zgrade locirane u neposrednom okruženju Jarunskog jezera, u gusto izgrađenom građevnom području, razvija i potencira karakteristike individualnog stanovanja u kolektivnom. Ekstrovertirana građevina maksimalno koristi potencijal situacije i kvalitetu vizura na jezero, te se artikulacijom volumena po visini gabaritno mijenja formiranjem otvorenog prostora i modulira u sklop individualiziranih prostora koji čuvaju privatnost življenja. Izmicanjem i rotacijom osnovnih jedinica višekatne građevine stvaraju se otvorene terase koje diktiraju dispoziciju i organizaciju unutarnjeg prostora.
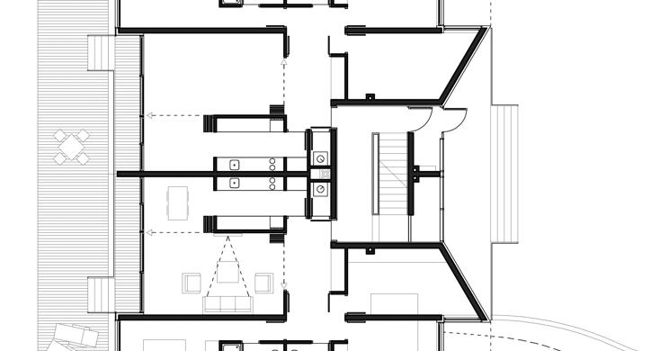
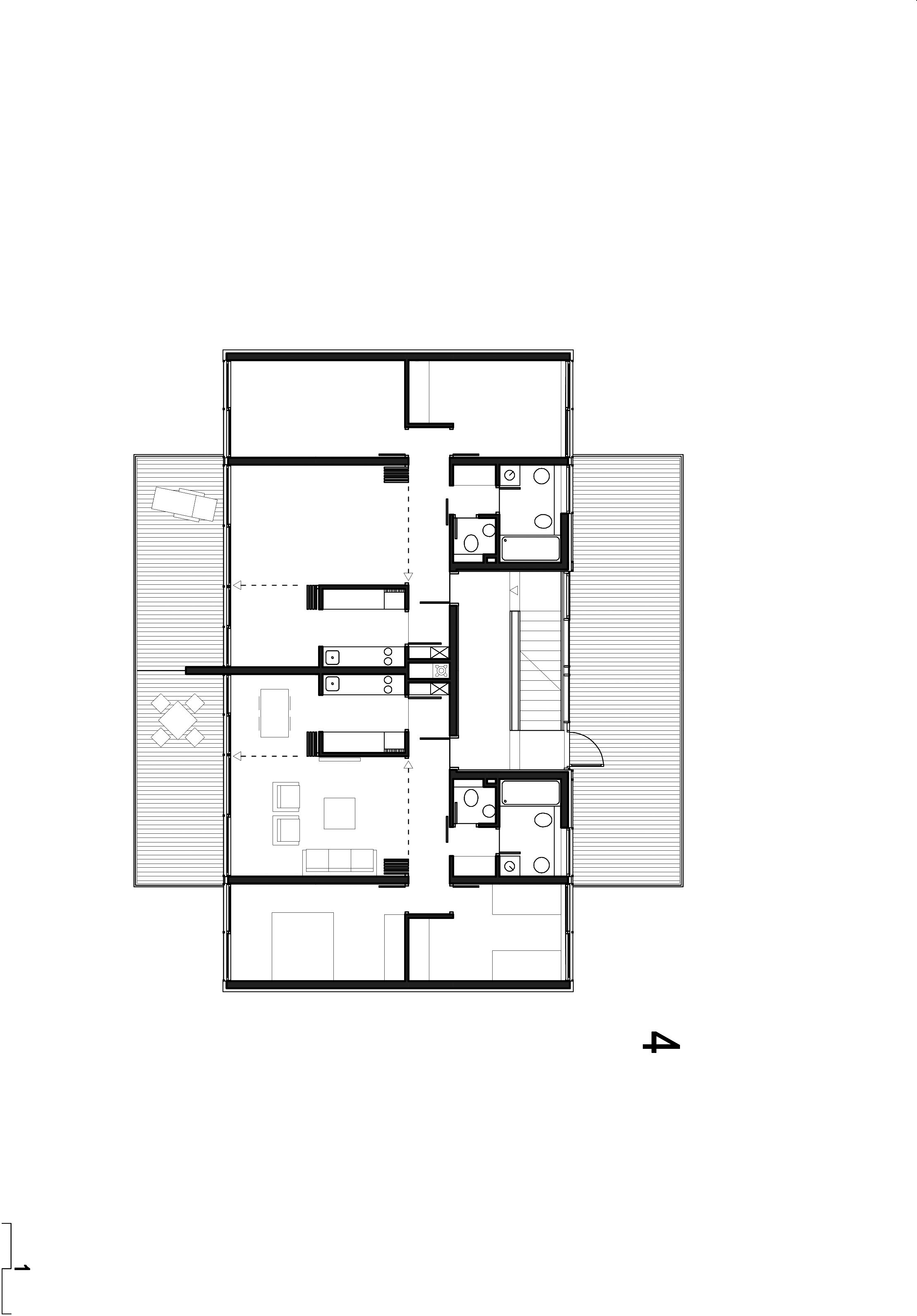
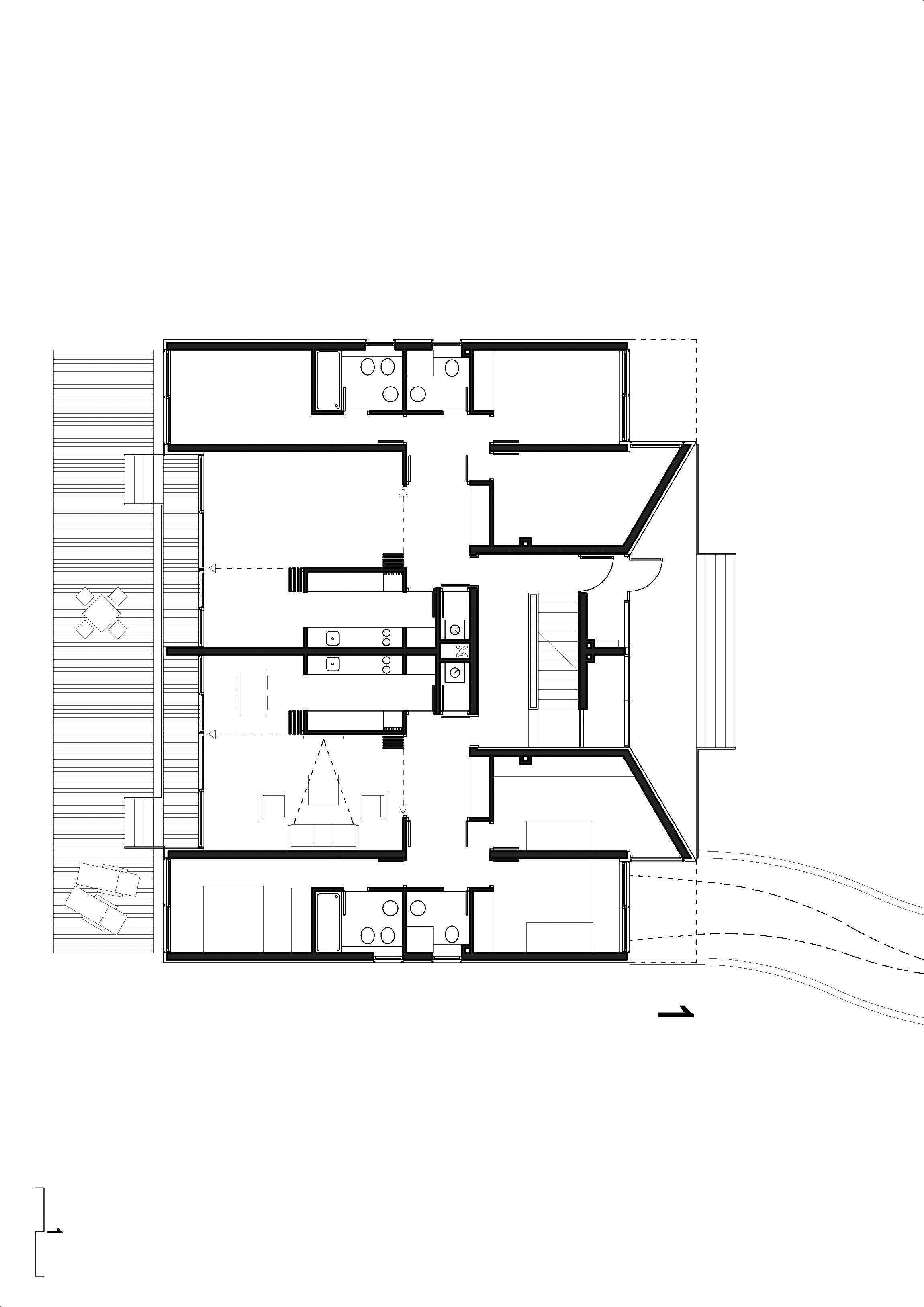
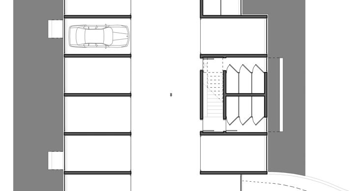
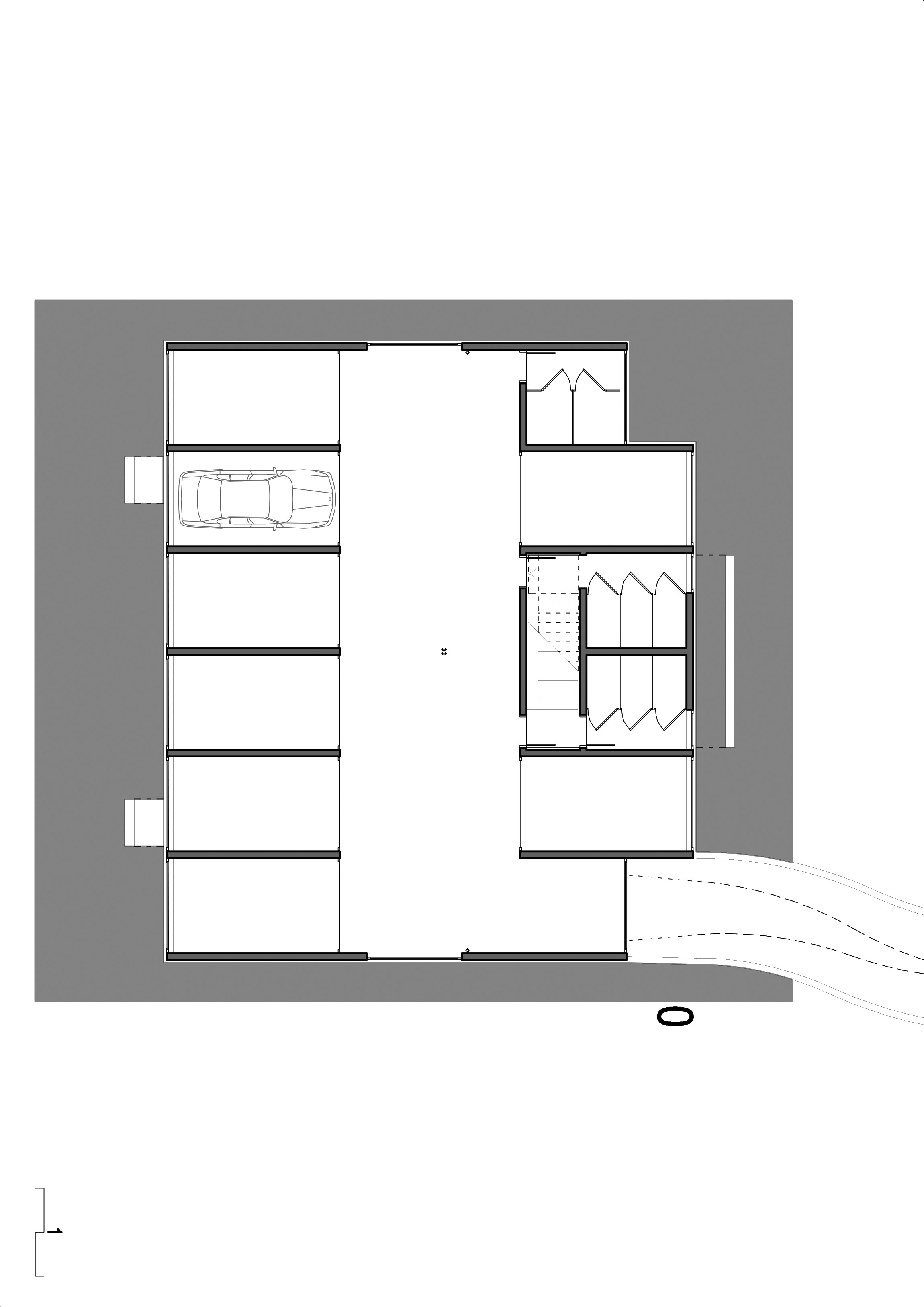
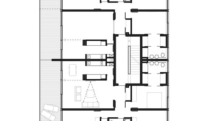
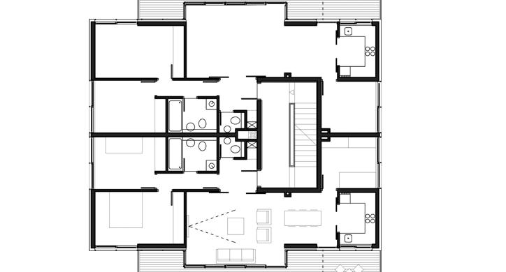
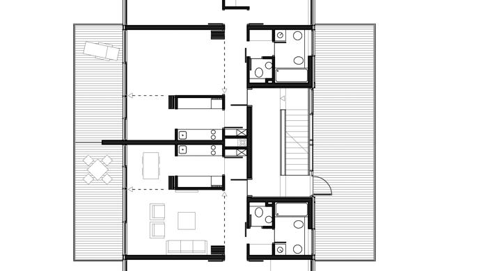
Zgrada je sagrađena na građevnoj čestici jednostavne topografije (gotovo bez nagiba), središnjom postavom, i ima četiri etaže. Preko centralno postavljenog jednokrakog stubišta pristupa se u sve etaže odnosno stambene prostore, a preko pristupne rampe, u poluukopanom podrumskom prostoru, do garaža. Dispozicija prostora unutar stanova rezultat je funkcionalnih određenja prostora, iskorištenosti povoljnih orijentacija i oblika parcele. Zgrada je organizirana u osam stambenih jedinica, trosobnim, odnosno, četverosobnim stanovima neto površine 76 – 108 m². Krov zgrade će biti ravan, neprohodan, a pročeljâ zgrade će se riješiti kombinacijom žbukanog pročelja i pročelja obloženog drvenim letvama koje se mjestimice rastvara horizontalno preklopnim brisolejima. Konstrukcija zgrade riješena je nosivim ab zidovima.
Zgrada je sagrađena na građevnoj čestici jednostavne topografije (gotovo bez nagiba), središnjom postavom, i ima četiri etaže. Preko centralno postavljenog jednokrakog stubišta pristupa se u sve etaže odnosno stambene prostore, a preko pristupne rampe, u poluukopanom podrumskom prostoru, do garaža. Dispozicija prostora unutar stanova rezultat je funkcionalnih određenja prostora, iskorištenosti povoljnih orijentacija i oblika parcele. Zgrada je organizirana u osam stambenih jedinica, trosobnim, odnosno, četverosobnim stanovima neto površine 76 – 108 m². Krov zgrade će biti ravan, neprohodan, a pročeljâ zgrade će se riješiti kombinacijom žbukanog pročelja i pročelja obloženog drvenim letvama koje se mjestimice rastvara horizontalno preklopnim brisolejima. Konstrukcija zgrade riješena je nosivim ab zidovima.
