Vila Oblica
Autor: Rene LisacSuradnik: Tin Čop
Arhitektonski ured: Mikelić Vreš arhitekti, d.o.o.Status: izvedenoNamjena: Stambena, turizamBruto površina: 450 m²Projektirano: 2014Izvedeno: 2016Autor(i) fotografija: Krešimir Zanetić
Vila Oblica je objekt predviđen kao prvi, zapadni,dio kompleksa od dvije vile na lokaciji Požare, Makarska. Iako u površini različite, Vile su oblikovno i funkcionalno usklađene i zajedno čine prostornu i vizualnu cjelinu. Koristeći maksimum od izrazito kvalitetnih vizura na makarsku rivijeru i otoke te litice Biokova u pozadini, inicijalno pravokutni tlocrtni oblici izlomljeni su u peterokute, s reprezentativnim prostorima orijentiranim prema JI odnosno JZ.
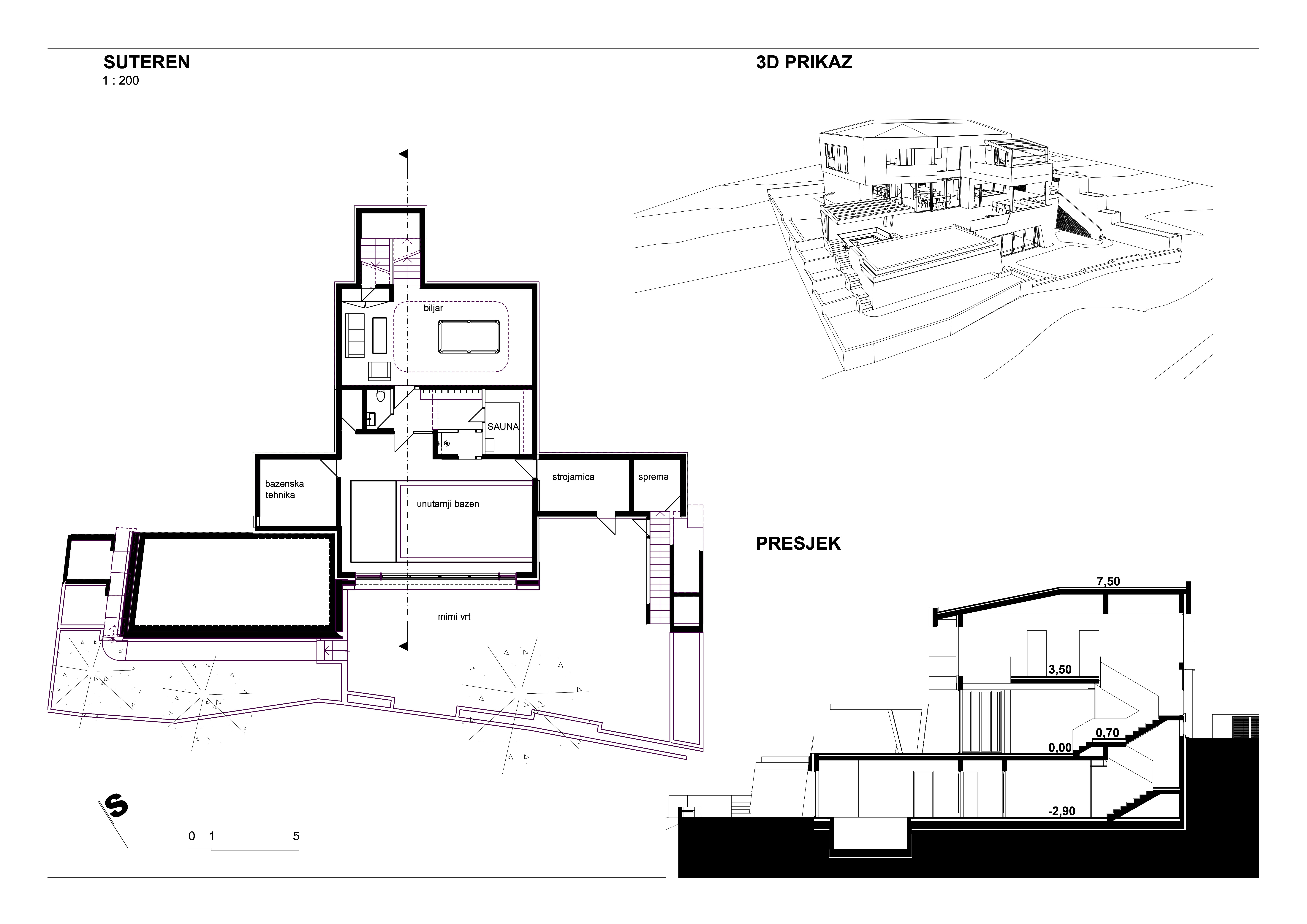
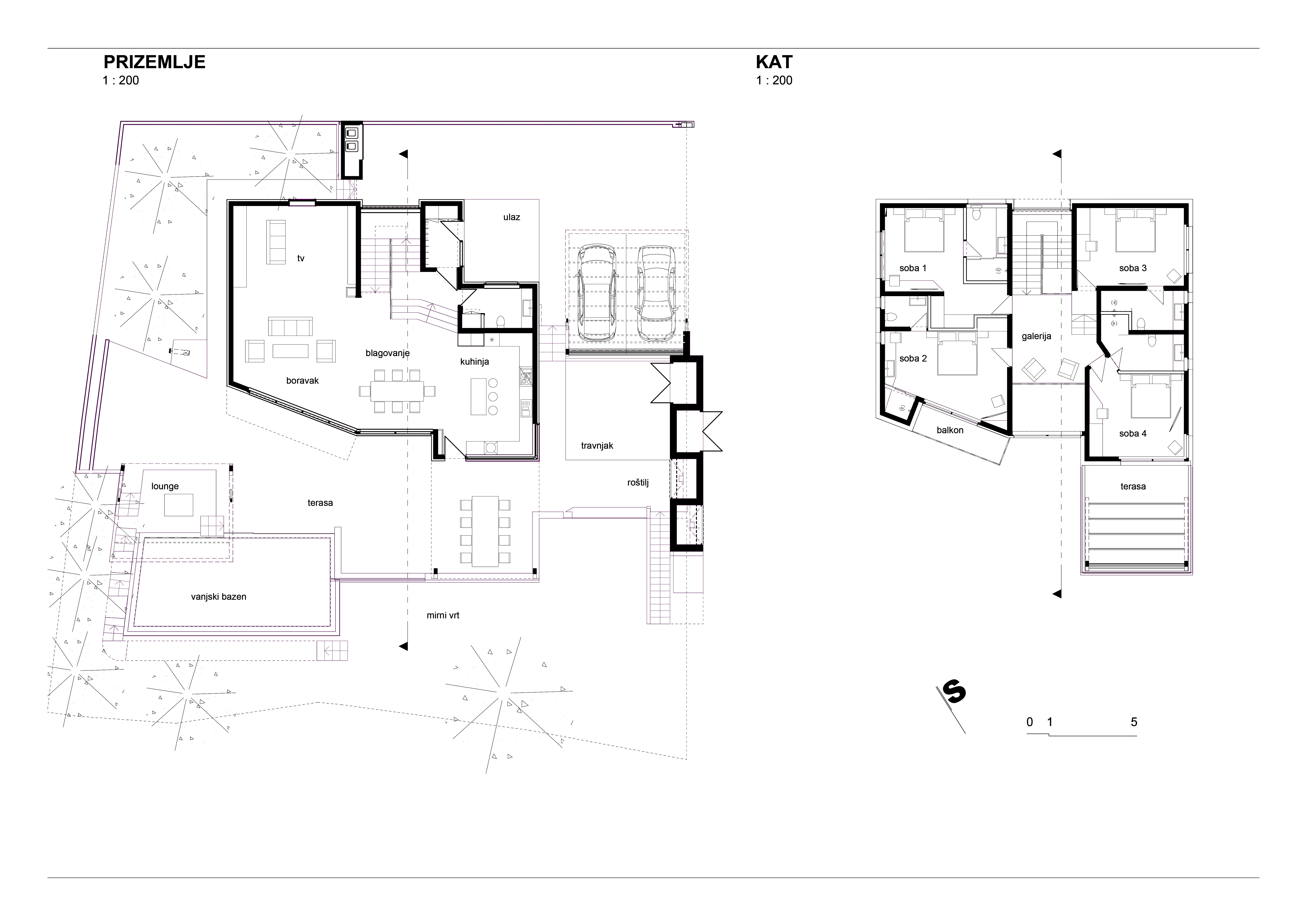
Vila Oblica sa svojih 450 m2 oblikovana je za turističku namjenu kroz tri etaže, krov je također izlomljen dijelom ravni, a dijelom kosi blagog nagiba. Prostrani "open space" prizemlja predviđen za dnevne aktivnosti otvara se maksimalno vizurama prema otocima i funkcionalno povezuje s vanjskim blagovanjem i terasom uz bazen. Na katu su smještene četiri spavaće jedinice različitog funkcionalnog i oblikovnog karaktera, prema orijentaciji i pogledima, tlocrtnom rasporedu, povezanosti s terasama kao i integraciji kupaoničkih sadržaja u sam prostor sobe. Suteren je oblikovan kao monumentalna baza za gornje etaže koja u sebi sadrži unutarnji bazen i saunu, sobu za biljar i ostale tehničke prostorije.
Oblikovanje vanjskih prostora parcele, raspoređenih na tri visinske razine pristupne zone ulaza i parkinga, glavne dnevne zone i mirne zone ispred suterena. Oblikovanje karakterizira maksimalno vračanje stabala masline inicijalno zatečenih na lokaciji, kao dio inspiracije i nositelja identiteta. Funkcionalno oblikovanje predviđa dupliranje namjena unutarnjih funkcija u vanjske i njihovu skladnu artikulaciju i međusobnu integraciju : boravak, kupanje i tuširanje, blagovanje, priprema hrane, igra, odmor…
Vila Oblica sa svojih 450 m2 oblikovana je za turističku namjenu kroz tri etaže, krov je također izlomljen dijelom ravni, a dijelom kosi blagog nagiba. Prostrani "open space" prizemlja predviđen za dnevne aktivnosti otvara se maksimalno vizurama prema otocima i funkcionalno povezuje s vanjskim blagovanjem i terasom uz bazen. Na katu su smještene četiri spavaće jedinice različitog funkcionalnog i oblikovnog karaktera, prema orijentaciji i pogledima, tlocrtnom rasporedu, povezanosti s terasama kao i integraciji kupaoničkih sadržaja u sam prostor sobe. Suteren je oblikovan kao monumentalna baza za gornje etaže koja u sebi sadrži unutarnji bazen i saunu, sobu za biljar i ostale tehničke prostorije.
Oblikovanje vanjskih prostora parcele, raspoređenih na tri visinske razine pristupne zone ulaza i parkinga, glavne dnevne zone i mirne zone ispred suterena. Oblikovanje karakterizira maksimalno vračanje stabala masline inicijalno zatečenih na lokaciji, kao dio inspiracije i nositelja identiteta. Funkcionalno oblikovanje predviđa dupliranje namjena unutarnjih funkcija u vanjske i njihovu skladnu artikulaciju i međusobnu integraciju : boravak, kupanje i tuširanje, blagovanje, priprema hrane, igra, odmor…
