Poslovni centar Adris, Zagreb
Autor: Ivica Plavec
Projekt se temelji na postavkama atraktivne pojavnosti,
vizualne dinamičnosti i suvremene prostorne organizacije, a odabirom materijala nastoji se postići visoka razina arhitektonskog oblikovanja i trajna kvaliteta.
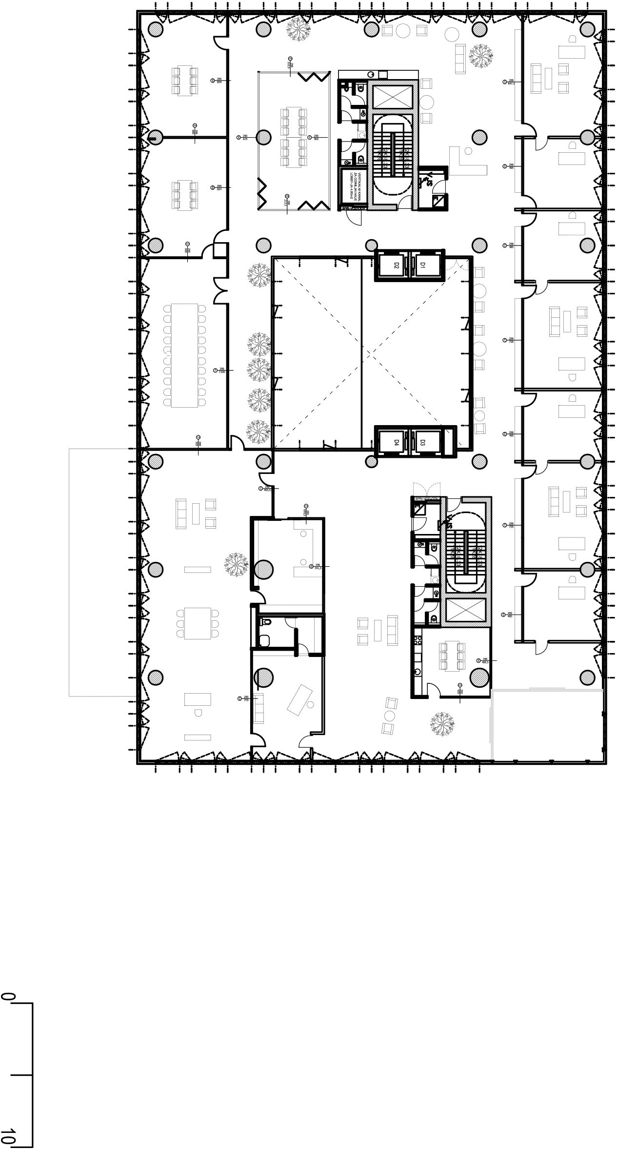
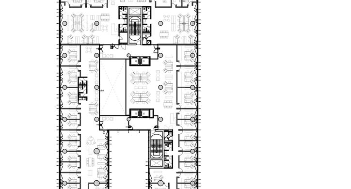
Prostoru rada dane su nove mogućnosti: komotni radni prostori zanimljivih prostornih sklopova i vizura, prozračnost, fluidnost, ležernost, blizina katnih terasa koje su pogodne za druženje, razgovore i rad na otvorenom u prirodnom i ozelenjenom, a ponegdje i gotovo vrtnom ambijentu. Sve to doprinosi osjećaju sklada i zadovoljstva tijekom boravka. Prostorna kompozicija slaganja po vertikali uzdužnih, poprečnih i atrijskih oblika osigurava dinamičnost unutrašnjeg prostora, a doprinosi i atraktivnosti objekta što smo dodatno nastojali naglasiti naizmjeničnim ‘izbacivanjem’ poprečno postavljenih volumena prema ulici i prema dvorištu.
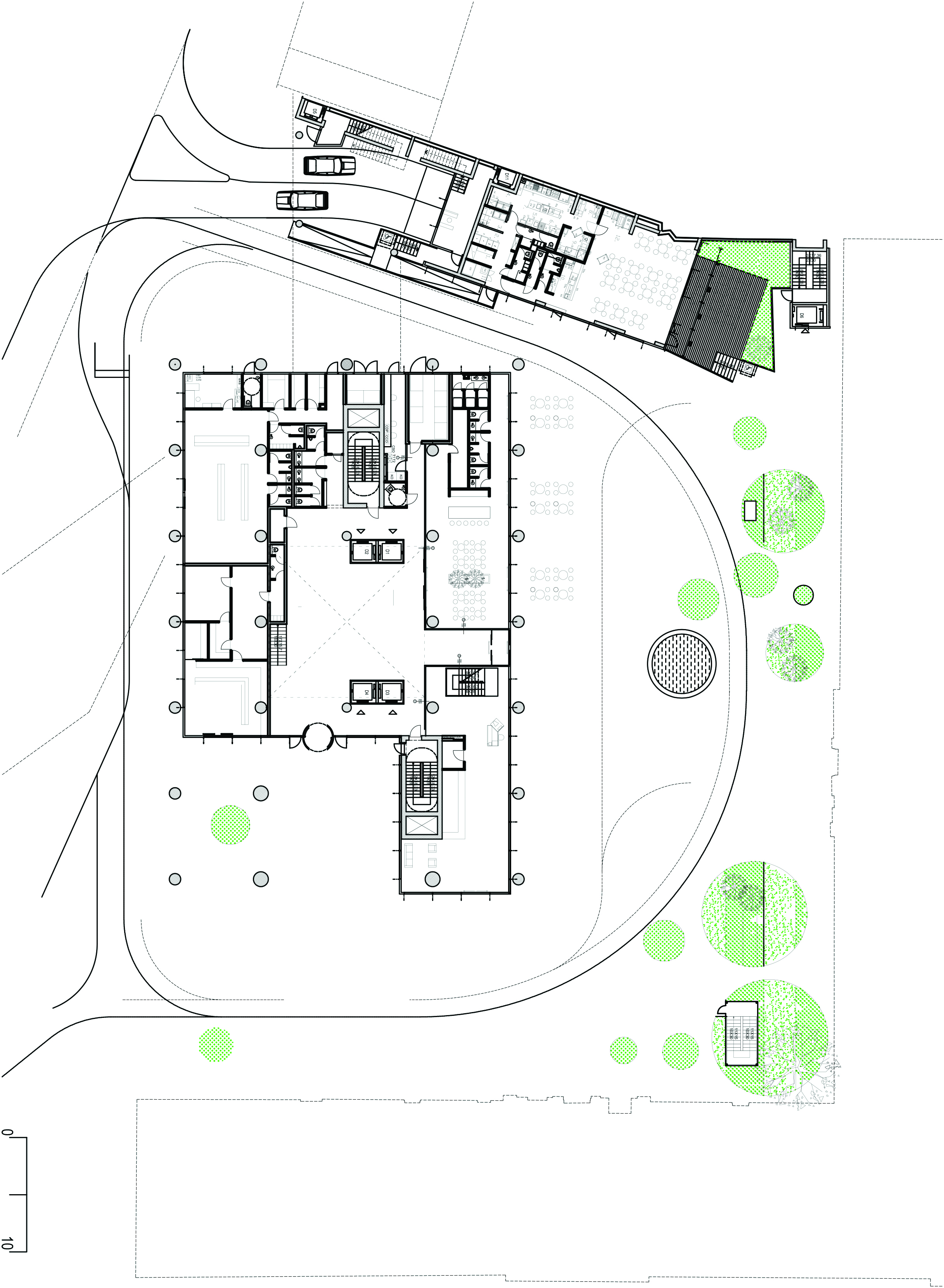
Nova građevina svojim volumenom sudjeluje u aktivaciji unutrašnjosti bloka formirajući unutrašnji trg. Povećanje slobodnog prostora kao javnog, hortikulturno i parterno riješenog trga omogućava slobodan pristup budućem
Hrvatskom povijesnom muzeju i afirmativno se odnosi prema zgradi pod zaštitom. U zoni prizemlja nove zgrade nalaze se javne namjene, a njezina transparentnost omogućava vizualnu povezanost novog trga s Jagićevom ulicom.
Nova zgrada kompleksa Adris grupe kvalitetno se oblikovno uklapa u postojeće tkivo donjogradskog bloka i afirmira staru tvornicu u kontrastu sa svojim suvremenim oblikovnim jezikom. Ujedno ima ulogu novoga prostornog repera zapadnog dijela grada u prostoru naglašenih povijesnih i urbanih vrijednosti. Arhitektonska artikulacija punih, šupljih, ozelenjenih i transparentnih dijelova realiziranog programa zgrade predstavlja dinamični događaj vidljiv u osi Primorske ulice.
vizualne dinamičnosti i suvremene prostorne organizacije, a odabirom materijala nastoji se postići visoka razina arhitektonskog oblikovanja i trajna kvaliteta.
Prostoru rada dane su nove mogućnosti: komotni radni prostori zanimljivih prostornih sklopova i vizura, prozračnost, fluidnost, ležernost, blizina katnih terasa koje su pogodne za druženje, razgovore i rad na otvorenom u prirodnom i ozelenjenom, a ponegdje i gotovo vrtnom ambijentu. Sve to doprinosi osjećaju sklada i zadovoljstva tijekom boravka. Prostorna kompozicija slaganja po vertikali uzdužnih, poprečnih i atrijskih oblika osigurava dinamičnost unutrašnjeg prostora, a doprinosi i atraktivnosti objekta što smo dodatno nastojali naglasiti naizmjeničnim ‘izbacivanjem’ poprečno postavljenih volumena prema ulici i prema dvorištu.
Nova građevina svojim volumenom sudjeluje u aktivaciji unutrašnjosti bloka formirajući unutrašnji trg. Povećanje slobodnog prostora kao javnog, hortikulturno i parterno riješenog trga omogućava slobodan pristup budućem
Hrvatskom povijesnom muzeju i afirmativno se odnosi prema zgradi pod zaštitom. U zoni prizemlja nove zgrade nalaze se javne namjene, a njezina transparentnost omogućava vizualnu povezanost novog trga s Jagićevom ulicom.
Nova zgrada kompleksa Adris grupe kvalitetno se oblikovno uklapa u postojeće tkivo donjogradskog bloka i afirmira staru tvornicu u kontrastu sa svojim suvremenim oblikovnim jezikom. Ujedno ima ulogu novoga prostornog repera zapadnog dijela grada u prostoru naglašenih povijesnih i urbanih vrijednosti. Arhitektonska artikulacija punih, šupljih, ozelenjenih i transparentnih dijelova realiziranog programa zgrade predstavlja dinamični događaj vidljiv u osi Primorske ulice.
